ЖК "LIFE-Варшавская" (Лайф-Варшавская)
Квартиры : | 1 комн.кв-ры от 15 млн. руб , 2 комн.кв-ры от 17 млн. руб , 3 комн.кв-ры от 20 млн. руб , 4 комн.кв-ры от 26 млн. руб Интервал стоимости предложения включает в себя минимальную цену в данном жилом комплексе. В случае заинтересованности необходимо уточнение конечной стоимости у компании, реализующей данное предложение. |
|---|
Площадь квартир:39,82 — 108,65 м2
Высота потолков:2.8
Готовность: Идет строительство
Срок сдачи: 2 кв.2024 г.
Виды предложений: Квартиры
С паркингом: подземная, три многоуровневых наземного паркинга.
Цена300-500 тыс. руб за м2
Адрес: Каширский проезд, д.10
Варшавская (0.4 км) ,
Каширская (1.4 км) ,
Севастопольская (1.6 км) ,
Каширская (1.6 км) ,
Каховская (1.7 км) ,
Нахимовский проспект (1.7 км) ,
Каховская (1.9 км) ,
Нагорная (2.5 км) ,
Кантемировская (2.8 км)
Жилой комплекс «LIFE-Варшавская» - проект комфорт-класса на юге столицы, в районе Москворечье-Сабурово.
Транспорт и экология
Выезды на Варшавское и Каширское шоссе, две станции метро и ж/д платформа в пешей доступности и прекрасно развитая сеть наземного общественного транспорта обеспечивают вполне благополучную дорожную ситуацию.
Что касается экологической обстановки, то она обычна для мегаполиса — строительство ведется на месте бывшей промзоны, рядом проходят загруженные магистрали, но и места для отдыха на свежем воздухе найти не составит труда — неподалеку раскинулся парк-усадьба «Коломенское».
Архитектура и недвижимость
Авторство архитектурной концепции проекта принадлежит известному японскому бюро. Всего будет построено 10 домов-«башен» и восемь многосекционных корпусов переменной высотности от 6 до 12 этажей, образующих закрытые уютные дворы. Выдержаны все здания в современном стиле — строгие линии, яркие фасады, большие окна.
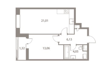
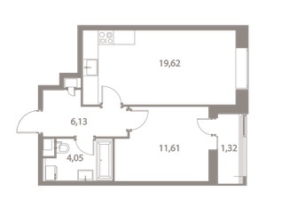
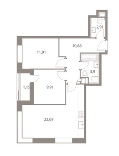
Квартиры — в ЖК «Лайф Варшавская» будет представлена вся линейка недвижимости от одно- до четырехкомнатного жилья, предлагаются как без отделки, так и в готовности «под ключ». Квартир «мелкой нарезки» не будет — площади начинаются от 39,82 кв. метров.
Кроме этого, можно приобрести дополнительное помещение-кладовую, они расположатся в цокольных этажах.
Ознакомиться с ценами и планировочными решениями можно на официальном сайте новостройки.
Первые этажи домов отведены под коммерческие помещения с отдельными входами. В квартале откроется школа и три детский сада, для автомобилей жителей строятся многоуровневые наземные паркинги.
Инфраструктура

Москворечье-Сабурово, ул. Борисовские пруды, 1, Кантемировская (2.7 км) , Марьино (3.5 км) , Орехово (2.7 км)

ЖК "Каширка.Like" (Каширка Лайк)
Москворечье-Сабурово, Каширское шоссе, вл.74, Кантемировская (2 км) , Каширская (2.3 км) , Каширская (2.3 км)

Стартовая площадка Борисовские пруды 7, корп.2
Москворечье-Сабурово, ул. Борисовские пруды, 7 корп.2, Домодедовская (2.9 км) , Марьино (2.7 км) , Орехово (2.9 км)

Котловка, Электролитный пр., вл 7А, Академическая (2.8 км) , Варшавская (2.4 км) , Каховская (2.6 км)

Комплекс апартаментов "Nahimov" (Нахимов)
Черемушки, Нахимовски пр., вл 31, Академическая (2.2 км) , Варшавская (2.9 км) , Каховская (1.9 км)

Стартовая площадка Ул. Артековская, дом 9, корп.1
Нагорный, Ул. Артековская, дом 9, корп.1, Варшавская (0.63 км) , Каховская (1.2 км) , Каширская (2.2 км)

Стартовая площадка Варшавское шоссе, вл. 47
Нагатино-Садовники, Варшавское шоссе,вл. 47, Варшавская (2.8 км) , Нагатинская (0.6 км) , Нагорная (1.3 км)

Стартовая площадка Симферопольский пр, вл.7
Нагорный, Симферопольский пр, вл.7, Варшавская (1.3 км) , Каховская (1.7 км) , Каширская (2.3 км)

— Новостройки Москвы. Итоги первого полугодия -2025
По последним данным, в первом полугодии текущего года столичные девелоперы начали реализацию 17 проектов жилой застройки.

— Рассрочка вместо ипотеки – решение проблем?
По данным Росреестра, в декабре прошлого года произошло практически полное восстановление уровня продаж на рынке столичных новостроек.

— Недвижимость Москвы – 2024. Итоги года
Прошедший год выдался очень насыщенным и неоднозначным для рынка столичной недвижимости. Начало января – пора подведения итогов и обозначения возможных будущих трендов рынка.

— Можно ли в России купить квартиру в лизинг
Программа льготной ипотеки помогла огромному количеству россиян приобрести собственное жилье. Однако данный инструмент доступен далеко не всем, а альтернатив на рынке практически нет. Одной из немногих является покупка квартиры в лизинг.

— Как купить квартиру в доме по программе реновации
Дома, построенные в рамках реновации, интересуют не только «переселенцев», но и потенциальных покупателей. Ведь они часто возводятся в районах с хорошей транспортной доступностью и сложившейся инфраструктурой. Как купить квартиру в доме по реновации?

— Марьина Роща - самая дорогая недвижимость в СВАО
Марьина Роща — самый южный район СВАО. Его граница на востоке проходит по железнодорожным путям Рижского направления и по Проспекту Мира, на юге — по оси Сущевского вала, улиц Советской Армии, Достоевского и Перунова переулка, на западе – вдоль Тихвинской улицы, ТТК, железнодорожных путей Савеловского направления и Складочной улицы, на севере — по промзоне Огородный проезд.














Отзывы покупателей о новостройке ЖК "LIFE-Варшавская" (Лайф-Варшавская)
Семья Сафроновых
Плюсы:
Проект Life-Варшавская понравился продуманностью деталей, ценой и очень грамотными планировками. Купили здесь трехкомнатную, теперь следим за строительством и общаемся с будущими соседями
Маркелова
Плюсы:
Давно хотели купить дочери квартиру в каком-нибудь красивом ЖК, который нам подойдет и по деньгами, и другими параметрами. ЖК Life Варшавская изучали очень подробно и внимательно, еще нашла форум varshavskaya-forum точка ru, на последнем смогла задать все интересующие вопросы прямо застройщику, ответы получила довольно быстро. Еще ездили в шоурум, это окончательно убедило в покупке квартиры здесь.
Дмитрий
Плюсы:
Следим за проектом. Строительство началось, идет бодренько, думаю, срывов сроков быть не должно. Архитектурный проект вызывает интерес, планировки тоже ничего. Запланировали строительство своих школ и детсадов – это огромный плюс и большой шаг для развития инфраструктуры района. Метро в двух шагах, до центра столицы можно доехать быстро. Квартиры на старте строительства недорогие, к тому же можно взять готовый к заселению вариант с отделкой. По поводу рассрочки и ипотеки будем узнавать.
Минусы:
Начало стройки