Жилой квартал "LIFE-Ботанический Сад" (Лайф-Ботанический Сад)
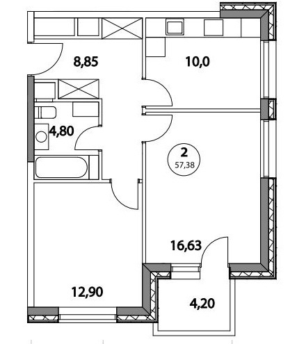
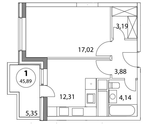
Площадь квартир:36 м2
Общее количество квартир: 1348
Объем застройки: 238000 м2
Тип дома: монолитно-кирпичный
Готовность: Строительство завершено. Продажа на вторичном рынке.
Срок сдачи: 3 кв.2018 г.
Виды предложений: Квартиры с отделкой
С паркингом: Подземный паркинги
Адрес: Ботанический 1-й проезд, 1
Ботанический сад (0.5 км) ,
Свиблово (1.4 км) ,
Отрадное (2.4 км) ,
Улица Сергея Эйзенштейна (2.4 км) ,
Владыкино (2.6 км) ,
Бабушкинская (2.7 км) ,
Выставочный центр (2.9 км)
МЦК Ботанический сад (0.6 км)
В одном из красивейших мест столицы, в северо-восточном округе рядом с огромным массивом Ботанического сада расположился жилой квартал «LIFE- Ботанический Сад».
В шаговой доступности находятся две станции метрополитена — Ботанический сад и Владыкино, а также станция железной дороги, так что попасть в любую точку мегаполиса труда не составит.
Дома и квартиры
Запланировано четыре очереди строительства, первая — три монолитных дома: две одноподъездных «башни» высотой в 24 этажа и многосекционный дом переменной этажности (16-18 этажей). В разработке проекта принимало участие японское архитектурное бюро — современные технологии обеспечивают энергоэффективность и долговечность зданий.
Квартиры застройщиком предлагаются от одно- до четырехкомнатных, площади начинаются от 36 кв. метров — продуманные удобные планировки и уникальные панорамные балконы, визуально расширяющие помещение. Верхние этажи отведены под пентхаусы.
Квартиру в новом квартале можно приобрести полностью готовую к проживанию — на выбор предлагается два базовых варианта отделки, в классическом или современном стиле. Инженерные системы комплекса отвечают всем необходимым требованиям.
Инфраструктура жилого комплекса
В ЖК «Лайф-Ботанически сад» предполагается развитие собственной инфраструктуры — она задумана таким образом, чтобы жители смогли найти все необходимое прямо на территории. Здесь запланированы:
- Лаунж-зоны во входных группах домов;
- Детский сад и детский клуб;
- Школа;
- Всевозможные магазины;
- Рестораны;
- Спортивный комплекс;
- Закрытые дворы со спортивными и детскими площадками — они обустраиваются только для отдыха жителей — в квартале реализуется концепция «двор без машин»;
- Подземные паркинги.
Застройщик: Pioneer Group
Инфраструктура
Как добраться:
- метро Ботанический сад, 0.6 км.: от ст. м. на общ. транспорте: Автобус № 195. до ост. «1-й Ботанический проезд» около 17 мин.;
- станция Ботанический сад, 0.6 км.: от ст. м. на общ. транспорте: Автобус № 61. до ост. «1-й Ботанический проезд» около 12 мин.;
Новости Жилой квартал "LIFE-Ботанический Сад" (Лайф-Ботанический Сад)
Юрий Кочетков: Тренды рынка новостроек: вперёд и вниз
Продолжим освещение докладов аналитической конференции МАР (Московская ассоциация риэлторов). Теперь речь пойдёт про столичный рынок новостроек.
В ЖК «Life-Ботанический сад» построят школу с возможностью для учеников стажироваться заграницей
В жилом комплексе «Life-Ботанический сад» планируется открытие уникальной школы, ученики которой смогут получить образование по зарубежным стандартам или отправиться на стажировку заграницу.
В марте покупателям квартир в домах первой очереди ЖК «LIFE-Ботанический сад» выдадут ключи
В жилом комплексе «LIFE-Ботанический сад» введены в эксплуатацию три многоэтажных корпуса, возведенные в рамках первой очереди строительства. В новых домах разместились в общей сложности 683 квартиры, в которых на данный момент ведутся завершающие отделочные работы.

Стартовая площадка Тенистый пр., вл. 6
Свиблово, Тенистый пр., вл. 6, Бабушкинская (1.8 км) , Ботанический сад (1.5 км) , Отрадное (2.1 км)

Свиблово, пр. Серебрякова, вл 11-13, Бабушкинская (2.3 км) , Ботанический сад (0.8 км) , Свиблово (0.9 км)

Легендарный квартал на Березовой аллее (Квартал "Березовая аллея")
Останкинский, д. 35, Ботанический сад (1 км) , Владыкино (2 км) , Отрадное (2 км)

— Новостройки Москвы. Итоги первого полугодия -2025
По последним данным, в первом полугодии текущего года столичные девелоперы начали реализацию 17 проектов жилой застройки.

— Рассрочка вместо ипотеки – решение проблем?
По данным Росреестра, в декабре прошлого года произошло практически полное восстановление уровня продаж на рынке столичных новостроек.

— Недвижимость Москвы – 2024. Итоги года
Прошедший год выдался очень насыщенным и неоднозначным для рынка столичной недвижимости. Начало января – пора подведения итогов и обозначения возможных будущих трендов рынка.

— Можно ли в России купить квартиру в лизинг
Программа льготной ипотеки помогла огромному количеству россиян приобрести собственное жилье. Однако данный инструмент доступен далеко не всем, а альтернатив на рынке практически нет. Одной из немногих является покупка квартиры в лизинг.

— Как купить квартиру в доме по программе реновации
Дома, построенные в рамках реновации, интересуют не только «переселенцев», но и потенциальных покупателей. Ведь они часто возводятся в районах с хорошей транспортной доступностью и сложившейся инфраструктурой. Как купить квартиру в доме по реновации?

— Марьина Роща - самая дорогая недвижимость в СВАО
Марьина Роща — самый южный район СВАО. Его граница на востоке проходит по железнодорожным путям Рижского направления и по Проспекту Мира, на юге — по оси Сущевского вала, улиц Советской Армии, Достоевского и Перунова переулка, на западе – вдоль Тихвинской улицы, ТТК, железнодорожных путей Савеловского направления и Складочной улицы, на севере — по промзоне Огородный проезд.
























Отзывы покупателей о новостройке Жилой квартал "LIFE-Ботанический Сад" (Лайф-Ботанический Сад)
Карина
Плюсы:
С нетерпением жду заселения. Комплекс строится японской компанией, используются современные технологии и новые материалы, способные значительно повысить срок эксплуатации здания, а также сделать стены теплыми и надежными. Внешний вид каждого здания отличителен и привлекателен. Мы выбрали башню. Нравится мне высота и наблюдать из окон за движением. Дворы собираются ограждать, а значит машины стоять тут не будут, да и деткам безопасно на площадках гулять. Живописная природа и чистый воздух -этого не отнять, ведь Ботанический сад способен удивлять и радовать в любое время. Транспорт ходит разный и метро рядом совсем.
Минусы:
Нет
Мария
Плюсы:
Мы с мужем выбирали дом, где не будет во дворе машин, да и вообще, чтоб двор был закрыт, а в внутри были детские площадки, клумбы и лавочки. Подобрали и я довольна. Жить рядом с Ботаническим садом - вообще предел мечтаний. Гулять можно где угодно и спортом активно заниматься и пикник организовать. Строительство ведется, оно будет в несколько этапов. Нам подошел многоподъездный разноуровневый дом, но есть еще башни и девятиэтажки.
Минусы:
Пока закончится стройка будет конечно шумно и придется потерпеть, но зато потом, мы будем обеспечены всем: паркингом, садами, школами, магазинами, офисами, центрами и многим другим.
Русланов Олег
Плюсы:
Кто-то из сосдених пятиэтажек уже говорил, что из-за ботсада цены начали ползти вверх даже у них) имеется в виду что цены на их квартиры