Клубный дом на ВДНХ
Площадь квартир:60 — 156,7 м2
Высота потолков:3.15
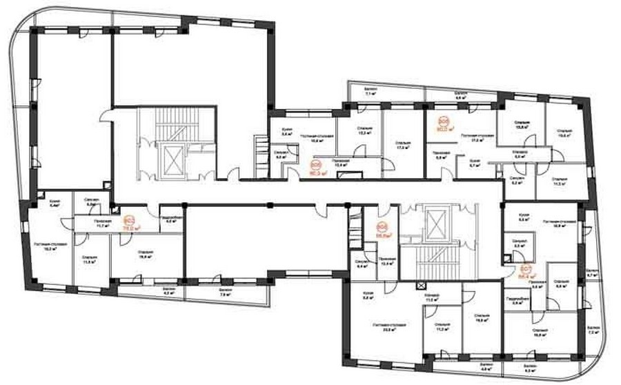
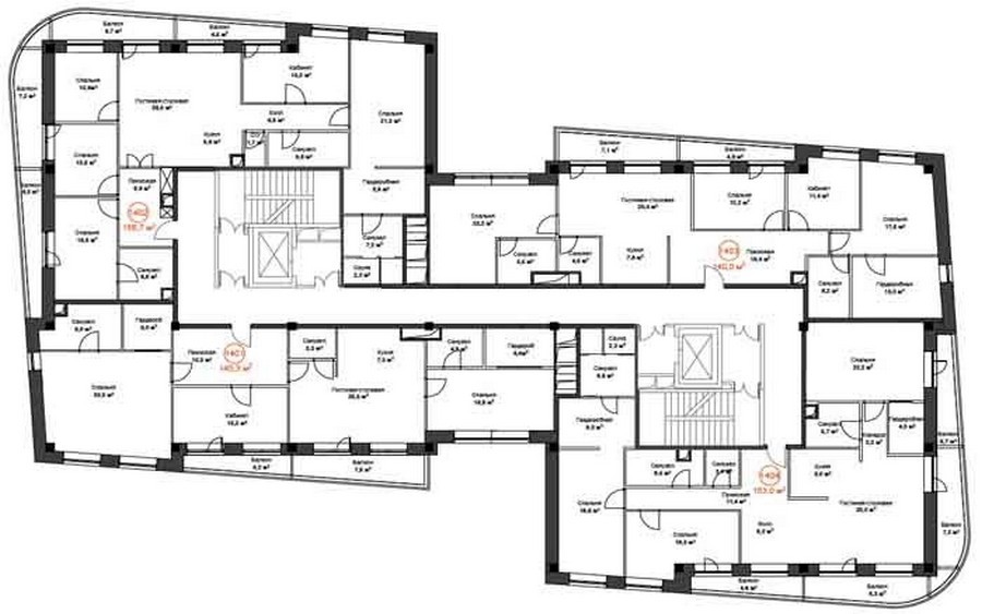
Общее количество квартир: 56
Тип дома: монолитно-кирпичный
Готовность: Строительство приостановлено
Срок сдачи: 2 кв.2016 г.
С паркингом: Подземный
Адрес: Бориса Галушкина, вл.10 к.2
ВДНХ (0.8 км) ,
Улица Сергея Эйзенштейна (0.8 км) ,
Выставочный центр (0.9 км) ,
Алексеевская (2 км) ,
Ботанический сад (2.7 км) ,
Телецентр (2.7 км)
МЦК Ростокино (2.0 км)
Градостроительно-земельная комиссия города Москвы (ГЗК), возглавляемая мэром Москвы Сергеем Собяниным, на заседании 6 октября 2016 года решила отменить строительство нежилого здания с апартаментами квартирного типа, нежилыми и административными помещениями по адресу: ул. Бориса Галушкина, вл. 10, корп. 2 (СВАО)
Продажи не производятся.
Клубный дом на ВДНХ — новое предложение на северо-востоке столицы в нескольких минутах ходьбы от знаменитого выставочного комплекса. Прекрасная транспортная доступность — рядом находится станция метро и выезд на проспект Мира и богатейшая инфраструктура удачно сочетаются с вполне благополучной экологический обстановкой.
Клубный дом — монолитное 17-этажное здание, возводится оно по оригинальному архитектурному проекту и выдержано в современном стиле. Из огромных окон открываются панорамные виды столицы.
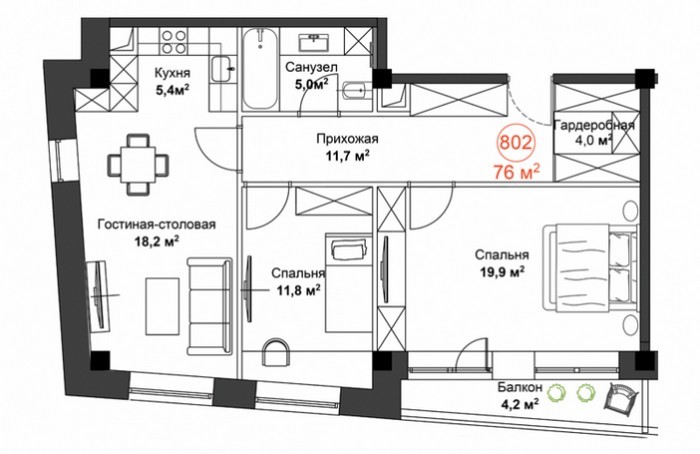
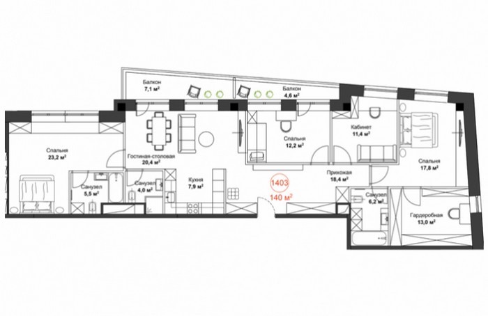
Всего застройщиком предлагается 56 апартаментов — они располагаются со 2 по 17 этажи. Площади начинаются от 60 кв. м. до 156,7 кв. м., высота потолков составляет 3,15 метра. Все апартаменты в охраняемом Клубном доме на ВДНХ свободной планировки, соседние можно объединять до получения желаемой площади.
Инженерные системы комплекса отвечают всем современным требованиям — центральное кондиционирование, комплексная система безопасности и собственный тепловой пункт, значительно снижающий зависимость от коммунальных служб.
Первый этаж жилого комплекса отведен под коммерческие помещения и детский сад. Подземный уровень здания занят паркингом на 58 машиномест.
Инфраструктура
Как добраться:
- метро ВДНХ, 0.8 км.
- метро Алексеевская, 2.0 км.: от ст. м. на общ. транспорте: Автобусы №№ 903, Н6. до ост. «Метро ВДНХ» около 9 мин.; Автобусы №№ 136, 834, Н6. Троллейбус № 76. до ост. «Улица Бориса Галушкина» около 7 мин.;
Новости Клубный дом на ВДНХ
Алексеевский: новые возможности старого района
Алексеевский – старый сложившийся район. В этом-то его и прелесть. Однако в последние годы здесь регулярно появляется возможность приобретать квартиры или апартаменты в новостройках. Открыты эти опции и сейчас.
Новые апартаменты в Москве 2015-2016
По итогам 1 полугодия 2015 г. на рынок Москвы вышло 13 новых проектов апартаментов, в результате старта продаж общий объем предложения апартаментов на первичном рынке увеличился на 21% по сравнению с 2014 г.

Мини-город "Sky City" (Скай Сити)
Останкинский, д. 11А, Алексеевская (0.9 км) , ВДНХ (1.6 км) , Дмитровская (2.8 км)

— Недвижимость Москвы. Итоги 2025 года
Прошлый год стал для рынка недвижимости одним из самых спокойных за последнее время.

— Старты продаж в Москве. Второе полугодие 2025 года
Во втором полугодии 2025 года «прорыва» в выводе на рынок новых проектов в столице не случилось, более того, продолжился тренд на их сокращение.

— Новостройки Москвы. Итоги первого полугодия -2025
По последним данным, в первом полугодии текущего года столичные девелоперы начали реализацию 17 проектов жилой застройки.

— Можно ли в России купить квартиру в лизинг
Программа льготной ипотеки помогла огромному количеству россиян приобрести собственное жилье. Однако данный инструмент доступен далеко не всем, а альтернатив на рынке практически нет. Одной из немногих является покупка квартиры в лизинг.

— Марьина Роща - самая дорогая недвижимость в СВАО
Марьина Роща — самый южный район СВАО. Его граница на востоке проходит по железнодорожным путям Рижского направления и по Проспекту Мира, на юге — по оси Сущевского вала, улиц Советской Армии, Достоевского и Перунова переулка, на западе – вдоль Тихвинской улицы, ТТК, железнодорожных путей Савеловского направления и Складочной улицы, на севере — по промзоне Огородный проезд.













Отзывы покупателей о новостройке Клубный дом на ВДНХ
Михаил
Плюсы:
В пешей доступности ст. м. "ВДНХ". Вместительный подземный паркинг. Высокие потолки. Хорошая транспортная доступность - рядом проспект Мира.
Минусы:
Рядом проспект Мира и несколько промзон, что в худшую сторону отображается на экологии. В номерах не проводится отделка. Тип жилья - апартаменты.
Антон
Плюсы:
Срок сдачи сдвинули на год. Хотя застройщик вроде бы нормальный. Печально - проект понравился практически всем.
Минусы:
См. выше