Клубный дом "Бакст"
Площадь квартир:130 — 320 м2
Высота потолков:3.3 - 7.1
Общее количество квартир: 16
Тип дома: монолитно-кирпичный
Готовность: Дома сданы
Срок сдачи: 2 кв.2019 г.
Виды предложений: Квартиры
С паркингом: Подземный, 48 м/мест
Адрес: Козихинский Б. пер., д.13/15
Маяковская (0.6 км) ,
Пушкинская (0.6 км) ,
Тверская (0.6 км) ,
Чеховская (0.75 км)
МЦД Белорусская (1.8 км)
В историческом центре столицы, неподалеку от Патриарших прудов, расположился клубный дом «Бакст»
Великолепная инфраструктура Пресненского района удачно сочетается с тишиной и обилием зелени — вокруг расположились несколько довольно больших скверов. Благополучно обстоят дела и с транспортной ситуацией — выезды на Садовое кольцо и несколько станций метро поблизости.
Двухсекционное здание переменной этажности (3-6 этажей) выдержано в классическом стиле и прекрасно вписывается в окружающую застройку. Отделка фасадов натуральным камнем, элементы декора, панорамные окна подчеркивают статус клубного дома.
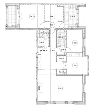
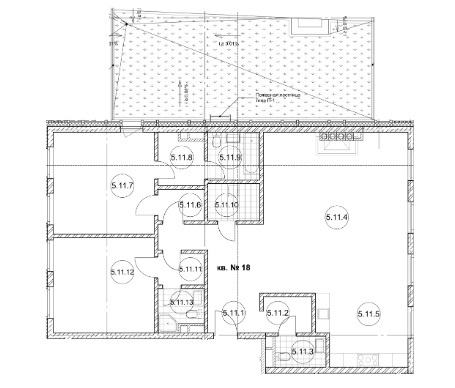
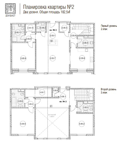
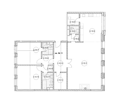
В нем предлагается всего 16 квартир, просторных, с возможностью установки камина. Общая жилая площадь комплекса составляет 3800 кв. метров. Инженерные решения ЖК «Бакст» обеспечивают безопасность и должный уровень комфорта проживания.
Территория комплекса огорожена, работает охрана. Большое внимание уделено озеленению придомового пространства — каскад газонов во дворе, оформленном как мини-парк и на эксплуатируемой кровле.
Под автомобили жителей оборудуется подземный паркинг на 48 машиномест. Первый этаж отведен под коммерческие помещения.
Инфраструктура
Как добраться:
- метро Пушкинская, 0.6 км.
- метро Тверская, 0.6 км.

ЖК "Capital Towers" (Капитал Тауэрс)
Пресненский, Краснопресненская Набережная вл.14, стр.1, Деловой центр (0.6 км) , Выставочная (0.6 км)

Жилой комплекс "Пресненский вал 21"
Пресненский, вл.21, Белорусская (0.9 км) , Улица 1905 года (0.9 км)

Марьина роща, 1-я Ямская улица, 2, Алексеевская (2.2 км) , Белорусская (2.8 км) , Дмитровская (2.6 км)

Комплекс апартаментов "Резиденция Тверская"
Тверской, , Белорусская (0.7 км) , Маяковская (0.5 км)

Комплекс апартаментов "Большевик"
Беговой, 15, стр. 9, 28, 35, Баррикадная (2.4 км) , Белорусская (0.5 км) , Динамо (1.2 км)

— Новостройки Москвы. Итоги первого полугодия -2025
По последним данным, в первом полугодии текущего года столичные девелоперы начали реализацию 17 проектов жилой застройки.

— Рассрочка вместо ипотеки – решение проблем?
По данным Росреестра, в декабре прошлого года произошло практически полное восстановление уровня продаж на рынке столичных новостроек.

— Недвижимость Москвы – 2024. Итоги года
Прошедший год выдался очень насыщенным и неоднозначным для рынка столичной недвижимости. Начало января – пора подведения итогов и обозначения возможных будущих трендов рынка.

— Можно ли в России купить квартиру в лизинг
Программа льготной ипотеки помогла огромному количеству россиян приобрести собственное жилье. Однако данный инструмент доступен далеко не всем, а альтернатив на рынке практически нет. Одной из немногих является покупка квартиры в лизинг.

— Как купить квартиру в доме по программе реновации
Дома, построенные в рамках реновации, интересуют не только «переселенцев», но и потенциальных покупателей. Ведь они часто возводятся в районах с хорошей транспортной доступностью и сложившейся инфраструктурой. Как купить квартиру в доме по реновации?

— Марьина Роща - самая дорогая недвижимость в СВАО
Марьина Роща — самый южный район СВАО. Его граница на востоке проходит по железнодорожным путям Рижского направления и по Проспекту Мира, на юге — по оси Сущевского вала, улиц Советской Армии, Достоевского и Перунова переулка, на западе – вдоль Тихвинской улицы, ТТК, железнодорожных путей Савеловского направления и Складочной улицы, на севере — по промзоне Огородный проезд.























Отзывы покупателей о новостройке Клубный дом "Бакст"
Карина
Плюсы:
На сайте выглядит интересно. Цены, думаю, очень высокими будут, учитывая место.
Минусы:
Нет