ЖК "Счастье на Пресне"
Площадь квартир:38 — 113 м2
Высота потолков:3.3-5.1
Общее количество квартир: 79
Тип дома: монолитный
Готовность: Дома сданы
Срок сдачи: 1 кв.2020 г.
Виды предложений: Квартиры
С паркингом: подземный - 29 м/мест, наземный - 17 м/мест
Адрес: Красногвардейский б-р, 15
Улица 1905 года (1.2 км)
МЦД Беговая (1.0 км) ,
МЦД Тестовская (1.1 км) ,
МЦК Шелепиха (1.2 км) ,
МЦК Деловой центр (1.8 км)
Жилой комплекс «Счастье на Пресне» - новый проект бизнес-класса в Пресненском районе Москвы.
Транспорт и экология
Дорожная ситуация для центра мегаполиса на редкость благополучная, благодаря выездам на ТТК, Садовое кольцо, Звенигородское шоссе, нескольким станциям метро поблизости и прекрасно развитой сети наземного общественного транспорта.
Экологическая же составляющая неоднозначна — рядом имеются как парковые массивы, так и промышленные предприятия.
Архитектура и недвижимость
Односекционный монолитный дом-«башня» переменной высотности (16-19 этажей) возводится по оригинальному проекту и привлекает внимание необычной, «каскадной» конфигурацией, фасадами с яркими элементами и панорамными окнами — с верхних этажей открываются роскошные виды на весь центр столицы.
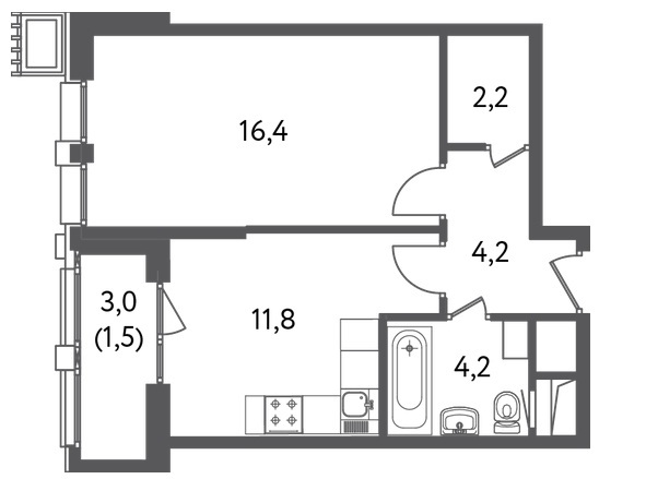
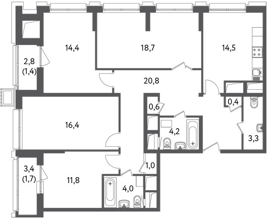
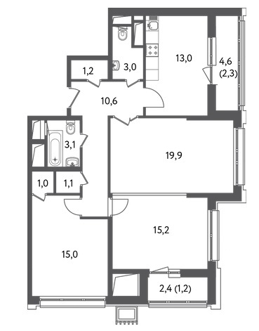
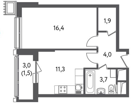
Несмотря на небольшое количество квартир — всего их будет 79, выбор недвижимости впечатляет. Жилья «мелкой нарезки» в ЖК «Счастье на Пресне» нет, площади начинаются от 40 кв.метров. Представлены одно-, двух-, трех и четырехкомнатные квартиры без капитальных внутренних перегородок, то есть жилое пространство можно распланировать по собственному усмотрению.
«Изюминка» - высокие потолки. В квартирах нижних этажей они составляют 5.1 метра, так что вполне можно обустроить второй уровень, в остальных — от 3.3. до 3.6 метра, что зрительно расширяет пространство.
Реализуется недвижимость без внутренней отделки, с установленными стеклопакетами, входными дверями, приборами учета. Цены и наличие свободных квартир можно уточнить на официальном сайте новостройки.
Инфраструктура
Первый этаж здания нежилой — он отведен под детский образовательный центр и общественные пространства, предназначенные для отдыха жителей и оформляемые по авторским дизайн-проектам.
В подземном уровне разместится паркинг на 29 машиномест. Еще одна стоянка, наземная на 17 автомобилей, будет на придомовой территории. Малое количество парковочных мест можно отнести к недостаткам жилого комплекса — велика вероятность, что на всех новоселов их не хватит.
Закрытый, охраняемый внутренний двор озеленяется, там устанавливаются спортивные площалки и детский игровой городок.
Инфраструктурой ЖК перегружен не будет, в этом необходимости нет, учитывая расположение в одном из самых развитых и обжитых районов.
Инфраструктура
Как добраться:
- метро Улица 1905 года, 1.2 км.: от ст. м. на общ. транспорте: Автобус № т18. до ост. «Улица Литвина-Седого» около 21 мин.;
- метро Беговая, 1.2 км.: от ст. м. на общ. транспорте: до ст. «Улица 1905 года» около 5 мин.; Автобус № т18. до ост. «Улица Литвина-Седого» около 21 мин.;

Стартовая площадка Мукомольный пр., вл.6
Пресненский, Мукомольный пр., вл.6, Международная (0.5 км) , Шелепиха (0.6 км)

ЖК "Capital Towers" (Капитал Тауэрс)
Пресненский, Краснопресненская Набережная вл.14, стр.1, Деловой центр (0.6 км) , Выставочная (0.6 км)

Жилой комплекс "Пресненский вал 21"
Пресненский, вл.21, Белорусская (0.9 км) , Улица 1905 года (0.9 км)

Комплекс апартаментов "I'M Тверская" (АйЭм Тверская)
Беговой, 1-я ул. Ямского поля, вл.28, Баррикадная (2.6 км) , Белорусская (0.6 км) , Динамо (1.7 км)

Хорошево-Мневники, Причальный пр-д,8, Багратионовская (2.3 км) , Деловой центр (1.2 км) , Кутузовская (2.5 км)

Жилой комплекс "Пресненский вал 21"
Пресненский, вл.21, Белорусская (0.9 км) , Улица 1905 года (0.9 км)

— Новостройки Москвы. Итоги первого полугодия -2025
По последним данным, в первом полугодии текущего года столичные девелоперы начали реализацию 17 проектов жилой застройки.

— Рассрочка вместо ипотеки – решение проблем?
По данным Росреестра, в декабре прошлого года произошло практически полное восстановление уровня продаж на рынке столичных новостроек.

— Недвижимость Москвы – 2024. Итоги года
Прошедший год выдался очень насыщенным и неоднозначным для рынка столичной недвижимости. Начало января – пора подведения итогов и обозначения возможных будущих трендов рынка.

— Можно ли в России купить квартиру в лизинг
Программа льготной ипотеки помогла огромному количеству россиян приобрести собственное жилье. Однако данный инструмент доступен далеко не всем, а альтернатив на рынке практически нет. Одной из немногих является покупка квартиры в лизинг.

— Как купить квартиру в доме по программе реновации
Дома, построенные в рамках реновации, интересуют не только «переселенцев», но и потенциальных покупателей. Ведь они часто возводятся в районах с хорошей транспортной доступностью и сложившейся инфраструктурой. Как купить квартиру в доме по реновации?

— Марьина Роща - самая дорогая недвижимость в СВАО
Марьина Роща — самый южный район СВАО. Его граница на востоке проходит по железнодорожным путям Рижского направления и по Проспекту Мира, на юге — по оси Сущевского вала, улиц Советской Армии, Достоевского и Перунова переулка, на западе – вдоль Тихвинской улицы, ТТК, железнодорожных путей Савеловского направления и Складочной улицы, на севере — по промзоне Огородный проезд.







Отзывы покупателей о новостройке ЖК "Счастье на Пресне"
Лилия
Плюсы:
Купили квартиру на третьем этаже. Потолки больше пяти метров. Окна от пола до потолка, дома всегда светло, выходят на высотки Москва-сити, словами не передать, как тут красиво, особенно ночью.
Минусы:
Нет
Макс Цветков
Плюсы:
На этаже квартир мало, с соседями почти не пересекамся, не мешаем друг другу. А то устали в муравейнике жить с бумажными стенами. Ребенок днем спокойно спит, тишина. Соседи тоже с детьми, поэтому уважают друг друга, не шумят.
Иван
Плюсы:
Искал для себя первую квартиру. Рассмотрел множество вариантов, в итоге приобрел однушку в ЖК “Счастье на Пресне”. В доме мало квартир, поэтому нет ощущения “муравейника”, соседей даже не слышно, наслаждаюсь тишиной.