ЖК "Мосфильмовский"
Площадь квартир:46 — 150 м2
Высота потолков:3
Объем застройки: 102281 м2
Тип дома: монолитно-кирпичный
Готовность: Строительство завершено. Продажа на вторичном рынке.
Срок сдачи: 1 кв.2015 г.
Виды предложений: Квартиры
С паркингом: Подземный, 2150 м/мест
Адрес: Мосфильмовская ул, участок 2
Раменки (0.8 км) ,
Ломоносовский проспект (1.2 км) ,
Аминьевская (2.1 км) ,
Минская (2.2 км) ,
Мичуринский проспект (2.3 км) ,
Давыдково (2.7 км) ,
Университет (2.9 км)
Район Раменки на западе Москвы самый, пожалуй, благополучный в смысле экологии во всей столице. Близость реки Раменки и природным заказником обеспечивает его жителям чистый воздух, столь дефицитный в загазованном мегаполисе. Именно здесь, на знаменитой Мосфильмовской улице расположился одноименный жилой комплекс «Мосфильмовский».
Строительство его ведется в две очереди — в первой запланировано 4 жилых корпуса и подземный паркинг на 2150 машиномест. Вторая же предполагает возведение 3 жилых корпусов и паркинга на 1650 автомобилей.
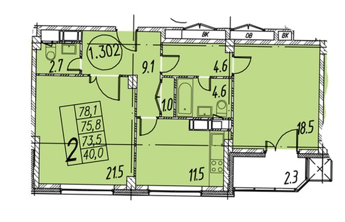
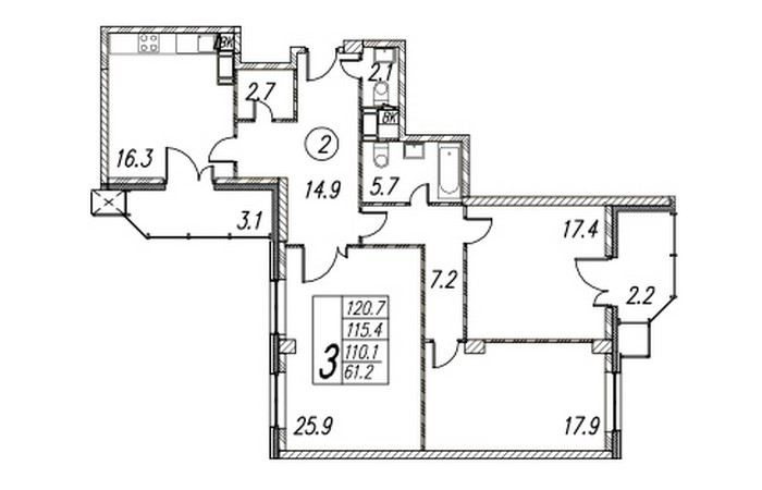
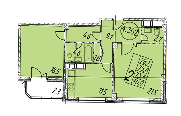
Это современные монолитно-кирпичные дома переменной этажности ( от 15 до 22 этажей) с системами вентилируемых фасадов. Их отличают просторные квартиры свободной планировки площадью от 46 до 150 кв.метров с высокими (до 3 метров) потолками, большими панорамными окнами.
Во всех квартирах, кроме самых маленьких по площади, запроектированы дополнительные санузлы, а окна выходят на две стороны, обеспечивая максимальное количество естественного света.
Нижние этажи новостройки «Мосфильмовский» нежилые — там расположатся объекты инфраструктруры: супермаркет, кафе, фитнес-центр. Особо стоит упомянуть про входные группы жилых зданий — они просторные, до 200 кв. метров, помимо зоны ресепшн в них расположатся места для отдыха. Также имеются технические помещения и комнаты для обслуживающего персонала.
Территория нового комплекса находится под охраной, действует пропускная система. Планируется озеленение двора, установка детских и спортивных площадок, беседок и скамеек, а также прокладка пешеходных дорожек. Кроме того, на территории комплекса будут построены школа и два детских садика.
Застройщик: МонАрх Недвижимость
Инфраструктура
Как добраться:
- метро Раменки, 0.8 км.
- метро Ломоносовский проспект, 1.4 км.: от ст. м. на общ. транспорте: Автобусы №№ 103, 130, 187, 260, 464, 470, 487, 58, 661, 67. Троллейбусы №№ 17, 34, 34к. до ост. «Мосфильмовская улица» около 3 мин.; Автобусы №№ 394, 806. до ост. «Улица Столетова» около 12 мин.;
Новости ЖК "Мосфильмовский"
Юрий Кочетков: Первичный рынок бьёт вторичный
Ежемесячные сведения Росреестра по сделкам постепенно превращаются в какой-то триллер. Вторичный рынок уверенно стремится вниз по этому показателю, а первичный бьёт один рекорд за другим.
В западном округе Москвы вблизи новых станций метро реализуется более 46% новостроек
В каждом районе Москвы после запуска новой станции метро стоимость недвижимости рядом с ними значительно возрастает. Квартиры в домах рядом с подземкой становятся более привлекательными для покупателей и более выгодными для застройщиков.
ГК «МонАрх» заканчивает строительство первой очереди ЖК «Мосфильмовский»
ЖК «Мосфильмовский» можно считать одним из самых масштабных и оригинальных проектов компании в категории бизнес – класса.

ЖК "Снегири-Эко" (Snegiri Eco)
Раменки, вл. 1-26, Багратионовская (2.9 км) , Парк Победы (2.2 км) , Филевский парк (2.8 км)

ЖК "Снегири-Эко" (Snegiri Eco)
Раменки, вл. 1-26, Багратионовская (2.9 км) , Парк Победы (2.2 км) , Филевский парк (2.8 км)

— Новостройки Москвы. Итоги первого полугодия -2025
По последним данным, в первом полугодии текущего года столичные девелоперы начали реализацию 17 проектов жилой застройки.

— Рассрочка вместо ипотеки – решение проблем?
По данным Росреестра, в декабре прошлого года произошло практически полное восстановление уровня продаж на рынке столичных новостроек.

— Недвижимость Москвы – 2024. Итоги года
Прошедший год выдался очень насыщенным и неоднозначным для рынка столичной недвижимости. Начало января – пора подведения итогов и обозначения возможных будущих трендов рынка.

— Можно ли в России купить квартиру в лизинг
Программа льготной ипотеки помогла огромному количеству россиян приобрести собственное жилье. Однако данный инструмент доступен далеко не всем, а альтернатив на рынке практически нет. Одной из немногих является покупка квартиры в лизинг.

— Как купить квартиру в доме по программе реновации
Дома, построенные в рамках реновации, интересуют не только «переселенцев», но и потенциальных покупателей. Ведь они часто возводятся в районах с хорошей транспортной доступностью и сложившейся инфраструктурой. Как купить квартиру в доме по реновации?

— Марьина Роща - самая дорогая недвижимость в СВАО
Марьина Роща — самый южный район СВАО. Его граница на востоке проходит по железнодорожным путям Рижского направления и по Проспекту Мира, на юге — по оси Сущевского вала, улиц Советской Армии, Достоевского и Перунова переулка, на западе – вдоль Тихвинской улицы, ТТК, железнодорожных путей Савеловского направления и Складочной улицы, на севере — по промзоне Огородный проезд.
















Отзывы покупателей о новостройке ЖК "Мосфильмовский"
Диана
Плюсы:
Инфраструктура в районе, близко метро
Минусы:
ЛЭП убрали только выборочно, хотя обещали убрать полностью, рядом железная дорога и хорда – не самое приятное соседство для ЖК бизнес-класса
Владимир Афанасьевич
Плюсы:
Немного подсобирали и купили без всяких рассрочек и ипотек. Получили дополнительную скидку на машиноместо. Если средства позволяют, то рекомендуем довериться и купить жилье здесь. Соседи хорошие в большинстве своем. Территория предрасполагает к отдыху, благоустроенная. Отличное решение было сделать огороженную детскую площадку и спортплощадку. Кстати, есть даже тумба для скейтеров! Район застройки не нуждается в представлении. Если кратко, то инфраструктура есть любая.
Марат
Плюсы:
Жилье премиум класса в самом сердце столицы.Смущала не маленькая цена за квадратный метр, но плюсы такой покупки взяли своего. До центра около 10 километров, рядом Ботанический сад М Г У.
Минусы:
Цена. Несмотря на это жилой комплекс скорее всего будет густонаселенный.