ЖК "Снегири-Эко" (Snegiri Eco)
Площадь квартир:99 — 336 м2
Высота потолков:3,15
Общее количество квартир: 209
Общая площадь застройки: 5 га
Тип дома: монолитно-кирпичный
Готовность: Дома сданы
Срок сдачи: 4 кв.2016 г.
Виды предложений: Студии, Квартиры
С паркингом: Подземный
Адрес: Минская ул, вл. 1-26
Минская (0.9 км) ,
Ломоносовский проспект (1.3 км) ,
Парк Победы (2.2 км) ,
Раменки (2.2 км) ,
Славянский бульвар (2.6 км) ,
Филевский парк (2.8 км) ,
Багратионовская (2.9 км) ,
Давыдково (2.9 км)
В одном из наиболее экологически благоприятных районов Москвы разместился жилой комплекс «Снегири Эко». Озелененная территория, снабженная искусственными прудами, заботливо созданными руками ландшафтных дизайнеров, открывает новые возможности городской жизни.
Место размещения комплекса – одно из самых чистых мест в Москве – рядом с Парком Победы. Сам комплекс органично вписан в ландшафт, нисколько не нарушая озеленения, а только дополняя благоустройство. Расположенная на площади более 5 гектар, новостройка «Snegiri Eco» очень компактна и имеет среднюю этажность зданий.
Близость природного заказника (Долина реки Сетунь) позволяет наслаждаться всеми прелестями экологического жилья практически в центре мегаполиса.
Выполненные из кирпича строения, высотой от 5 до 10 этажей, располагаются с максимальной компактностью, но оставляют при этом место для прогулок, детских площадок и прочей инфраструктуры.
Общая форма жилого комплекса напоминает бумеранг, а практически все квартиры дают возможность наслаждаться пейзажами за окнами. ЖК «Снегири Эко» – это новый стиль городской жизни. Въезд в комплекс возможен с улиц Мосфильмовской и Минской.
Квартиры и инфраструктура
Уникальная концепция жилого комплекса не может не заинтересовать. Просторные балконы и ориентированные на 3 стороны окна позволяют ощутить себя в единении с природой. На первых этажах комплекса предусмотрен выход на собственные патио до 100 кв. м.
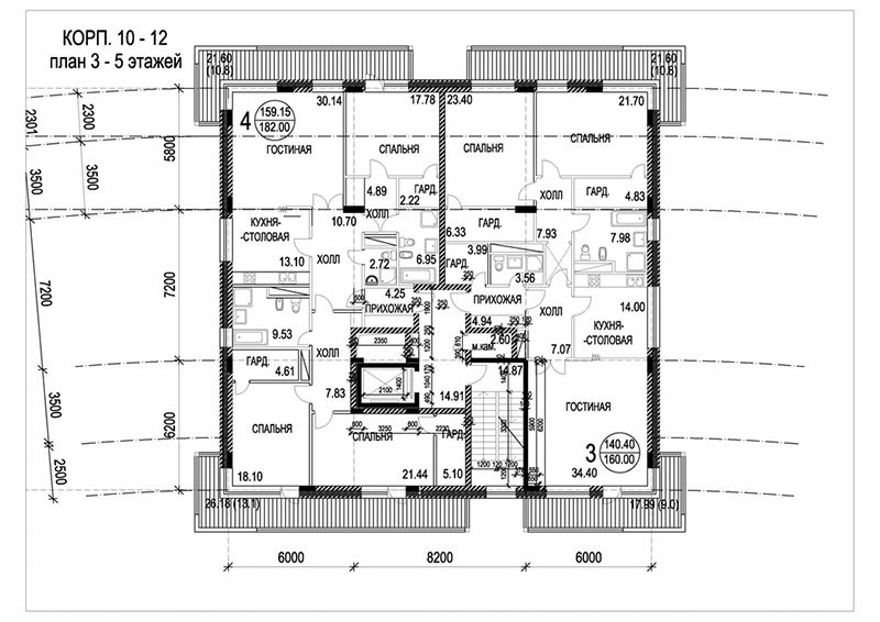
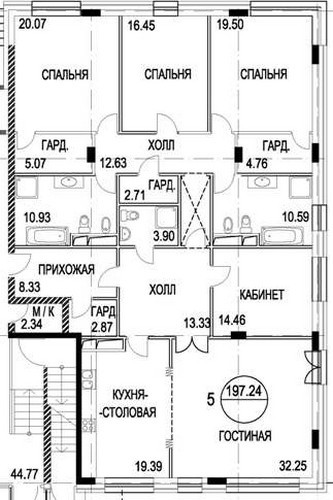
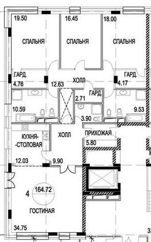
В каждом из четырех строений предусматривается несколько линий. Малоэтажные (4-6 этажей) первые линии имеют по восемь квартир от 160 до 221 кв. м. Возвышающееся восьмиэтажное здание корпуса с квартирами от 99 до 160 кв.м. также имеет окна, выходящие на озеро.
Благодаря точному расчету ЖК «Снегири Эко» предоставляет всем своим обитателям красивые виды, свежий воздух и отличные коммуникации.
Пожалуй только комплекс «Снегири Эко» предоставляет квартиры в ЗАО, в которых предусматривается двусторонний камин для обогрева гостиной и террасы, а также трехслойные стеклянные фасады, позволяющие наслаждаться вечнозеленой растительностью.
Застройщик: Снегири
Инфраструктура
Как добраться:
- метро Минская, 0.9 км.
- метро Ломоносовский проспект, 1.3 км.
Новости ЖК "Снегири-Эко" (Snegiri Eco)
В жилом комплексе «Снегири-Эко» полностью построено 9 домов
В многофункциональном комплексе «Снегири Эко», который возводится в западном округе Москвы на Минской улице, полностью построен монолитный каркас девяти домов.

ЖК "Park Place Фили" (Парк Плейс)
Фили-Давыдково, д. 40 к. 1, Багратионовская (2.2 км) , Кунцевская (1.3 км) , Пионерская (0.2 км)

Фили-Давыдково, Славянский бульвар 1/3, Багратионовская (2.8 км) , Кунцевская (1.6 км) , Пионерская (1.3 км)

— Недвижимость Москвы. Итоги 2025 года
Прошлый год стал для рынка недвижимости одним из самых спокойных за последнее время.

— Старты продаж в Москве. Второе полугодие 2025 года
Во втором полугодии 2025 года «прорыва» в выводе на рынок новых проектов в столице не случилось, более того, продолжился тренд на их сокращение.

— Новостройки Москвы. Итоги первого полугодия -2025
По последним данным, в первом полугодии текущего года столичные девелоперы начали реализацию 17 проектов жилой застройки.

— Можно ли в России купить квартиру в лизинг
Программа льготной ипотеки помогла огромному количеству россиян приобрести собственное жилье. Однако данный инструмент доступен далеко не всем, а альтернатив на рынке практически нет. Одной из немногих является покупка квартиры в лизинг.

— Марьина Роща - самая дорогая недвижимость в СВАО
Марьина Роща — самый южный район СВАО. Его граница на востоке проходит по железнодорожным путям Рижского направления и по Проспекту Мира, на юге — по оси Сущевского вала, улиц Советской Армии, Достоевского и Перунова переулка, на западе – вдоль Тихвинской улицы, ТТК, железнодорожных путей Савеловского направления и Складочной улицы, на севере — по промзоне Огородный проезд.

































Отзывы покупателей о новостройке ЖК "Снегири-Эко" (Snegiri Eco)
Макс
Плюсы:
Жилье куплено в крайнем доме у озера. Дома, которые идут вглубь комплекса, натыканы друг около друга. Думаю, из окон можно будет наблюдать как жена соседа варит борщ))) Ну, это можно проверить после сдачи домов в эксплуатацию. А так, местечко отличное. Вокруг много зелени, чистый воздух, красивые панорамы. Территория будет подвержена ландшафтному дизайну. Цены кусаются, но назвать их неоправданными нельзя.
Минусы:
Дома близко друг к другу, идут работы внутри
Роман
Плюсы:
Малоэтажность. В подземном паркинге много машиномест. Квартиры сдаются с отделкой под чистовую. Свободные планировки квартир. В пентхаусах предусмотрены двусторонние камины и просторные террасы.
Минусы:
Строительство некоторое время было приостановлено. В пешей доступности нет крупных супермаркетов. Нет квартир с площадью меньше 99 кв.м.
Савельев Кирилл
Плюсы:
В пентхаусах предусмотрены двусторонние камины и просторные террасы.
Минусы:
В пешей доступности нет крупных супермаркетов это плохо, но не критично.