ЖК "SREDA" (Среда)
Общее количество квартир: 685
Тип дома: монолитно-кирпичный
Готовность: Дома сданы
Срок сдачи: 3 кв.2021 г.
Виды предложений: Квартиры с отделкой
С паркингом: Подземный и наземный
Цена300-500 тыс. руб за м2
Адрес: Рязанский проспект, вл.2
Нижегородская (0.6 км) ,
Авиамоторная (2.7 км)
МЦК Нижегородская (0.6 км) ,
МЦК Новохохловская (1.5 км) ,
МЦД Новохохловская (1.6 км) ,
МЦК Андроновка (1.8 км)
Жилой квартал «SREDA» - новый проект комплексного строительства на юго-востоке столицы, в Нижегородском районе. Это часть масштабной реновации промзоны «Грайвороново», которая предполагает не только строительство жилой и коммерческой недвижимости, но и создание комфортных условий проживания.
Транспортная доступность обеспечивается выездами на крупные магистрали и ТТК, ближайшие станции метро — Текстильщики и Авиамоторная, находятся в 10 минутах езды на общественном транспорте.
Новый комплекс занимает территорию почти в 4 гектара, предполагается, что строительство будет вестись в три этапа. Всего запланировано возведение четырех жилых зданий:
- Двух 25-этажных односекционных на 242 квартиры каждое;
- Трехсекционного переменной этажности (5-7-9 этажей) на 92 квартиры;
- Трехсекционного 8-этажного на 109 квартир.
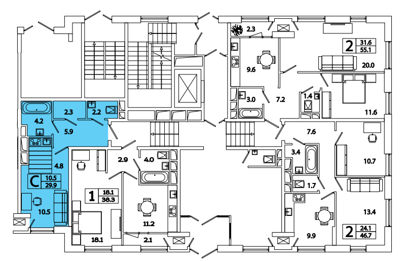
Застройщиком предлагаются студии и классические одно-, двух- и трехкомнатные квартиры различной площади и планировки.
Внутренняя инфраструктура ЖК «Среда» включает:
- Детский сад и школу;
- Одноэтажное здание общественного назначения;
- Коммерческие помещения под магазины и офисы на первых этажах домов;
- Закрытый зеленый двор с пешеходными дорожками, спортивными и детскими площадками;
- Двухуровневый подземный паркинг и наземную гостевую стоянку.
Застройщик: PSN group
Документация:
Инфраструктура
Как добраться:
- станция Нижегородская, 0.6 км.
- станция Новохохловская, 1.4 км.: от ст. м. на общ. транспорте: до ст. «Нижегородская» около 7 мин.;
Новости ЖК "SREDA" (Среда)
Акции и скидки в новостройках Москвы в декабре
Информация об акциях и скидках на квартиры в новостройках Москвы на одной странице
Комплекс класса «комфорт» SREDA стал лучшей новостройкой своего округа по уровню доходности
Продажи квартир «комфорт» класса в жилом комплексе SREDA принесли компании-застройщику «Группе ПСН» ощутимый доход. В течение текущего года стоимость квадратного метра выросла на 13,4%, что составляет почти 20 тыс. рублей.
Юрий Кочетков: Тренды рынка новостроек: вперёд и вниз
Продолжим освещение докладов аналитической конференции МАР (Московская ассоциация риэлторов). Теперь речь пойдёт про столичный рынок новостроек.

Нижегородский, ул. Новохохловская, Авиамоторная (2.5 км) , Волгоградский проспект (1.9 км) , Дубровка (2.7 км)

Стартовая площадка шоссе Фрезер, 7/2
Нижегородский, шоссе Фезер, 7/2, Авиамоторная (1.8 км) , Шоссе Энтузиастов (2.3 км) , Нижегородская (1 км)

Нижегородский, д.84 корп.1, Авиамоторная (2.3 км) , Волгоградский проспект (2 км) , Дубровка (2.9 км)

ЖК "MYPRIORITY Нижегородская" (Майприорити Нижегородская)
Нижегородский, ул. Газгольдерная, 10, Нижегородская (0.8 км)

Стартовая площадка Фрезер ш., вл. 11
Нижегородский, Фрезер ш., вл. 11, Нижегородская (0.65 км)

Рязанский, 2-й Грайвороновский пр., вл. 38, стр. 1-10, Кузьминки (2.4 км) , Рязанский проспект (3 км) , Нижегородская (1.6 км)

Лефортово, ул. Красноказарменная, 14А, Авиамоторная (0.3 км) , Площадь Ильича (2 км) , Римская (1.9 км)

Южнопортовый, Волгоградский пр., вл.32 корп.3, Автозаводская (2.7 км) , Волгоградский проспект (0.5 км) , Дубровка (1.1 км)

— Новостройки Москвы. Итоги первого полугодия -2025
По последним данным, в первом полугодии текущего года столичные девелоперы начали реализацию 17 проектов жилой застройки.

— Рассрочка вместо ипотеки – решение проблем?
По данным Росреестра, в декабре прошлого года произошло практически полное восстановление уровня продаж на рынке столичных новостроек.

— Недвижимость Москвы – 2024. Итоги года
Прошедший год выдался очень насыщенным и неоднозначным для рынка столичной недвижимости. Начало января – пора подведения итогов и обозначения возможных будущих трендов рынка.

— Можно ли в России купить квартиру в лизинг
Программа льготной ипотеки помогла огромному количеству россиян приобрести собственное жилье. Однако данный инструмент доступен далеко не всем, а альтернатив на рынке практически нет. Одной из немногих является покупка квартиры в лизинг.

— Как купить квартиру в доме по программе реновации
Дома, построенные в рамках реновации, интересуют не только «переселенцев», но и потенциальных покупателей. Ведь они часто возводятся в районах с хорошей транспортной доступностью и сложившейся инфраструктурой. Как купить квартиру в доме по реновации?

— Марьина Роща - самая дорогая недвижимость в СВАО
Марьина Роща — самый южный район СВАО. Его граница на востоке проходит по железнодорожным путям Рижского направления и по Проспекту Мира, на юге — по оси Сущевского вала, улиц Советской Армии, Достоевского и Перунова переулка, на западе – вдоль Тихвинской улицы, ТТК, железнодорожных путей Савеловского направления и Складочной улицы, на севере — по промзоне Огородный проезд.
























Отзывы покупателей о новостройке ЖК "SREDA" (Среда)
Василий
Плюсы:
Наконец-то дождались сдачу первой очереди. Довольны на 101%. Качество постройки достойное, планировки сделаны по уму. Для автомобиля построен вместительный паркинг. Двор уютный, есть игровая площадка для детей, высажены деревья. Расположение отличное, небольшая удаленность от центра. С транспортным сообщением проблем особых нет, но загруженность дорог все же высокая.
Минусы:
Пробки
Pavel
Плюсы:
Близость ТТК, хорошие планировки.
Минусы:
С соседней промзоной ничего не делается, на территории среды озеленения в плане катастрофически мало. Ни парков для гулянья, ни скверов. Ухудшает ситуацию и соседний огромный ТРЦ. Готовьтесь наблюдать под окнами непрерывный поток машин.
Квашонкин
Плюсы:
есть возможность приобрести квартиру с отделкой. Активно развивающийся район с магазинами, поликлиниками и разными спортивными центрами. Приятная, продуманная архитектура.
Минусы:
не успели купить по новогодним скидкам, придется теперь удачного момента для приобретения.