ЖК "Дом на Мосфильмовской"
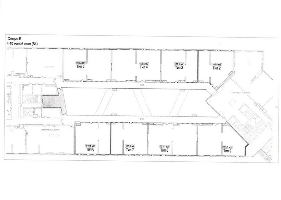
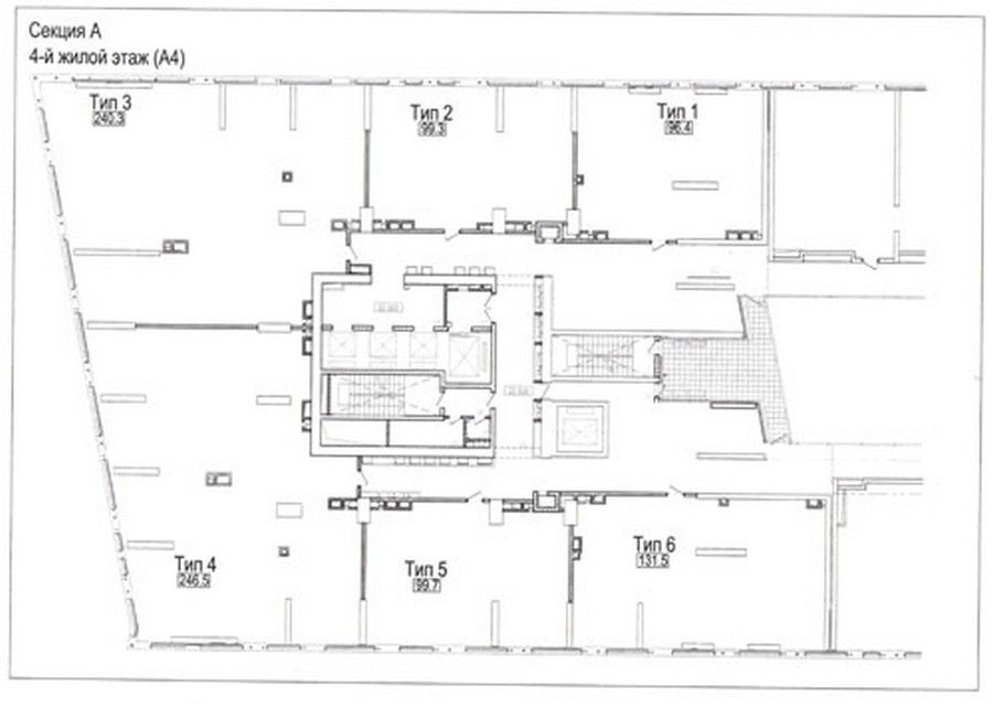
Площадь квартир:62 — 390 м2
Общее количество квартир: 564
Тип дома: монолитно-кирпичный
Готовность: Строительство завершено. Продажа на вторичном рынке.
Виды предложений: Пентхаусы, Квартиры
С паркингом: Подземный, 1270 м/мест
Адрес: Мосфильмовская ул, д. 8, корп 1-3
Парк Победы (1.6 км) ,
Кутузовская (1.7 км) ,
Студенческая (2 км) ,
Минская (2 км) ,
Ломоносовский проспект (2.2 км) ,
Спортивная (2.4 км) ,
Воробьёвы горы (2.5 км) ,
Фили (2.6 км) ,
Багратионовская (2.8 км)
МЦК Кутузовская (1.9 км) ,
МЦК Лужники (2.0 км)
Столичный жилой комплекс «Дом на Мосфильмовской» расположен по адресу ул.Пырьева, вл.2. Площадь участка 2,78 гектара, площадь подземной части превышает 58 тысяч квадратных метров, а жилая площадь равна 120 тысячам кв. метров.
Жилой комплекс представляет собой конструкцию, состоящую из 200-метровой 54-этажной башни и 120-метрового здания-пластины, для соединения которых использован 8-этажный небольшой продольный корпус- своеобразный стилобат.
Особое внимание заслуживает цветовое решение новостройки. Верхушка башни окрашена в цвет каррарского мрамора, который в нижних этажах сменяется темным известняком, а самый низ конструкции окрашен в черный цвет. Таким образом, создается впечатление, что башню даже в пасмурную погоду освещает луч солнца. Второй корпус постепенно сужается кверху, но немного наклоняется в сторону башни, благодаря чему создается визуальное единение всех деталей комплекса.
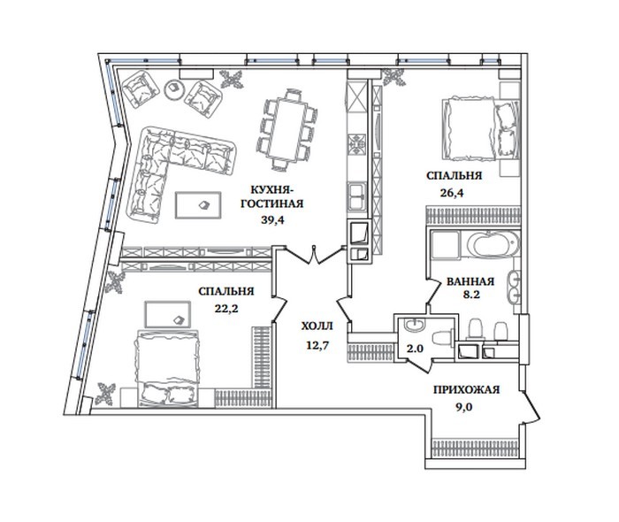
Всего в жилом комплексе 564 квартиры, а подземный паркинг рассчитан на 1270 машиномест. Все квартиры характеризуются свободной планировкой, площадь их варьируется от 62 до 390 кв. метров.
Особо стоит упомянуть о гордости новостройки - пентхаусе «The Residence». Это целый особняк, расположенный на крыше комплекса - он абсолютно автономен и обособлен от остальных апартаментов. Для него предусмотрен отдельный лифт и отдельный же паркинг на 8 машиномест.
По периметру кровли обустроена крытая галлерея, есть даже свой собственный бассейн и зона SPA. Из панорамных окон пентхауса открываются потрясающие виды практически на всю столицу.
Инфраструктура
Попасть в жилую часть здания можно только, пройдя по просторной галерее, высота которой превышает 8 метров. ЖК «Дом на Мосфильмовской» оснащен лифтами SIGMA. Во внутреннем дворе расположены детская и спортивная площадки. В состав комплекса входит трехуровневый паркинг с автомойкой. Территория огорожена и находится под круглосуточной охраной.
Одной из главных особенностей элитного жилого комплекса можно назвать отличное расположение. Из его окон можно увидеть набережную Москвы-реки, озера гольф-клуба, центральную часть российской столицы, Поклонную гору, Новодевичий монастырь и лесопарк МГУ.
Застройщик: ДОН-Строй
Инфраструктура
Как добраться:
- метро Парк Победы, 1.6 км.: от ст. м. на общ. транспорте: Автобус № 205. Троллейбусы №№ 7, 7к. до ост. «Мосфильм» около 28 мин.;
- метро Парк Победы, 1.7 км.: от ст. м. на общ. транспорте: до ст. «Киевская» около 7 мин.; Автобусы №№ 119, 205, 205к, 394. Троллейбусы №№ 17, 34, 34к, 7, 7к. до ост. «Мосфильм» около 14 мин.;
Новости ЖК "Дом на Мосфильмовской"
Банкротство RED Development: как не стать обманутым дольщиком
В условиях нестабильной экономики даже надежные девелоперы могут оказаться в зоне риска.
Как реагирует на кризис рынок элитной недвижимости? Что происходит с самыми дорогими и роскошными предложениями? Редакция KVARTIRAvMOSKVE.ru следит за судьбой выдающихся пентхаусов столицы.
ФОК с хоккейным полем и катком построят в районе Очаково-Матвеевское
В западном округе Москвы в районе Очаково-Матвеевское в текущем году планируется начать строительство нового физкультурно-оздоровительного комплекса.

Клубный дом "Гусарская баллада"
Филевский парк, вл.8, корп.5,6, Багратионовская (1.3 км) , Кутузовская (2.3 км) , Парк Победы (1.9 км)

— Новостройки Москвы. Итоги первого полугодия -2025
По последним данным, в первом полугодии текущего года столичные девелоперы начали реализацию 17 проектов жилой застройки.

— Рассрочка вместо ипотеки – решение проблем?
По данным Росреестра, в декабре прошлого года произошло практически полное восстановление уровня продаж на рынке столичных новостроек.

— Недвижимость Москвы – 2024. Итоги года
Прошедший год выдался очень насыщенным и неоднозначным для рынка столичной недвижимости. Начало января – пора подведения итогов и обозначения возможных будущих трендов рынка.

— Можно ли в России купить квартиру в лизинг
Программа льготной ипотеки помогла огромному количеству россиян приобрести собственное жилье. Однако данный инструмент доступен далеко не всем, а альтернатив на рынке практически нет. Одной из немногих является покупка квартиры в лизинг.

— Как купить квартиру в доме по программе реновации
Дома, построенные в рамках реновации, интересуют не только «переселенцев», но и потенциальных покупателей. Ведь они часто возводятся в районах с хорошей транспортной доступностью и сложившейся инфраструктурой. Как купить квартиру в доме по реновации?

— Марьина Роща - самая дорогая недвижимость в СВАО
Марьина Роща — самый южный район СВАО. Его граница на востоке проходит по железнодорожным путям Рижского направления и по Проспекту Мира, на юге — по оси Сущевского вала, улиц Советской Армии, Достоевского и Перунова переулка, на западе – вдоль Тихвинской улицы, ТТК, железнодорожных путей Савеловского направления и Складочной улицы, на севере — по промзоне Огородный проезд.













Отзывы покупателей о новостройке ЖК "Дом на Мосфильмовской"
Малика
Плюсы:
Мне в этом доме партнер квартиру арендовал, когда я на встречу прилетала. Честно, когда первый раз его увидела вживую, мягко говоря, обомлела) Ну очень необычный по дизайну, как будто не от мира сего, космический словно) Когда уже на территорию зашла, чуть "приземлилась", внутри детский городок есть, зоны отдыха, спортплощадка. Меня лично порадовало, что бассейн есть прямо в комплексе, далеко не везде такую опцию встречаешь
Минусы:
их нет
Софи
Плюсы:
Арендовали квартиру для съемок. Все супер, от управляющей до самой квартиры. Встретили нас радушно, несмотря на то, что мы не постоянные резиденты, приняли, как в 5-звездочном отеле где-нибудь на Сейшелах, не меньше))) Но отдельно хотела бы отметить шумоподавление: мы снимали сцены сериала, а конкретно монологи героев, требовалась максимальная тишина, это мы получили по итогу. Редко сейчас в новостроях встретишь такую звукоизоляцию, буду иметь ввиду для будущих проектов.
Минусы:
на время нашего пребывания таковых не было
Александр Макеев
Плюсы:
Почти все можно отнести к плюсам, начиная от расположения к центру, заканчивая УК, которая и сама отлично работает и заявки быстро выполняет. Ранее жил в центре, но в старом жилом фонде. Стало откровением, что качество жизни в соседнем районе на голову выше быть может.
Минусы:
Тарифы УК высоковаты. Соглашаюсь с ними только по тому, что отрабатывают все до копейки, на мой сугубо личный взгляд.