Продам 4-ком. квартиру, Куприна, 1
Цена37 216 011 руб
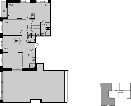
Площадь:118 м2
Комнат:4+
Этаж:11
Этажность:15
Ольховая (2.8 км)
Бунинская аллея (3.5 км)
Прокшино (3.5 км)
Столбово (3.5 км)
Округ: Новая Москва Район: Новомосковский
Тип дома:монолитный
Готовность:Идет строительство
Срок сдачи:2 кв.2024 г.
Продавец
Описание
Продается 4-комн. квартира с террасой в новом жилом комплексе, недалеко от метро 4-комн. квартира от застройщика в ЖК "Скандинавия" на 11 этаже. Квартира без отделки, новый собственник может сделать ремонт по индивидуальному дизайн-проекту. Общая площадь: 118.7 кв.м. Наличие террасы в квартире открывает возможность для создания зон отдыха в кругу семьи и друзей. Высота потолков 2.99 м. Дом монолитный, черырехподъездный, переменной этажности, от 10 до 15 этажей. Квартира находится во 2-й секции высотой 15 этажей в корпусе 2.23.6. На этаже 6 квартир. В подъезде 1 пассажирский и 1 грузовой лифт. Начало строительства - 2 квартал 2021 года. В настоящее время строительство завершено, дом сдан в 4 квартале 2023 года. Оформление сделки по договору купли-продажи. В шаговой доступности от жилого комплекса расположена станция метро (расстояние по прямой) «Потапово» (1.1 км). ЖК Скандинавия — жилой квартал в Новой Москве от ГК «А101». ЖК Скандинавия включает 19 монолитных жилых домов разной этажности (7-16 этажей). Жилой комплекс расположен в 6,5 км от МКАД в поселке Коммунарка. В пешей доступности находятся школы, детские сады, магазины, кафе, поликлиника, спортивная школа, отделение почты, дом культуры и пр. объекты инфраструктуры. ЖК "Скандинавия" находится в 15-минутной доступности до 3 веток метро. Автомобилисты могут воспользоваться выездом на Калужское шоссе (4,7 км). (AQID02304627)
Войковский, д. 37, Водный стадион (0.8 км) , Войковская (1.8 км) , Речной вокзал (2.4 км) , Строительство завершено. Продажа на вторичном рынке.

Клубный дом "2-й Зачатьевский, 11"
Хамовники, вл. 11/17, Кропоткинская (0.6 км) , Парк Культуры (0.7 км) , свыше 1000 тыс. руб./м2, Строительство завершено. Продажа на вторичном рынке.

ЖК "Дом на Саввинской набережной"
Хамовники, вл. 2А, Парк Культуры (1 км) , Строительство завершено. Продажа на вторичном рынке.

"Golden Mile" private residences (Голден Майл приват резиденсес)
Хамовники, д. 9/14, Кропоткинская (0.4 км) , Парк Культуры (0.9 км) , Строительство завершено. Продажа на вторичном рынке.

Апарт-комплекс "START Формат" (СТАРТ Формат)
Царицыно, , Орехово (2.6 км) , Пражская (4 км) , Царицыно (2.8 км) , Строительство приостановлено

Апарт-комплекс ReForm (Реформ)
Преображенское, д. 3, Партизанская (2.3 км) , Преображенская площадь (0.4 км) , Семеновская (1.9 км) , Строительство завершено. Продажа на вторичном рынке.

Столичная программа реновации работает вот уже почти 9 лет. Более того, в последние два года – активно нарастающими темпами. В наступившем году столичная мэрия обещает 2.5 млн кв. метров нового жилья.

— Недвижимость Москвы. Итоги 2025 года
Прошлый год стал для рынка недвижимости одним из самых спокойных за последнее время.

— Старты продаж в Москве. Второе полугодие 2025 года
Во втором полугодии 2025 года «прорыва» в выводе на рынок новых проектов в столице не случилось, более того, продолжился тренд на их сокращение.
















