Апарт-комплекс "START Формат" (СТАРТ Формат)
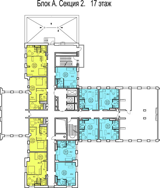
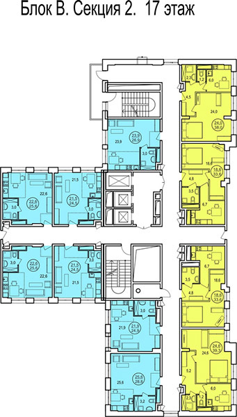
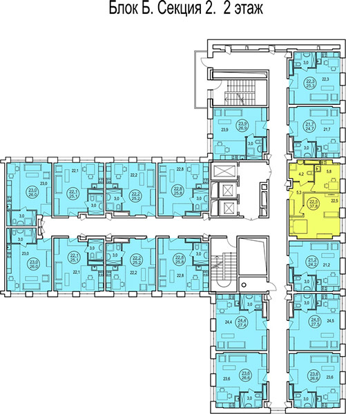
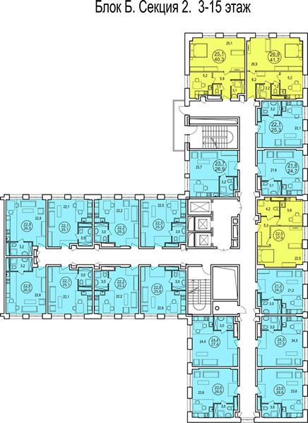
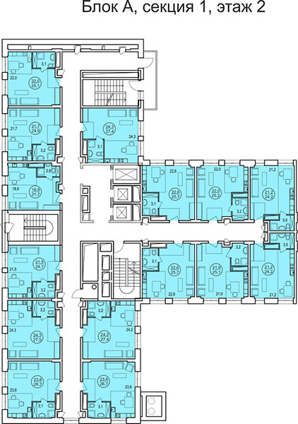
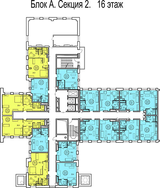
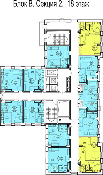
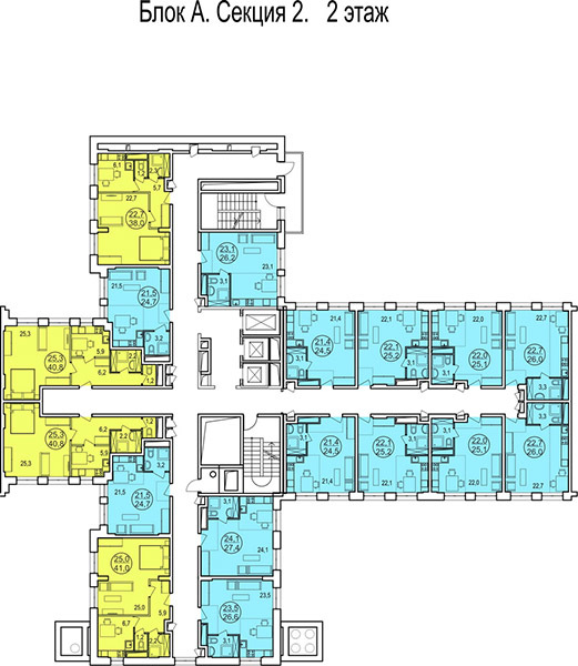
Площадь квартир:25 — 39 м2
Высота потолков:2.7
Общее количество квартир: 2192
Тип дома: монолитный
Готовность: Строительство приостановлено
Виды предложений: Апартаменты
С паркингом: Подземные паркинги
Адрес: Элеваторная ул
Орехово (2.6 км) ,
Царицыно (2.8 км) ,
Пражская (4 км)
МЦД Покровское (1.5 км) ,
МЦД Царицыно (1.7 км)
Апарт-комплекс «START Формат» - уникальное предложение на рынке столичной недвижимости. Проект реализуется на юге Москвы в рамках комплексной застройки микрорайона «Царицыно».
Место, выбранное для строительства удачно сочетает хорошую транспортную доступность — удобные развязки и расположенная в нескольких минутах езды станция метро Царицыно, и благоприятную экологическую обстановку: микрорайон граничит с массивом Бирюлевского дендропарка.
Комплекс включает более 2000 апартаментов, площадь их начинается от 25 кв.м. метров, планировка свободная, сдаются они с черновой отделкой, так что внутреннее пространство можно оформить по своему усмотрению.
Инженерные системы комплекса соответствуют самым высоким современным требованиям. На всей территории работает бесплатный Wi-Fi.
Апарт-комплекс «СТАРТ Формат» прекрасно подходит молодым людям, приобретающим первое собственное жилье. В холлах устанавливаются тренажерные комплексы, имеется прекрасно оборудованная прачечная, позволяющая экономить место в ванных - нет необходимости устанавливать стиральную машину, для автомобилей предусмотрен подземный паркинг.
Кроме этого, новоселам доступна вся обширная инфраструктура микрорайона с детскими садами, школами, разнообразными магазинами и всем остальным, что может понадобиться в повседневной жизни.
Планировки
Инфраструктура
Как добраться:
- метро Царицыно, 2.0 км.: от ст. м. на общ. транспорте: Маршрутка № Новое Царицыно - Метро Царицыно. до ост. «Микрорайон Царицыно» около 10 мин.;
- метро Орехово, 2.5 км.: от ст. м. на общ. транспорте: до ст. «Царицыно» около 6 мин.; Маршрутка № Новое Царицыно - Метро Царицыно. до ост. «Микрорайон Царицыно» около 10 мин.;
Новости Апарт-комплекс "START Формат" (СТАРТ Формат)
Новые апартаменты в Москве 2015-2016
По итогам 1 полугодия 2015 г. на рынок Москвы вышло 13 новых проектов апартаментов, в результате старта продаж общий объем предложения апартаментов на первичном рынке увеличился на 21% по сравнению с 2014 г.
Более 53% апартаментов представлено в сегменте «бизнес-класс»
По аналитическим данным компании «МИЭЛЬ-Новостройки», более 53% апартаментов столицы относится к сегменту «бизнес-класса», при этом на новые проекты приходится свыше 63%.
Выгодные условия в мкрн. «Царицыно»
НДВ-Недвижимость сообщает о социальном предложении на приобретение квартир в мкр. «Царицыно», «Царицыно-2» и «Старт-формат». Квартиру можно купить по акции «Три плюса».

Комплекс апартаментов "Басманный, 5"
Басманный, вл. 13, Комсомольская (0.7 км) , Красные ворота (0.6 км)

Жилой комплекс "Маршала Захарова 7"
Орехово-Борисово сев., 7, Домодедовская (1.6 км) , Красногвардейская (2.7 км) , Орехово (1.3 км)

Жилой комплекс "Борисовский дом"
Зябликово, вл. 63, корп.3, Домодедовская (0.5 км) , Красногвардейская (1.7 км) , Орехово (1.7 км)

— Недвижимость Москвы. Итоги 2025 года
Прошлый год стал для рынка недвижимости одним из самых спокойных за последнее время.

— Старты продаж в Москве. Второе полугодие 2025 года
Во втором полугодии 2025 года «прорыва» в выводе на рынок новых проектов в столице не случилось, более того, продолжился тренд на их сокращение.

— Новостройки Москвы. Итоги первого полугодия -2025
По последним данным, в первом полугодии текущего года столичные девелоперы начали реализацию 17 проектов жилой застройки.

— Можно ли в России купить квартиру в лизинг
Программа льготной ипотеки помогла огромному количеству россиян приобрести собственное жилье. Однако данный инструмент доступен далеко не всем, а альтернатив на рынке практически нет. Одной из немногих является покупка квартиры в лизинг.

— Марьина Роща - самая дорогая недвижимость в СВАО
Марьина Роща — самый южный район СВАО. Его граница на востоке проходит по железнодорожным путям Рижского направления и по Проспекту Мира, на юге — по оси Сущевского вала, улиц Советской Армии, Достоевского и Перунова переулка, на западе – вдоль Тихвинской улицы, ТТК, железнодорожных путей Савеловского направления и Складочной улицы, на севере — по промзоне Огородный проезд.


















Отзывы покупателей о новостройке Апарт-комплекс "START Формат" (СТАРТ Формат)
Баринов
Плюсы:
Очень необычный подход подкупил.Все включенные в проект услуги делают жизнь в комплексе по-новому комфортной.По крайней мере так обещают,увидим,что получится.А пока радует цена.
Минусы:
нет прописки