Продам 3-ком. квартиру, жилой комплекс Скандинавия, 18.2.2
Цена29 392 950 руб
Площадь:69 м2
Комнат:3
Этаж:10
Этажность:12
Ольховая (2.8 км)
Бунинская аллея (3.5 км)
Прокшино (3.5 км)
Столбово (3.5 км)
Округ: Новая Москва Район: Новомосковский
Тип дома:монолитный
Готовность:Идет строительство
Срок сдачи:2 кв.2024 г.
Продавец
Описание
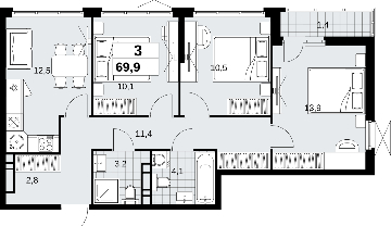
Просторная 3-комнатная квартира с отделкой в новостройке, рядом с метро Продается 3-комн. квартира с отделкой в ЖК "Скандинавия" на 10 этаже. Общая площадь: 69.9 кв.м., жилая: 34.5 кв.м., площадь просторной кухни-столовой: 12.5 кв.м. Квартира угловая, идеально подойдет любителям тишины и панорамных видов. В квартире одна лоджия, два совмещенных санузла. Высота потолков 2.95 м. В квартире будет выполнена полная отделка. Также выполнена вся электроразводка, установлены концевые выключатели и розетки, смонтированы межкомнатные двери, на полу ламинат и плитка, установлена вся сантехника. Имеется ниша под гардероб. Дом монолитный, двухподъездный, высотой 12 этажей. Квартира находится во 2-й секции в корпусе 2.18.2.2. На этаже 7 квартир. В подъезде 1 пассажирский и 1 грузовой лифт. Начало строительства - 1 квартал 2024 года. Окончание строительства - 1 квартал 2027 года. Оформление сделки по договору долевого участия. Артикул квартиры по базе застройщика 23К-18.2.2-255. В шаговой доступности от жилого комплекса находится станция метро (расстояние по прямой) «Потапово» (1.1 км). ЖК Скандинавия — жилой квартал в Новой Москве от ГК «А101». ЖК Скандинавия включает 19 монолитных жилых домов разной этажности (7-16 этажей). Жилой комплекс расположен в 6,5 км от МКАД в поселке Коммунарка. В пешей доступности находятся школы, детские сады, магазины, кафе, поликлиника, спортивная школа, отделение почты, дом культуры и пр. объекты инфраструктуры. ЖК "Скандинавия" находится в 15-минутной доступности до 3 веток метро. Автомобилисты могут воспользоваться выездом на Калужское шоссе (4,7 км). (AQID02351295)
Войковский, д. 37, Водный стадион (0.8 км) , Войковская (1.8 км) , Речной вокзал (2.4 км) , Строительство завершено. Продажа на вторичном рынке.

Клубный дом "2-й Зачатьевский, 11"
Хамовники, вл. 11/17, Кропоткинская (0.6 км) , Парк Культуры (0.7 км) , свыше 1000 тыс. руб./м2, Строительство завершено. Продажа на вторичном рынке.

ЖК "Дом на Саввинской набережной"
Хамовники, вл. 2А, Парк Культуры (1 км) , Строительство завершено. Продажа на вторичном рынке.

"Golden Mile" private residences (Голден Майл приват резиденсес)
Хамовники, д. 9/14, Кропоткинская (0.4 км) , Парк Культуры (0.9 км) , Строительство завершено. Продажа на вторичном рынке.

Апарт-комплекс "START Формат" (СТАРТ Формат)
Царицыно, , Орехово (2.6 км) , Пражская (4 км) , Царицыно (2.8 км) , Строительство приостановлено

Апарт-комплекс ReForm (Реформ)
Преображенское, д. 3, Партизанская (2.3 км) , Преображенская площадь (0.4 км) , Семеновская (1.9 км) , Строительство завершено. Продажа на вторичном рынке.

— Недвижимость Москвы. Итоги 2025 года
Прошлый год стал для рынка недвижимости одним из самых спокойных за последнее время.

— Старты продаж в Москве. Второе полугодие 2025 года
Во втором полугодии 2025 года «прорыва» в выводе на рынок новых проектов в столице не случилось, более того, продолжился тренд на их сокращение.

— Новостройки Москвы. Итоги первого полугодия -2025
По последним данным, в первом полугодии текущего года столичные девелоперы начали реализацию 17 проектов жилой застройки.
















