Продам 2-ком. квартиру, Скандинавский бульвар, 25.5
Цена22 229 460 руб
Площадь:54 м2
Комнат:2
Этаж:15
Этажность:17
Ольховая (2.8 км)
Бунинская аллея (3.5 км)
Прокшино (3.5 км)
Столбово (3.5 км)
Округ: Новая Москва Район: Новомосковский
Тип дома:монолитный
Готовность:Идет строительство
Срок сдачи:2 кв.2024 г.
Продавец
Описание
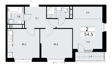
Двухкомнатная квартира в новостройке, недалеко от метро Продается 2-комн. квартира бизнес-класса от застройщика в ЖК "Скандинавия" на 15 этаже. Квартира без отделки, новый собственник может сделать ремонт по своему дизайн-проекту. Общая площадь: 54.5 кв.м., жилая: 23.8 кв.м., площадь просторной кухни-столовой: 11.4 кв.м. Угловая квартира, идеально подойдет любителям тишины и панорамных видов. В квартире одна лоджия, два совмещенных санузла. Высота потолков 3.1 м. Квартира будет сдана без отделки. Установлены стеклопакеты с повышенной тепло- и шумоизоляцией, установлены элементы отопления, входная дверь, заведены все коммуникации. Дом монолитный, трехподъездный, переменной этажности, от 12 до 17 этажей. Квартира находится в 3-й секции высотой 17 этажей в корпусе бизнес-класса 2.25.5. На этаже 6 квартир. В подъезде 1 пассажирский и 1 грузовой лифт. Начало строительства - 4 квартал 2023 года. Окончание строительства - 2 квартал 2026 года. Оформление сделки по договору долевого участия. Артикул квартиры по базе застройщика 24К-25.5-919. В шаговой доступности от жилого комплекса находятся станции метро (расстояние по прямой): «Потапово» (1.0 км), «Новомосковская» (1.8 км), «Новомосковская (Коммунарка)» (1.9 км). ПРЕДЛОЖЕНИЯ ОТ ЗАСТРОЙЩИКА В ОКТЯБРЕ 2025: Ипотека от 13,9 % для всех! На весь срок. "Семейная ипотека" вернулась. Ставка от 3,5 % на весь срок! Без удорожания! Выгодное ипотечное комбо: Ипотека от 2200 р./мес. и от 6 % после рождения ребёнка! Ипотека для всех "Держи пять!" - ставка 5 % на 2 года! *более подробную информацию по скидкам и акциям уточняйте в отделе продаж ЖК "Скандинавия" - один из проектов компании А101, известной своей надежностью. Жилой комплекс расположен на юго-западе Москвы в 6-ти километрах от МКАД в окружении Бутовского лесопарка, район Коммунарка. Рядом открылись новые станции метро. Часть корпусов микрорайона "Скандинавия" уже заселены, полностью сформирована вся инфраструктура: больницы, детские сады, школы, магазины. Отличительная особенность жилого комплекса - невысокие дома, просторные дворы без машин, комфортная благоустроенная придомовая территория. (AQID02283840)
Войковский, д. 37, Водный стадион (0.8 км) , Войковская (1.8 км) , Речной вокзал (2.4 км) , Строительство завершено. Продажа на вторичном рынке.

Клубный дом "2-й Зачатьевский, 11"
Хамовники, вл. 11/17, Кропоткинская (0.6 км) , Парк Культуры (0.7 км) , свыше 1000 тыс. руб./м2, Строительство завершено. Продажа на вторичном рынке.

ЖК "Дом на Саввинской набережной"
Хамовники, вл. 2А, Парк Культуры (1 км) , Строительство завершено. Продажа на вторичном рынке.

"Golden Mile" private residences (Голден Майл приват резиденсес)
Хамовники, д. 9/14, Кропоткинская (0.4 км) , Парк Культуры (0.9 км) , Строительство завершено. Продажа на вторичном рынке.

Апарт-комплекс "START Формат" (СТАРТ Формат)
Царицыно, , Орехово (2.6 км) , Пражская (4 км) , Царицыно (2.8 км) , Строительство приостановлено

Апарт-комплекс ReForm (Реформ)
Преображенское, д. 3, Партизанская (2.3 км) , Преображенская площадь (0.4 км) , Семеновская (1.9 км) , Строительство завершено. Продажа на вторичном рынке.

— Новостройки Москвы. Итоги первого полугодия -2025
По последним данным, в первом полугодии текущего года столичные девелоперы начали реализацию 17 проектов жилой застройки.

— Рассрочка вместо ипотеки – решение проблем?
По данным Росреестра, в декабре прошлого года произошло практически полное восстановление уровня продаж на рынке столичных новостроек.

— Недвижимость Москвы – 2024. Итоги года
Прошедший год выдался очень насыщенным и неоднозначным для рынка столичной недвижимости. Начало января – пора подведения итогов и обозначения возможных будущих трендов рынка.















