ЖК "Семеновский"
Площадь квартир:40 м2
Высота потолков:3
Тип дома: монолитно-кирпичный
Готовность: Строительство завершено. Продажа на вторичном рынке.
Виды предложений: Квартиры
С паркингом: Подземный, 218 м/мест
Адрес: Борисовская ул, д. 1
Партизанская (0.9 км) ,
Семеновская (1.1 км) ,
Преображенская площадь (1.7 км) ,
Черкизовская (1.9 км) ,
Электрозаводская (2 км) ,
Рубцовская (2.1 км)
МЦК Измайлово (0.6 км) ,
МЦК Соколиная гора (1.8 км)
ЖК «Семеновский» — это необычный с архитектурной точки зрения жилой комплекс Г-образной формы. Благодаря такому решению во дворе дома образовалось гигантское пространство, на котором отлично уместились спортивные и детские площадки, рекреационные зоны для взрослых.
Подземная двухэтажная стоянка, рассчитанная на 218 мест, позволила избавиться от загромождения двора автомобилями. Для машин гостей предусмотрен удобный 26-местный паркинг.
Что представляет собой сам жилой комплекс? Это два 17-ти этажных корпуса, объединённых с 10-ти этажным офисным строением и оригинальным одноэтажным стилобатом.
Территория комплекса полностью благоустроена: при посадке кустарников и деревьев использовались современные садоводческие технологии, дорожки и площадки выполнены в соответствии с высочайшими стандартами качества.
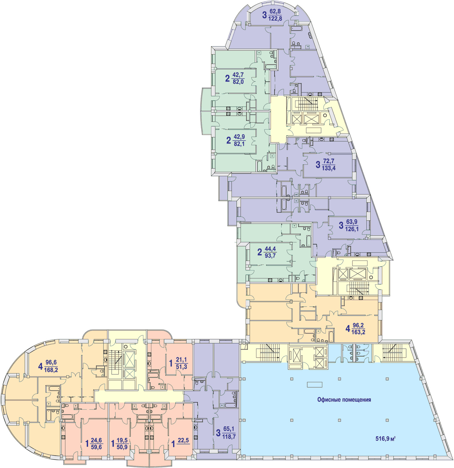
Планировки
Инфраструктура
Как добраться:
- станция Измайлово, 0.6 км.
- метро Партизанская, 0.9 км.

Соколиная гора, вл.26 корп.1,2, Авиамоторная (1.6 км) , Семеновская (2.2 км) , Шоссе Энтузиастов (1.4 км)

Стартовая площадка реновации проспект Будённого, вл. 21
Соколиная гора, проспект Будённого, вл. 21, Семеновская (1.5 км)

Стартовая площадка реновации проспект Будённого, 17Б
Соколиная гора, проспект Будённого, 17Б, Семеновская (1.2 км)

— Новостройки Москвы. Итоги первого полугодия -2025
По последним данным, в первом полугодии текущего года столичные девелоперы начали реализацию 17 проектов жилой застройки.

— Рассрочка вместо ипотеки – решение проблем?
По данным Росреестра, в декабре прошлого года произошло практически полное восстановление уровня продаж на рынке столичных новостроек.

— Недвижимость Москвы – 2024. Итоги года
Прошедший год выдался очень насыщенным и неоднозначным для рынка столичной недвижимости. Начало января – пора подведения итогов и обозначения возможных будущих трендов рынка.

— Можно ли в России купить квартиру в лизинг
Программа льготной ипотеки помогла огромному количеству россиян приобрести собственное жилье. Однако данный инструмент доступен далеко не всем, а альтернатив на рынке практически нет. Одной из немногих является покупка квартиры в лизинг.

— Как купить квартиру в доме по программе реновации
Дома, построенные в рамках реновации, интересуют не только «переселенцев», но и потенциальных покупателей. Ведь они часто возводятся в районах с хорошей транспортной доступностью и сложившейся инфраструктурой. Как купить квартиру в доме по реновации?

— Марьина Роща - самая дорогая недвижимость в СВАО
Марьина Роща — самый южный район СВАО. Его граница на востоке проходит по железнодорожным путям Рижского направления и по Проспекту Мира, на юге — по оси Сущевского вала, улиц Советской Армии, Достоевского и Перунова переулка, на западе – вдоль Тихвинской улицы, ТТК, железнодорожных путей Савеловского направления и Складочной улицы, на севере — по промзоне Огородный проезд.









Отзывы покупателей о новостройке ЖК "Семеновский"
Маргарита
Плюсы:
Круглосуточная охрана и видеонаблюдение. Собственная управляющая компания. Комплекс строится на территории лесопарка. Квартиры со свободными планировками. Хорошая экология, поблизости нет предприятий вредной промышленности.
Минусы:
Нет рассрочки или ипотеки. Серьёзные заторы в сторону центра утром. Квартиры сдаются без отделки. Сроки сдачи комплекса переносились.
Маргарита
Плюсы:
Круглосуточная охрана и видеонаблюдение. Собственная управляющая компания. Комплекс строится на территории лесопарка. Квартиры со свободными планировками. Хорошая экология, поблизости нет предприятий вредной промышленности.
Минусы:
Нет рассрочки или ипотеки. Серьёзные заторы в сторону центра утром. Квартиры сдаются без отделки. Сроки сдачи комплекса переносились.
Зонов Павел
Плюсы:
Пока на стадии выбора, но склоняемся к этому варианту. Так как отзывов нигативных не встречали, строительство вроде идет. Как мы поняли было какое-то время затишье, но сейчас все ок.