ЖК "Рихард"
Квартиры : | студии от 16 млн. руб , 1 комн.кв-ры от 18 млн. руб , 2 комн.кв-ры от 28 млн. руб , 3 комн.кв-ры от 35 млн. руб Интервал стоимости предложения включает в себя минимальную цену в данном жилом комплексе. В случае заинтересованности необходимо уточнение конечной стоимости у компании, реализующей данное предложение. |
|---|
Площадь квартир:26 — 95 м2
Высота потолков:до 4.5
Тип дома: монолитный
Готовность: Дома сданы
Срок сдачи: 2 кв.2022 г.
Виды предложений: Квартиры
С паркингом: Подземный
Цена300-500 тыс. руб за м2
Адрес: ул. Зорге, 9
Полежаевская (0.9 км) ,
Хорошевская (0.9 км) ,
Октябрьское поле (1.6 км) ,
ЦСКА (1.6 км) ,
Народное ополчение (1.8 км) ,
Беговая (2.3 км) ,
Сокол (2.6 км)
МЦК Хорошево (0.6 км) ,
МЦК Зорге (0.9 км) ,
МЦК Панфиловская (1.9 км)
Жилой комплекс «Рихард» - проект бизнес-класса в Хорошевском районе Москвы.
Транспорт и экология
Выезды на Хорошевское и Звенигородское шоссе, Ленинградский проспект, а также метро в пешем доступе обеспечивают вполне приемлемую дорожную ситуацию, несмотря на плотный трафик движения в районе.
В плане экологической обстановки, окружение неоднозначно — рядом имеются и промзоны, и большие парки. До ближайшего, Березовой рощи, можно не спеша дойти за несколько минут.
Архитектура и недвижимость
Территория застраивается монолитными многосекционными корпусами высотой от 8 до 27 этажей, выдержанными в современном урбанистическом стиле. Здания привлекают внимание необычными «ломаными» линиями фасадов, яркими декоративными элементами, панорамными окнами.
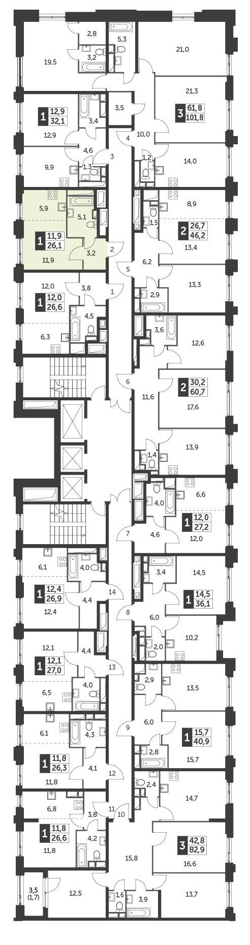
Квартирография ЖК «Рихард» впечатляет — более двухсот вариантов планировочных решений. Помимо одно-, двух-, трех- и четырехкомнатного жилья, классического или «евро», застройщиком предлагается недвижимость редких форматов. Так, можно подобрать квартиру с увеличенной высотой потолков — до 4.5 метра, с местом под зимний сад, с мастер-спальнями, дополнительными санузлами, окном в ванной.
Все планировки и цены подробно представлены на официальном сайте новостройки.
Первые этажи зданий отведены под коммерческие помещения, подземный уровень — под вместительный паркинг. Также запланирована и гостевая наземная стоянка. Дворы озеленяются, устанавливаются спортивные и детские площадки.
Застройщик: ГК «ФСК»
Планировки
Инфраструктура
Новости ЖК "Рихард"
В Хорошевском районе Москвы стартовали продажи недвижимости в ЖК «Рихард»
В жилом комплексе «Рихард» на этап продаж вышел новый объем недвижимости во втором корпусе, дом рассчитан на 353 квартиры.

Апарт-комплекс "Life Activity" (Лайф и Активити)
Хорошевский, ул. Зорге, 1, Октябрьское поле (2 км) , Полежаевская (0.3 км) , Сокол (2.9 км)

Хорошевский, парк Серебряный бор, Октябрьское поле (2 км) , Мневники (2.7 км) , Народное ополчение (2.5 км)

Апарт-комплекс "Life Activity" (Лайф и Активити)
Хорошевский, ул. Зорге, 1, Октябрьское поле (2 км) , Полежаевская (0.3 км) , Сокол (2.9 км)

Хорошево-Мневники, ул. Мневники, Октябрьское поле (2.4 км) , Полежаевская (1.4 км) , Беговая (2.9 км)

Хорошево-Мневники, пр. Маршала Жукова/ул. Народного ополчения, Октябрьское поле (2.4 км) , Полежаевская (2.9 км) , Мневники (1.7 км)

Стартовая площадка Береговой пр., вл. 2, стр. 18-19
Филевский парк, Береговой пр., д. 1А и 1Б, Багратионовская (1.8 км) , Кутузовская (2.4 км) , Парк Победы (2.3 км)

— Новостройки Москвы. Итоги первого полугодия -2025
По последним данным, в первом полугодии текущего года столичные девелоперы начали реализацию 17 проектов жилой застройки.

— Рассрочка вместо ипотеки – решение проблем?
По данным Росреестра, в декабре прошлого года произошло практически полное восстановление уровня продаж на рынке столичных новостроек.

— Недвижимость Москвы – 2024. Итоги года
Прошедший год выдался очень насыщенным и неоднозначным для рынка столичной недвижимости. Начало января – пора подведения итогов и обозначения возможных будущих трендов рынка.

— Можно ли в России купить квартиру в лизинг
Программа льготной ипотеки помогла огромному количеству россиян приобрести собственное жилье. Однако данный инструмент доступен далеко не всем, а альтернатив на рынке практически нет. Одной из немногих является покупка квартиры в лизинг.

— Как купить квартиру в доме по программе реновации
Дома, построенные в рамках реновации, интересуют не только «переселенцев», но и потенциальных покупателей. Ведь они часто возводятся в районах с хорошей транспортной доступностью и сложившейся инфраструктурой. Как купить квартиру в доме по реновации?

— Марьина Роща - самая дорогая недвижимость в СВАО
Марьина Роща — самый южный район СВАО. Его граница на востоке проходит по железнодорожным путям Рижского направления и по Проспекту Мира, на юге — по оси Сущевского вала, улиц Советской Армии, Достоевского и Перунова переулка, на западе – вдоль Тихвинской улицы, ТТК, железнодорожных путей Савеловского направления и Складочной улицы, на севере — по промзоне Огородный проезд.














Отзывы покупателей о новостройке ЖК "Рихард"
Андрей
Плюсы:
Район тихий, зелени много, но при этом до центра можно доехать за 15 минут. Рядом старомосковская архитектура, атмосферно и спокойно.
Минусы:
нет
Елизавета
Плюсы:
У нас во дворе не просто детская площадка и асфальт, а продуманное пространство, тихие зоны, скамейки под деревьями, сенсорный сад, сухой фонтан, арт-объекты. И убирают это все регулярно, чисто и хорошо у нас
Минусы:
Нет
Максим Максимович
Плюсы:
Живу здесь с момента заселения. За это время понял, что выбрал удачно. Дом не подкачал ни по качеству, ни по атмосфере. Никаких сюрпризов с коммуникациями или управлением. Во дворе действительно тихо и ухоженно. Инфраструктура вокруг нормальная, всего в избытке