Продам 3-ком. квартиру, Прокшинский проспект
Цена25 445 238 руб
Площадь:60 м2
Комнат:3
Этаж:12
Этажность:15
Прокшино (0.5 км)
Столбово (1.3 км)
Ольховая (1.8 км)
Филатов луг (2.4 км)
Саларьево (4 км)
Румянцево (4.7 км)
Округ: Новая Москва Район: Новомосковский
Тип дома:монолитно-кирпичный
Готовность:Идет строительство
Срок сдачи:2 кв.2024 г.
Продавец
Описание
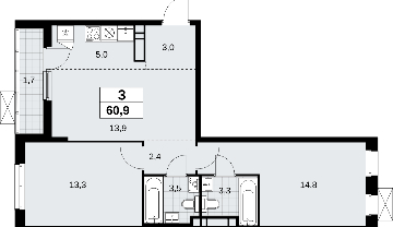
Продается 3-комнатная квартира с европланировкой в новостройке, рядом с метро Просторная трехкомнатная квартира с европланировкой в ЖК "Прокшино" на 12 этаже. Квартира без отделки, полностью готова к ремонту. Общая площадь: 60.9 кв.м., жилая: 42 кв.м., общая площадь гостиной-столовой с кухонной зоной: 18.9 кв.м. Европланировка, за счет большой площади кухни-гостиной квартира выглядит просторной и очень удобна для жизни. Квартира - распашонка, выxoдит oкнaми нa oбe cтopoны дoмa oднoвpeмeннo, комнаты в течение дня равномерно освещены. В квартире одна лоджия, два совмещенных санузла. Высота потолков 2.95 м. Дом монолитный, трехподъездный, переменной этажности, от 12 до 16 этажей. Квартира находится во 2-й секции высотой 15 этажей в корпусе 7.1.1. На этаже 5 квартир. В подъезде 1 пассажирский и 1 грузовой лифт. Начало строительства - 4 квартал 2024 года. Окончание строительства - 1 квартал 2027 года. Оформление сделки по договору долевого участия. В шаговой доступности от жилого комплекса имеются станции метро (расстояние по прямой): «Прокшино» (1.5 км), «Филатов луг» (1.6 км), также недалеко от этого корпуса находятся станции метро: «Саларьево», «Румянцево», «Теплый стан». ЖК «Прокшино» расположен в 7,6 км от МКАД в Новой Москве. В 8 минутах пешком находится станция метро "Прокшино" быстрой и комфортной красной линии метро. Высокую транспортную доступность обеспечивают и два крупных шоссе, до которых легко доехать за 5 минут по новой скоростной автотрассе Солнцево – Бутово – Варшавское шоссе. Жилой комплекс "Прокшино" входит в кластер Прокшино. В районе появятся дома комфорт и бизнес-класса с подземным паркингом, закрытыми благоустроенными дворами без машин, местами для активного и созерцательного отдыха, магазинами, бытовыми сервисами и другими коммерческими объектами. Рядом пруд с собственной набережной и городской парк «Хованская дубрава». Для маленьких жителей построят детские сады, образовательный комплекс. (AQID02422764)
Войковский, д. 37, Водный стадион (0.8 км) , Войковская (1.8 км) , Речной вокзал (2.4 км) , Строительство завершено. Продажа на вторичном рынке.

Клубный дом "2-й Зачатьевский, 11"
Хамовники, вл. 11/17, Кропоткинская (0.6 км) , Парк Культуры (0.7 км) , свыше 1000 тыс. руб./м2, Строительство завершено. Продажа на вторичном рынке.

ЖК "Дом на Саввинской набережной"
Хамовники, вл. 2А, Парк Культуры (1 км) , Строительство завершено. Продажа на вторичном рынке.

"Golden Mile" private residences (Голден Майл приват резиденсес)
Хамовники, д. 9/14, Кропоткинская (0.4 км) , Парк Культуры (0.9 км) , Строительство завершено. Продажа на вторичном рынке.

Апарт-комплекс "START Формат" (СТАРТ Формат)
Царицыно, , Орехово (2.6 км) , Пражская (4 км) , Царицыно (2.8 км) , Строительство приостановлено

Апарт-комплекс ReForm (Реформ)
Преображенское, д. 3, Партизанская (2.3 км) , Преображенская площадь (0.4 км) , Семеновская (1.9 км) , Строительство завершено. Продажа на вторичном рынке.

— Недвижимость Москвы. Итоги 2025 года
Прошлый год стал для рынка недвижимости одним из самых спокойных за последнее время.

— Старты продаж в Москве. Второе полугодие 2025 года
Во втором полугодии 2025 года «прорыва» в выводе на рынок новых проектов в столице не случилось, более того, продолжился тренд на их сокращение.

— Новостройки Москвы. Итоги первого полугодия -2025
По последним данным, в первом полугодии текущего года столичные девелоперы начали реализацию 17 проектов жилой застройки.
















