ЖК "Геометрия" (ЖК на ул. Душинская)
Площадь квартир:46.06 — 137.25 м2
Общее количество квартир: 190
Тип дома: монолитный
Готовность: Дома сданы
Виды предложений: Квартиры
С паркингом: Подземный, 231 м/место
Цена300-500 тыс. руб за м2
Адрес: Душинская ул, вл.16
Авиамоторная (1.1 км) ,
Римская (1.4 км) ,
Площадь Ильича (1.5 км) ,
Нижегородская (2.1 км) ,
Волгоградский проспект (2.6 км) ,
Крестьянская застава (2.6 км) ,
Пролетарская (2.8 км)
МЦД Москва-Товарная (1.0 км) ,
МЦД Калитники (1.2 км) ,
МЦК Андроновка (2.0 км)
Жилой комплекс «Геометрия» - новый проект бизнес-класса на юго-востоке Москвы, в районе Лефортово.
Транспорт и экология
Дорожная ситуация определяется выездами на ТТК и шоссе Энтузиастов, сетью наземного общественного транспорта и станцией метро Авиамоторная в 10-12 минутах пешего хода.
А вот экологическая обстановка не столь благополучна – промзоны, близость к загруженным магистралям и железной дороге оказывает свое влияние. Тем не менее, места для отдыха на свежем воздухе найти можно — в нескольких остановках располагаются два больших зеленых массива — Измайловский и Кусковский лесопарки.
Архитектура и недвижимость
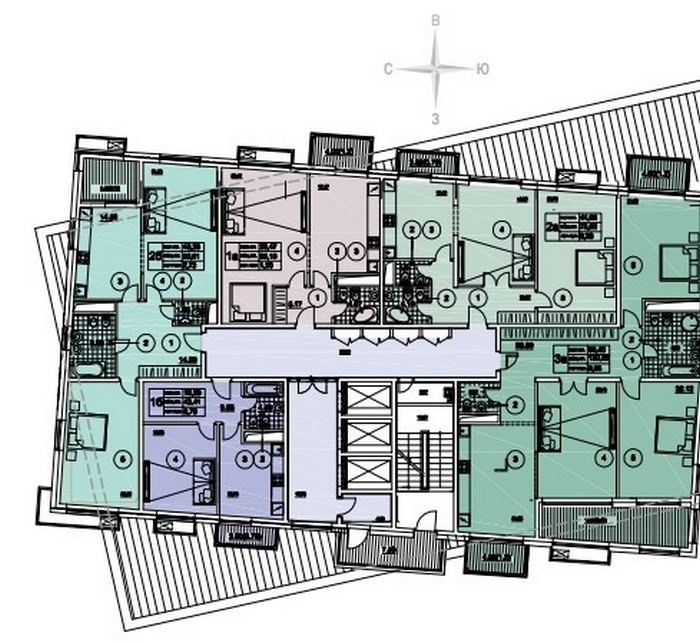
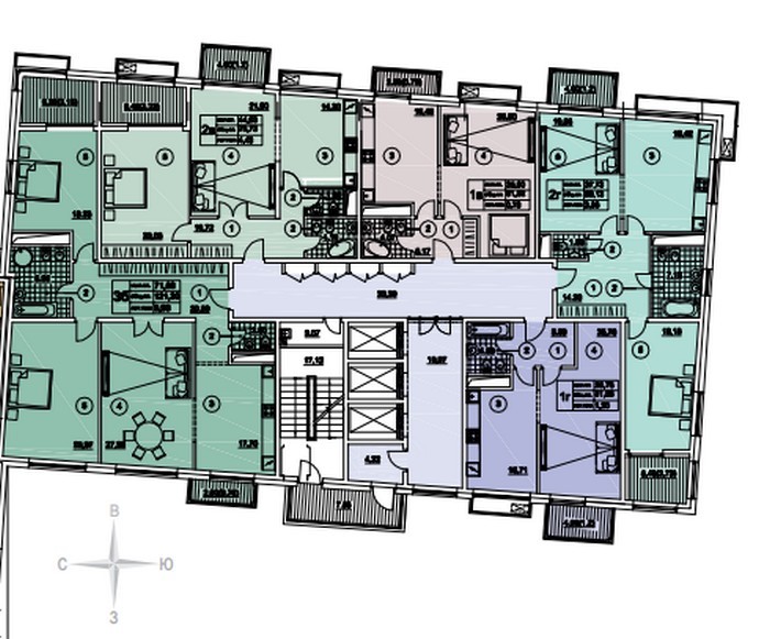
Новый комплекс на ул. Душинской — два монолитных здания высотой в 21 этаж, возводимых на общем стилобате. Название прекрасно передает особенности внешнего облика — оригинальная «игра» с объемами, необычное оформление оконных блоков. Дизайн холлов и входных групп выполняется по авторскому проекту.
Всего в ЖК предлагается 190 квартир, причем недвижимости «мелкой нарезки» здесь нет — площади начинаются от 45 кв. метров, а максимальные размеры жилья достигают 133 «квадратов».
Нет и «сдвига» в сторону какого-либо формата — количество одно- и двухкомнатных квартир одинаково, подобрать трехкомнатную тоже не составит труда. В каждом типе имеется выбор планировочных решений.
Реализуются квартиры без внутренней отделки, сколь-нибудь значимая перепланировка невозможна — устанавливаются капитальные межкомнатные перегородки.
Подробно ознакомиться с ценами и планировками можно на официальном сайте новостройки.
Инфраструктурой
В ЖК «Геометрия» предполагается развитие внутренней инфраструктуры — под нее отводятся нижние уровни зданий. Уже известно, что запланировано открытие дошкольного детского учреждения.
Удачно решается и вопрос с размещением автомобилей — за счет двухуровневого подземного паркинга на 231 машиноместо, въезд в него вынесен за пределы двора.
Территория комплекса огорожена, работает охрана. Придомовые пространства благоустраиваются — зеленые места для отдыха, спортивные и детские площадки, удобные пешеходные тротуары.
Застройщик: ФЛЭТ и Ко
Инфраструктура
Как добраться:
- метро Авиамоторная, 1.0 км.
- метро Римская, 1.5 км.: от ст. м. на общ. транспорте: Автобусы №№ 125, 340, 365, м8, Н4. Трамваи №№ 12, 46, 8. Троллейбус № 53. до ост. «Душинская улица» около 6 мин.;
Новости ЖК "Геометрия" (ЖК на ул. Душинская)
В районе Лефортово началось строительство ЖК «На Душинской улице»
В юго-восточном округе Москвы в районе Лефортово началось возведение многоквартирного жилого комплекса бизнес-класса «На Душинской улице».

Жилой комплекс "Лефортово парк"
Лефортово, ул. Красноказарменная, вл.14, Авиамоторная (0.6 км) , Бауманская (2.8 км) , Площадь Ильича (1.8 км)

Комплекс апартаментов "Золоторожский"
Лефортово, вл.8, Авиамоторная (1.9 км) , Бауманская (2.3 км) , Крестьянская застава (2.4 км)

Лефортово, ул. Красноказарменная, 14А, Авиамоторная (0.3 км) , Площадь Ильича (2 км) , Римская (1.9 км)

Жилой комплекс "Лефортово парк"
Лефортово, ул. Красноказарменная, вл.14, Авиамоторная (0.6 км) , Бауманская (2.8 км) , Площадь Ильича (1.8 км)

Комплекс апартаментов "Золоторожский"
Лефортово, вл.8, Авиамоторная (1.9 км) , Бауманская (2.3 км) , Крестьянская застава (2.4 км)

Лефортово, ул. Красноказарменная, 14А, Авиамоторная (0.3 км) , Площадь Ильича (2 км) , Римская (1.9 км)

— Недвижимость Москвы. Итоги 2025 года
Прошлый год стал для рынка недвижимости одним из самых спокойных за последнее время.

— Старты продаж в Москве. Второе полугодие 2025 года
Во втором полугодии 2025 года «прорыва» в выводе на рынок новых проектов в столице не случилось, более того, продолжился тренд на их сокращение.

— Новостройки Москвы. Итоги первого полугодия -2025
По последним данным, в первом полугодии текущего года столичные девелоперы начали реализацию 17 проектов жилой застройки.

— Рассрочка вместо ипотеки – решение проблем?
По данным Росреестра, в декабре прошлого года произошло практически полное восстановление уровня продаж на рынке столичных новостроек.

— Можно ли в России купить квартиру в лизинг
Программа льготной ипотеки помогла огромному количеству россиян приобрести собственное жилье. Однако данный инструмент доступен далеко не всем, а альтернатив на рынке практически нет. Одной из немногих является покупка квартиры в лизинг.

— Марьина Роща - самая дорогая недвижимость в СВАО
Марьина Роща — самый южный район СВАО. Его граница на востоке проходит по железнодорожным путям Рижского направления и по Проспекту Мира, на юге — по оси Сущевского вала, улиц Советской Армии, Достоевского и Перунова переулка, на западе – вдоль Тихвинской улицы, ТТК, железнодорожных путей Савеловского направления и Складочной улицы, на севере — по промзоне Огородный проезд.















Отзывы покупателей о новостройке ЖК "Геометрия" (ЖК на ул. Душинская)
Вика
Плюсы:
Дизайнеры и архитекторы комплекса просто умнички. Все лаконично и со вкусом. Пожалуй, это один из лучших проектов в Лефортово. Дворовая территория закрытого типа, под охраной. Очень удобное территориальное расположение. Рядом есть практически все, чего душе угодно. К тому же, с мужем работаем в этом районе, не нужно никуда долго ехать. При покупке действовала акция, поэтому недвижимость обошлась дешевле цены, на которую рассчитывали.
Гость
Плюсы:
В Лефортово есть все, из этого района можно вообще далеко никуда не ездить.
Минусы:
У меня нет отрицательных эмоций к этому дому.
Евгений
Плюсы:
Цена каждой квартиры, которая сейчас в продаже у застройщика, на сайте Желдорипотеки уже рассчитана со скидкой. Скидочная цена выделена красным. Чем больше и дороже квартира, тем больше получается скидка.
Минусы:
Как долго будут действительны эти скидки? Планируем воспользоваться ими, но не в ближайшее время, а нам нужен еще месяц для решения своих финансовых вопросов. Хотим продать квартиру в Питере и вложить деньги в квартиру в этом доме.