Лофт-апартаменты "Кадашевские палаты"
Площадь квартир:110 — 350 м2
Высота потолков:> 4,0
Общее количество квартир: 25
Общая площадь застройки: 5 500 кв.м.
Тип дома: монолитный
Готовность: Строительство завершено. Продажа на вторичном рынке.
Срок сдачи: 2015 г.
Виды предложений: Апартаменты, Лофты
С паркингом: Подземный
Адрес: Кадашевский 3-й пер, д.7/9 к.1
Третьяковская (0.2 км) ,
Новокузнецкая (0.4 км) ,
Полянка (0.6 км)
Жилой комплекс «Кадашевские палаты» представляет собой лофт-апартаменты в ЦАО Москвы. Новостройка расположена по адресу 3-й Кадашевский переулок, д. 9/7 и имеет очень богатую историю.
Всего в километре от Кремля, в районе Якиманка между двумя станциями метро, Третьяковская и Новокузнецкая, красуется этот элитный жилой комплекс. При реставрации особое внимание было уделено сохранению линий фасадов и других архитектурных особенностей.
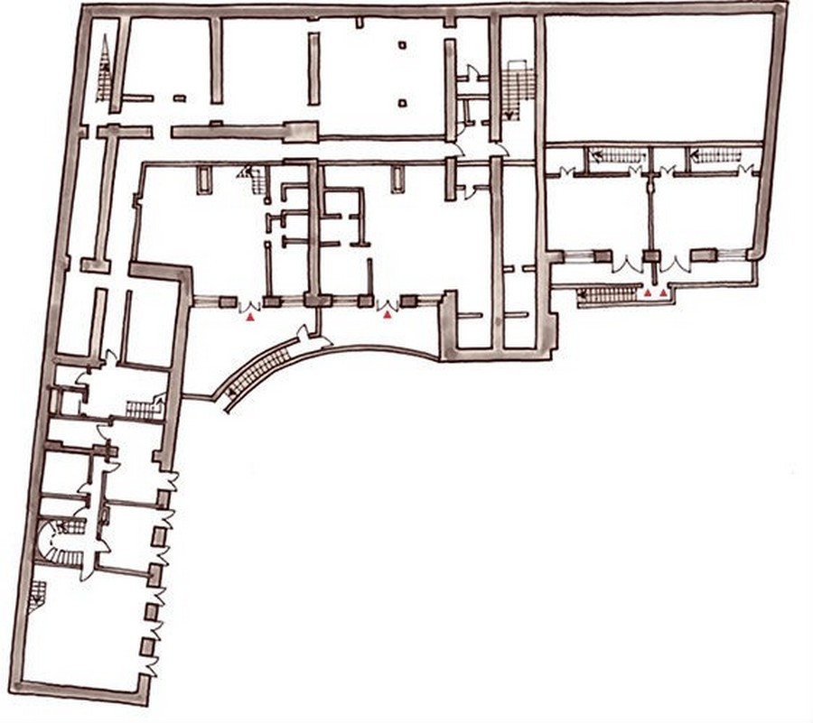
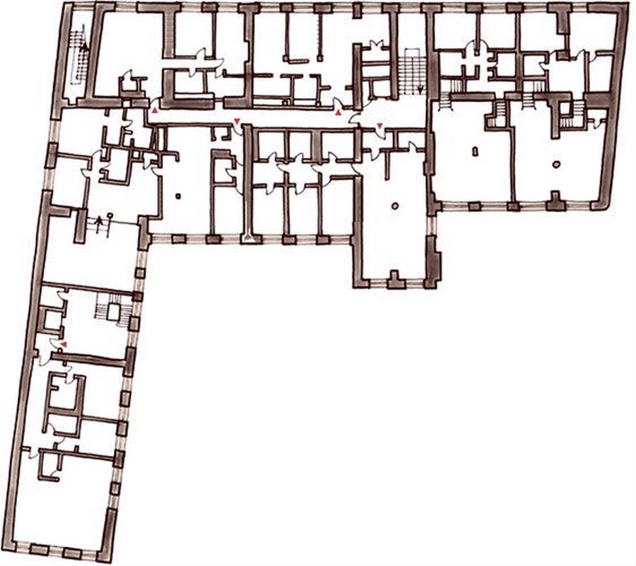
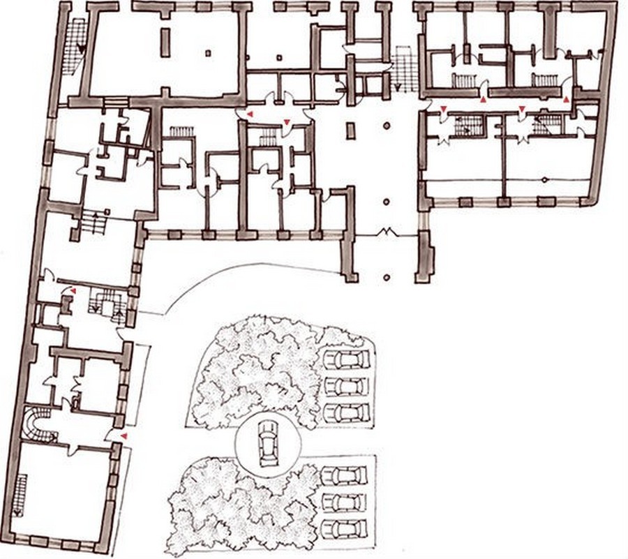
ЖК «Кадашевские палаты» включает 25 лофтов площадью от 110 до 350 кв. м. от одной до шести комнат. Часть апартаментов имеет два и три уровня, горизонтальные смещения и отдельный вход. Все апартаменты новостройки имеют свободные планировки.
Вся территория, 5500 кв. м., отделана классическими материалами, среди которых мореное дерево, кирпич и бронза. Фасад строения и внутренние стены обработаны пескоструйным способом очистки и экологически чистой пропиткой. В помещениях поставлена самая новая инженерия.
История жилого комплекса «Кадашевские палаты»
Здание Кадашеских палат известно с начала 19 века, после чудесного спасения в патриотическом пожаре против французских войск Наполеона 1812 года. Его назначение потом не раз менялось и последнее свой вид оно обрело благодаря известному архитектору Адольфу Эрихсону.
От первичного проекта здания остались уникальное строение помещений, мансарды, витражные французские окна и камины. А для комфорта в современных условиях предусмотрены многоуровневая подземная парковка, инженерная система «Умный дом», которая включает в себя приточно-вытяжную вентиляцию, центральное кондиционирование и систему пожаротушения.
Безопасность обеспечивается системой видеонаблюдения, охраной на въезде, системой доступа на территорию жилого комплекса, индивидуальной картой для управления лифтом, консьерж службой.
Таким образом, в Замоскворечье, среди тихих улочек старой Москвы расположился элитный жилой комплекс «Кадашеские палаты» категории loft с современными, надежными коммуникациями и уникальным историческим содержанием.
Застройщик: KR Properties
Инфраструктура
Как добраться:
- метро Третьяковская, 0.2 км.
- метро Третьяковская, 0.2 км.
Новости Лофт-апартаменты "Кадашевские палаты"
Список нестандартных опций и услуг в Московских новостройках
Новые проекты современных жилых комплексов дают возможность покупателям приобрести не только просторные квартиры индивидуальной планировки, но и предлагают различные дополнительные опции и услуги.
Юридические тонкости покупки лофтов
Лофты — это не просто новый формат на столичном рынке недвижимости. Это еще и новые юридические особенности оформления сделки, владения и распоряжения, во всех тонкостях которых до конца не разобрались ни профессионалы-юристы, ни девелоперы, ни чиновники, ни, тем более, покупатели.
Кадашевские палаты: выбираем мансарды
«Кадашевские палаты» - знаковый проект среди московских лофтов. В данный момент здесь реализовано 60% апартаментов. В экспозиции остались, в основном, мансарды - продукт для нашего рынка пока непривычный.

Комплекс апартаментов "Басманный, 5"
Басманный, вл. 13, Комсомольская (0.7 км) , Красные ворота (0.6 км)

ЖК "Казачья слобода" (Дипломат)
Замоскворечье, д. 6, Добрынинская (0.4 км) , Октябрьская (0.8 км) , Павелецкая (0.9 км)

— Недвижимость Москвы. Итоги 2025 года
Прошлый год стал для рынка недвижимости одним из самых спокойных за последнее время.

— Старты продаж в Москве. Второе полугодие 2025 года
Во втором полугодии 2025 года «прорыва» в выводе на рынок новых проектов в столице не случилось, более того, продолжился тренд на их сокращение.

— Новостройки Москвы. Итоги первого полугодия -2025
По последним данным, в первом полугодии текущего года столичные девелоперы начали реализацию 17 проектов жилой застройки.

— Рассрочка вместо ипотеки – решение проблем?
По данным Росреестра, в декабре прошлого года произошло практически полное восстановление уровня продаж на рынке столичных новостроек.

— Можно ли в России купить квартиру в лизинг
Программа льготной ипотеки помогла огромному количеству россиян приобрести собственное жилье. Однако данный инструмент доступен далеко не всем, а альтернатив на рынке практически нет. Одной из немногих является покупка квартиры в лизинг.

— Марьина Роща - самая дорогая недвижимость в СВАО
Марьина Роща — самый южный район СВАО. Его граница на востоке проходит по железнодорожным путям Рижского направления и по Проспекту Мира, на юге — по оси Сущевского вала, улиц Советской Армии, Достоевского и Перунова переулка, на западе – вдоль Тихвинской улицы, ТТК, железнодорожных путей Савеловского направления и Складочной улицы, на севере — по промзоне Огородный проезд.














Отзывы покупателей о новостройке Лофт-апартаменты "Кадашевские палаты"
Irina-Z
Плюсы:
“Кадашевские палаты” - уникальное место с богатой историей. Находится оно недалеко от Кремля, само здание построено еще в 19 веке. После реконструкции осталось уникальное строение помещений, мансарды, витражные французские окна и камины. Для удобства встроена система “умный дом”. Отделка из дерева, кирпича и бронзы обеспечивает отличный вид и уют. Мне нравится, что здесь себя чувствуешь защищенной. Лифты работают по картам, за комплексом ведется видеонаблюдение, работает консьерж.
Минусы:
Нет
Вера Павловна, хирург
Плюсы:
Свой отзыв оставляю для других людей. Уважаемые будущие соседи, приезжайте сюда, это отличное место и для молодых семей и для людей преклонного возраста. Сама выбирала жилье по нескольким принципам: мне хотелось, уюта, душевного спокойствия, природной чистоты и красоты и чувства безопасности. Кроме того, современные постройки в стиле хай-тек меня не интересуют, а вот лофт самое то. Кроме того, что комплекс находится в непосредственной близости с Кремлем, постройка имеет историческое значение. Здесь все пропитано историей, несмотря на современную отделку в классическом стиле. Использовались материалы: дерево, кованое железо и кирпич.
Минусы:
Шутите?