ЖК "Итальянский квартал"
Площадь квартир:106 м2
Тип дома: монолитно-кирпичный
Готовность: Строительство завершено. Продажа на вторичном рынке.
Виды предложений: Пентхаусы, Студии, Квартиры
С паркингом: Подземный, 170 м/мест
Адрес: Фадеева ул, д.4
Новослободская (0.5 км) ,
Маяковская (0.6 км) ,
Менделеевская (0.9 км)
МЦД Белорусская (1.2 км)
Элитный жилой комплекс «Итальянский квартал» находится в самом центре столицы - на улице Долгоруковской. В нескольких минутах ходьбы от него располагаются три станции метро: Белорусская, Маяковская и Новослободская.
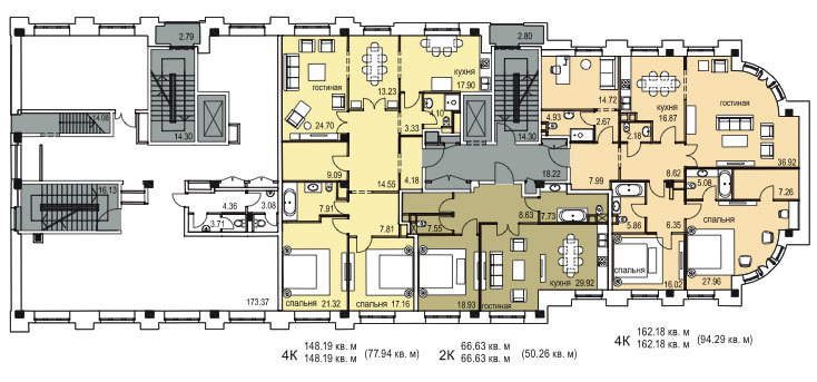
Жилой комплекс состоит семи особняков различной этажности (от 4 до 10) , отличающихся многообразием планировок расположенных в них квартир. В каждом из особняков есть и небольшие квартиры студии - от 45 кв. м, и роскошные двухуровневые пентхаусы, и классические квартиры, состоящие их 2-4 комнат. Каждый покупатель может подобраться для себя идеальное жилье.
Входные группы каждого здания в жилом комплексе обособлены и каждая имеет свое особое оформление.
Элитная новостройка является уникальным проектом, характеризующимся оригинальным архитектурным решением. Она отлично дополняет окружающий ландшафт и отличается изысканностью. Сам вид жилого комплекса наводит на мысль о размеренной респектабельной жизни.
Выбрав элитные квартиры в «Итальянском квартале», новоселы получают возможность живя в центре мегаполиса, ощущать комфорт загородной жизни. Здесь можно в полной мере наслаждаться спокойствием, которое дарит уютный, закрытый от столичного шума, квартал.
Инфраструктура
В жилом комплексе «Итальянский квартал» имеется подземный паркинг для транспортных средств жильцов на 170 машиномест, а также гостевые автостоянки.
Территория благоустроена. Выполнено ее озеленение с использованием элементов ландшафтного дизайна, высажены деревья и кустарники, разбиты газоны и клумбы. Для обустройства дорожек использована изысканная гранитная плитка, по всей территории жилого комплекса расставлены великолепные скульптуры, придающие особый шарм. Большой участок территории жилого комплекса «Итальянский квартал» отведен под детскую игровую площадку и зону отдыха с небольшими уютными скамейками.
Несомненным преимуществом нового жилого комплекса является хорошая транспортная доступность — удобный выезд на основные трассы столицы и близкое расположение станций метро.
К услугам новоселов вся обширная инфраструктура центра Москвы с обилием торговых центров, спортивных клубов, ресторанов, медицинских центров и детских учреждений.
Застройщик: ГУТА-Девелопмент
Инфраструктура
Как добраться:
- метро Маяковская, 0.6 км.
- метро Новослободская, 0.6 км.: от ст. м. на общ. транспорте: Автобусы №№ м10, т3, т47. до ост. «Долгоруковская улица» около 5 мин.;
Новости ЖК "Итальянский квартал"
Застройщики отмечают стабильный спрос на элитные новостройки
Несмотря на то, что экономический кризис коснулся и состоятельных граждан, а стоимость элитных новостроек стартует с 500-600 тыс. рублей за кв. метр, желающих приобрести эксклюзивное жилье от известных архитекторов и дизайнеров не так уж и мало.
Ситуация на столичном рынке недвижимости класса deluxe
Собственника элитного жилья можно назвать обладателем как минимум произведения искусства, так как за среднюю стоимость столичного пентхауса можно купить средних размеров вертолет, не одну породистую лошадь или картину модного художника.
Самые выгодные инвестиции в недвижимость - рынок аренды квартир в Москве
Инвестиции в недвижимость традиционно считаются самым надежным и прибыльным активом. Количество покупателей квартир в новостройках на стадии котлована неуклонно растет. После окончания строительства такие квартиры перепродаются по более выгодной цене или сдаются в аренду.

Старопименовский пер., д.10, стр.3
Тверской, д.10, стр.3, Маяковская (0.4 км) , Пушкинская (0.4 км) , Чеховская (0.5 км)

ЖК "Петровский парк на Верхней Масловке"
Аэропорт, д. 23 к. 2, д. 25, Белорусская (2.1 км) , Динамо (0.3 км) , Дмитровская (2.2 км)

— Новостройки Москвы. Итоги первого полугодия -2025
По последним данным, в первом полугодии текущего года столичные девелоперы начали реализацию 17 проектов жилой застройки.

— Рассрочка вместо ипотеки – решение проблем?
По данным Росреестра, в декабре прошлого года произошло практически полное восстановление уровня продаж на рынке столичных новостроек.

— Недвижимость Москвы – 2024. Итоги года
Прошедший год выдался очень насыщенным и неоднозначным для рынка столичной недвижимости. Начало января – пора подведения итогов и обозначения возможных будущих трендов рынка.

— Можно ли в России купить квартиру в лизинг
Программа льготной ипотеки помогла огромному количеству россиян приобрести собственное жилье. Однако данный инструмент доступен далеко не всем, а альтернатив на рынке практически нет. Одной из немногих является покупка квартиры в лизинг.

— Как купить квартиру в доме по программе реновации
Дома, построенные в рамках реновации, интересуют не только «переселенцев», но и потенциальных покупателей. Ведь они часто возводятся в районах с хорошей транспортной доступностью и сложившейся инфраструктурой. Как купить квартиру в доме по реновации?

— Марьина Роща - самая дорогая недвижимость в СВАО
Марьина Роща — самый южный район СВАО. Его граница на востоке проходит по железнодорожным путям Рижского направления и по Проспекту Мира, на юге — по оси Сущевского вала, улиц Советской Армии, Достоевского и Перунова переулка, на западе – вдоль Тихвинской улицы, ТТК, железнодорожных путей Савеловского направления и Складочной улицы, на севере — по промзоне Огородный проезд.














Отзывы покупателей о новостройке ЖК "Итальянский квартал"
Константинов П.
Плюсы:
В связи с переменами в жизни, возникла необходимость проживания в Тверском районе. Нужно было комфортное и статусное жилье. Принял решение о покупке жилья в Итальянском квартале. Архитектура дома очень красивая, внутри тоже все на высшем уровне. На первом этаже сформирована своя внутренняя инфраструктура. Паркинг под домом. В шаговой доступности куча всего, от театров до бутиков. Придомовая территория красивая, вызывает восхищение. Минусы, конечно, тоже есть. В основном шум, загазованность и жесткие пробки в часы пик.
Минусы:
шум, загазованность и жесткие пробки в часы пик.
Наталья
Плюсы:
Увидев в интернете фотографии жилого комплекса “Итальянский квартал” я просто влюбилась. Мы с мужем планировали купить квартиру в более простом новострое, но почитав об этом комплексе уговорила его на покупку именно здесь. Такой архитектуры я еще не видела - настоящая Италия. Кроме того здесь много зелени, прекрасно оформленные дворики. Месторасположение очень удобное - рядом все необходимые объекты инфраструктуры (магазины, бутики, рестораны), а детям недалеко до школы, мужу до работы. Очень важный момент - постоянная охрана.
Минусы:
К минусам могу отнести цену и шум города, от которого в принципе никуда не денешься в столице.
Ильдар
Плюсы:
Уникальная архитектура, выполненная в итальянском стиле. Большие террасы. Окна выходят на три стороны света. Круглосуточная охрана. Комплекс в престижном районе Москвы. Рядом проходит Садовое кольцо.
Минусы:
Сроки сдачи переносились. Сложная транспортная доступность - частые заторы на ближних магистралях. Комплекс находится в шумном районе с неблагоприятной экологией.