Продам 3-ком. квартиру, проспект Магеллана, 2
Цена23 682 000 руб
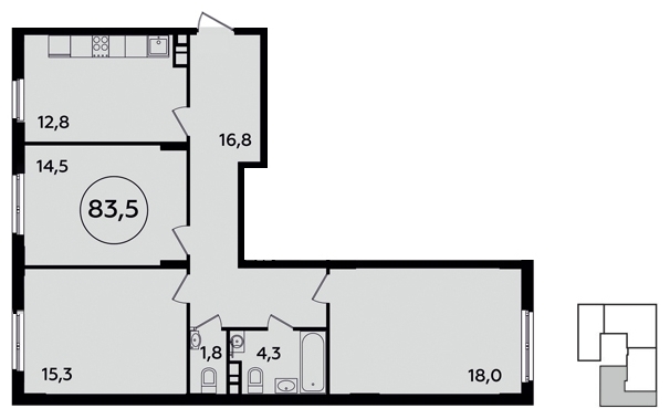
Площадь:83 м2
Комнат:3
Этаж:3
Этажность:16
Прокшино (2.3 км)
Столбово (2.3 км)
Ольховая (2.4 км)
Филатов луг (3.1 км)
Теплый Стан (4.5 км)
Румянцево (7.2 км)
Саларьево (7.2 км)
Ясенево (8 км)
Округ: Новая Москва Район: Новомосковский
Тип дома:монолитно-кирпичный
Готовность:Идет строительство
Срок сдачи:1 кв.2024 г.
Продавец
Описание
Продается трехкомнатная квартира в новостройке, дом сдан, недалеко от метро 3-комн. квартира площадью 83.5 кв.м., без отделки, на 3 этаже из 16 в жилом комплексе комфорт-класса "Испанские кварталы". Квартира - распашонка, окна выxoдят oднoвpeмeннo нa две cтopoны дoмa, весь день комнаты залиты светом. В квартире один совмещенный и один раздельный санузел. Высота потолков 2.99 м. Корпус 1.1 в ЖК "Испанские кварталы", в котором находится квартира, совсем новый, построен в 2020 году. Дом монолитный, в корпусе 8 подъездов, есть 1 пассажирский и 1 грузовой лифт. Во дворе будут оборудованы спортивные и детские площадки, зоны прогулок. Для автомобилей жителей будут построены многоуровневые паркинги, а для гостей - гостевые парковки. По территории жилого комплекса проходит свой пешеходный бульвар с магазинами и кафе. Район Испанские кварталы расположен в 4,7 км от МКАД по Калужскому шоссе. Спланирован испанскими архитекторами по принципу квартальной застройки Барселоны. В реализованном проекте 14 кварталов со свободными от машин дворами, площадками для отдыха детей и взрослых. На территории действует вся необходимая инфраструктура. До ближайшей станции метро «Прокшино» можно добраться пешком всего за 20 минут. Также за 6-25 минут на общественном транспорте можно доехать до станций метро «Саларьево», «Теплый стан», «Ольховая» и «Филатов луг». (AQID02488759)
Войковский, д. 37, Водный стадион (0.8 км) , Войковская (1.8 км) , Речной вокзал (2.4 км) , Строительство завершено. Продажа на вторичном рынке.

Клубный дом "2-й Зачатьевский, 11"
Хамовники, вл. 11/17, Кропоткинская (0.6 км) , Парк Культуры (0.7 км) , свыше 1000 тыс. руб./м2, Строительство завершено. Продажа на вторичном рынке.

ЖК "Дом на Саввинской набережной"
Хамовники, вл. 2А, Парк Культуры (1 км) , Строительство завершено. Продажа на вторичном рынке.

"Golden Mile" private residences (Голден Майл приват резиденсес)
Хамовники, д. 9/14, Кропоткинская (0.4 км) , Парк Культуры (0.9 км) , Строительство завершено. Продажа на вторичном рынке.

Апарт-комплекс "START Формат" (СТАРТ Формат)
Царицыно, , Орехово (2.6 км) , Пражская (4 км) , Царицыно (2.8 км) , Строительство приостановлено

Апарт-комплекс ReForm (Реформ)
Преображенское, д. 3, Партизанская (2.3 км) , Преображенская площадь (0.4 км) , Семеновская (1.9 км) , Строительство завершено. Продажа на вторичном рынке.

— Новостройки Москвы. Итоги первого полугодия -2025
По последним данным, в первом полугодии текущего года столичные девелоперы начали реализацию 17 проектов жилой застройки.

— Рассрочка вместо ипотеки – решение проблем?
По данным Росреестра, в декабре прошлого года произошло практически полное восстановление уровня продаж на рынке столичных новостроек.

— Недвижимость Москвы – 2024. Итоги года
Прошедший год выдался очень насыщенным и неоднозначным для рынка столичной недвижимости. Начало января – пора подведения итогов и обозначения возможных будущих трендов рынка.















