ЖК "Искры радости"
Площадь квартир:50.5 — 132.69 м2
Высота потолков:от 3,2
Общее количество квартир: 208
Тип дома: монолитный
Готовность: Строительство завершено. Продажа на вторичном рынке.
Виды предложений: Квартиры
С паркингом: Подземный, 366 м/мест
Адрес: Искры ул, д. 3
Бабушкинская (0.8 км) ,
Свиблово (1.2 км) ,
Ботанический сад (2.6 км) ,
Медведково (2.8 км)
Новостройка "Искры радости" – это жилой комплекс, включающий в себя две 18-этажные секции, составляющие единый архитектурный ансамбль. В основе зданий – монолитный фундамент, несущие конструкции выполнены из железобетона. Внешние стены оформлены вентилируемым фасадом.
Сообщение между этажами обеспечивается с помощью скоростных лифтов SIGMA. Здание оснащено системами приточно-вытяжной вентиляции, пожаротушения и дымоудаления, а также имеет собственный тепловой пункт.
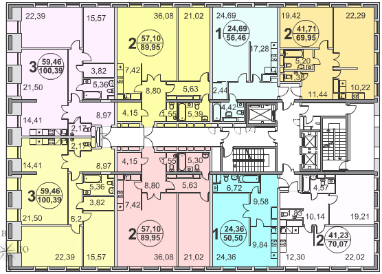
Жилой фонд составляют 208 квартир бизнес-класса площадью 50,5-132,69 кв.м. Планировка – свободная. В многокомнатных апартаментах монтируются два санузла, организовываются гардеробные комнаты. Существует возможность блокирования квартир в горизонтальной плоскости. Проектом предусмотрена установка в помещениях двухкамерных энергосберегающих стеклопакетов, щитка для механизации отделочных работ, металлических входных дверей. Высота потолков достигает 3,2 м.
Первый этаж башни А жилого комплекса занимает физкультурно-оздоровительный центр площадью 630 кв.м. В башне Б расположены офисы административных учреждений. Они сдаются под отделку и имеют отдельные входы.
Жилой комплекс обеспечен двухуровневым подземным паркингом на 366 машиномест, который дополнительно оснащается парковочной системой Klaus, постами автомойки, стоянками для инвалидов. Подъезд к парковке осуществляется по двупутной рампе.
Застройщик: Промингрупп
Документация:
Инфраструктура
Как добраться:
- метро Бабушкинская, 1.0 км.: от ст. м. на общ. транспорте: Трамвай № 17. до ост. «Печорская улица» около 6 мин.;
- метро Свиблово, 1.3 км.: от ст. м. на общ. транспорте: Автобус № 176. до ост. «Радужная улица, 9» около 15 мин.;
Новости ЖК "Искры радости"
Столица всегда находилась на особом положении. Городские власти тщательно следили, чтобы в Москве не было незавершенных строек и обманутых дольщиков.
Бабушкинский — один из самых популярных районов СВАО, по рейтингам, касающихся комфортности проживания, его опережают лишь Останкинский и Марьина роща. 8 лет назад район даже признали самым благоустроенным во всей Москве.
ЖК «Искры Радости» и «Мос-Анжелес» отмечены знаком качества
В престижной премии в области девелопмента Urban Awards 2013 в этом году приняли участие два жилых комплекса московской компании ООО «ГК Промингрупп» - «Искры Радости» и «Мос-Анжелес» в номинации «Лучшие строящиеся жилые комплексы бизнес-класса».

Стартовая площадка Ленская ул., вл. 8, корп. 1
Бабушкинский, Ленская ул., вл. 8, корп. 1, Бабушкинская (0.45 км) , Ботанический сад (2.9 км) , Медведково (2.2 км)

Стартовая площадка Летчика Бабушкина ул., вл. 29, корп. 5
Бабушкинский, Летчика Бабушкина ул., вл. 29, корп. 5, Бабушкинская (0.7 км)

ЖК "Windstone Blues"(Виндстоун Блюз)
Северное Медведково, вл. 22Б, Бабушкинская (2.2 км) , Медведково (0.9 км) , Челобитьево (1.6 км)

— Новостройки Москвы. Итоги первого полугодия -2025
По последним данным, в первом полугодии текущего года столичные девелоперы начали реализацию 17 проектов жилой застройки.

— Рассрочка вместо ипотеки – решение проблем?
По данным Росреестра, в декабре прошлого года произошло практически полное восстановление уровня продаж на рынке столичных новостроек.

— Недвижимость Москвы – 2024. Итоги года
Прошедший год выдался очень насыщенным и неоднозначным для рынка столичной недвижимости. Начало января – пора подведения итогов и обозначения возможных будущих трендов рынка.

— Можно ли в России купить квартиру в лизинг
Программа льготной ипотеки помогла огромному количеству россиян приобрести собственное жилье. Однако данный инструмент доступен далеко не всем, а альтернатив на рынке практически нет. Одной из немногих является покупка квартиры в лизинг.

— Как купить квартиру в доме по программе реновации
Дома, построенные в рамках реновации, интересуют не только «переселенцев», но и потенциальных покупателей. Ведь они часто возводятся в районах с хорошей транспортной доступностью и сложившейся инфраструктурой. Как купить квартиру в доме по реновации?

— Марьина Роща - самая дорогая недвижимость в СВАО
Марьина Роща — самый южный район СВАО. Его граница на востоке проходит по железнодорожным путям Рижского направления и по Проспекту Мира, на юге — по оси Сущевского вала, улиц Советской Армии, Достоевского и Перунова переулка, на западе – вдоль Тихвинской улицы, ТТК, железнодорожных путей Савеловского направления и Складочной улицы, на севере — по промзоне Огородный проезд.














Отзывы покупателей о новостройке ЖК "Искры радости"
Иван
Плюсы:
Перенесены сроки сдачи в эксплуатацию. Дома построены, осталось выполнить отделку. Вместительный подземный паркинг. Недалеко от комплекса находится Национальный парк "Лосиный остров". Высота потолков от 3 м и более. Свободные планировки квартир. Рядом супермаркет "Пятерочка".
Минусы:
Долгострой. Нет балконов. Уплотненная застройка. Комплекс расположен в 600 м от железной дороги.
Ира С.
Плюсы:
Проект очень интересный и комфортабельный на мой взгляд- большие окна , высокие потолки ( 3440мм от плиты до плиты), подземный паркинг с лифтами до квартир. Недалеко от комплекса находится Национальный парк "Лосиный остров".
Минусы:
Минусов не много. Разве что отсутствие балконов и в 600 м от Жк проходит железная дорога.
Петя и Аня
Плюсы:
Большое спасибо Группе Компания «Промингрупп» за нашу первую совместную квартиру! Выбрали их за очень внимательное отношение к клиентам и за желание помочь подобрать именно то, что нужно. Сам ЖК «Искры радости» нравится всем начиная от названия)) и заканчивая очень красивой и светлой квартирой с высокими потолками. Спасибо еще раз.
Минусы:
Описали все недостатки и недочеты выше и довольно полно.