ЖК "Барклая, 7"
Площадь квартир:53.6 — 119.2 м2
Общее количество квартир: 45
Тип дома: монолитный
Готовность: Строительство завершено. Продажа на вторичном рынке.
Виды предложений: Квартиры
С паркингом: Подземный и наземный
Адрес: Барклая ул., д. 7, корп. 12
Багратионовская (0.4 км) ,
Парк Победы (0.8 км) ,
Филевский парк (1.1 км) ,
Фили (1.1 км) ,
Минская (1.8 км) ,
Кутузовская (2.1 км) ,
Пионерская (2.2 км) ,
Славянский бульвар (2.3 км) ,
Шелепиха (2.3 км) ,
Студенческая (2.9 км)
МЦД Фили (1.1 км) ,
МЦК Кутузовская (2.0 км) ,
МЦД Славянский бульвар (2.0 км)
Жилой комплекс «Барклая, 7» построен на западе Москвы, в районе Филевский парк. Выезд на Кутузовский проспект и две станции метро в шаговой доступности — Багратионовская и Парк Победы, обеспечивают хорошую транспортную доступность.
Неподалеку, менее чем в километре начинается огромный зеленый массив Филевского парка, обеспечивая жителям редкий в мегаполисе чистый воздух, красивые виды из окон и прекрасное место для отдыха и прогулок круглый год.
Новый комплекс — односекционный монолитный дом бизнес-класса высотой в 10 этажей, расположившийся на участке в 0,26 гектара.
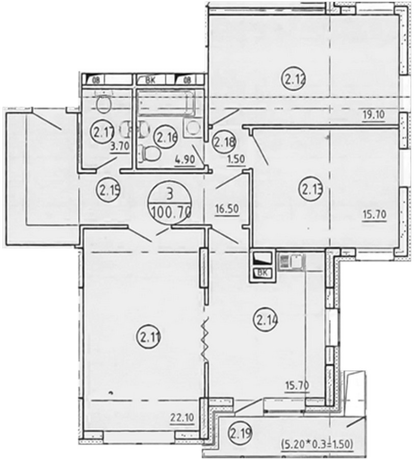
Квартиры в нем предлагаются от одно- до четырехкомнатных, площади варьируются от 53 до 119 кв. метров — просторные коридоры и кухни, большие застекленные лоджии, удобные, продуманные планировки. Сдаются квартиры в ЖК « На улице Барклая, вл.7» с черновой отделкой.
В нижнем этаже здания имеются коммерческие помещения — проектом предусмотрено развитие внутренней инфраструктуры.
Под автомобили оборудовано два паркинга — подземный, на 75 машиномест и наземный, гостевой, на 13 автомобилей. Придомовая территория озеленяется и обустраивается для отдыха жителей.
Инфраструктура
Как добраться:
- метро Багратионовская, 0.5 км.
- метро Парк Победы, 0.9 км.: от ст. м. на общ. транспорте: Автобусы №№ 116, м2, т39. до ост. «Багратионовский проезд» около 9 мин.;

Филевский парк, ул. Заречная, к. 4а и 4б, Багратионовская (1.2 км) , Кутузовская (2.2 км) , Парк Победы (2 км)

МФК "Match Point" (Матч Пойнт)
Филевский парк, д. 13, Багратионовская (0.9 км) , Кутузовская (2.3 км) , Парк Победы (0.9 км)

Жилой комплекс "Западный порт"
Филевский парк, вл.2/1, Багратионовская (1.5 км) , Киевская (5.8 км) , Кутузовская (1.4 км)

Многофункциональный комплекс "Сильвер Плаза"
Филевский парк, вл.25, Багратионовская (1 км) , Кутузовская (2.6 км) , Парк Победы (1.2 км)

Филевский парк, ул. Заречная, к. 4а и 4б, Багратионовская (1.2 км) , Кутузовская (2.2 км) , Парк Победы (2 км)

МФК "Match Point" (Матч Пойнт)
Филевский парк, д. 13, Багратионовская (0.9 км) , Кутузовская (2.3 км) , Парк Победы (0.9 км)

Жилой комплекс "Западный порт"
Филевский парк, вл.2/1, Багратионовская (1.5 км) , Киевская (5.8 км) , Кутузовская (1.4 км)

Многофункциональный комплекс "Сильвер Плаза"
Филевский парк, вл.25, Багратионовская (1 км) , Кутузовская (2.6 км) , Парк Победы (1.2 км)

— Новостройки Москвы. Итоги первого полугодия -2025
По последним данным, в первом полугодии текущего года столичные девелоперы начали реализацию 17 проектов жилой застройки.

— Рассрочка вместо ипотеки – решение проблем?
По данным Росреестра, в декабре прошлого года произошло практически полное восстановление уровня продаж на рынке столичных новостроек.

— Недвижимость Москвы – 2024. Итоги года
Прошедший год выдался очень насыщенным и неоднозначным для рынка столичной недвижимости. Начало января – пора подведения итогов и обозначения возможных будущих трендов рынка.

— Можно ли в России купить квартиру в лизинг
Программа льготной ипотеки помогла огромному количеству россиян приобрести собственное жилье. Однако данный инструмент доступен далеко не всем, а альтернатив на рынке практически нет. Одной из немногих является покупка квартиры в лизинг.

— Как купить квартиру в доме по программе реновации
Дома, построенные в рамках реновации, интересуют не только «переселенцев», но и потенциальных покупателей. Ведь они часто возводятся в районах с хорошей транспортной доступностью и сложившейся инфраструктурой. Как купить квартиру в доме по реновации?

— Марьина Роща - самая дорогая недвижимость в СВАО
Марьина Роща — самый южный район СВАО. Его граница на востоке проходит по железнодорожным путям Рижского направления и по Проспекту Мира, на юге — по оси Сущевского вала, улиц Советской Армии, Достоевского и Перунова переулка, на западе – вдоль Тихвинской улицы, ТТК, железнодорожных путей Савеловского направления и Складочной улицы, на севере — по промзоне Огородный проезд.





Отзывы покупателей о новостройке ЖК "Барклая, 7"
Тимофей
Плюсы:
Отличное расположение в престижном районе с развитой инфраструктурой. Очень удивил размер однокомнатных квартир. Реально очень большие. Дом добротный, хорошая звуко и теплоизоляция. Живем вдвоем с женой и маленьким сыном. Хотели отдать в ближайший садик, но мест не было. К счастью, роль няни у нас выполняет бабушка)) Что касается покупки, то все прошло гладко, проблем не было ни с переводом средств, ни с оформлением бумаг.
Минусы:
Места в садике забиты, плохой вид из окон на нижних этажах.
Олег
Плюсы:
Мы живем на “Барклая, 7” со своей дружной семьей. Папа, мама и две сестры. Въехали относительно недавно - 5 месяцев назад в четырехкомнатную квартиру. Дом монолитный, прочный и теплый, комнаты в квартире большие и просторные. Мне нравятся коридоры, они словно дополнительные комнаты, мама в восторге от кухни, где теперь она проводит время часами. Дом наш всего в 10 этажей, мы живем на 4-ом. Вид из окна не самый лучший, в этом случае повезло соседям с верхних этажей, которые могут любоваться Филевским парком или рекой.
Минусы:
Минус - еще не все продумали и доделали, есть объекты в стадии строительства еще.
Костя
Плюсы:
Большой паркинг. В пешей доступности станция метро. Надежный застройщик. Удобные планировки квартир.
Минусы:
"Прекрасный" вид на окна соседних домов на растоянии 10 м. Нет рассрочки или ипотеки.