Новые кварталы "Москва А101"
Квартиры : | 1 комн.кв-ры от 5.35 млн. руб , 2 комн.кв-ры от 7.7 млн. руб , 3 комн.кв-ры от 9.9 млн. руб Интервал стоимости предложения включает в себя минимальную цену в данном жилом комплексе. В случае заинтересованности необходимо уточнение конечной стоимости у компании, реализующей данное предложение. |
|---|
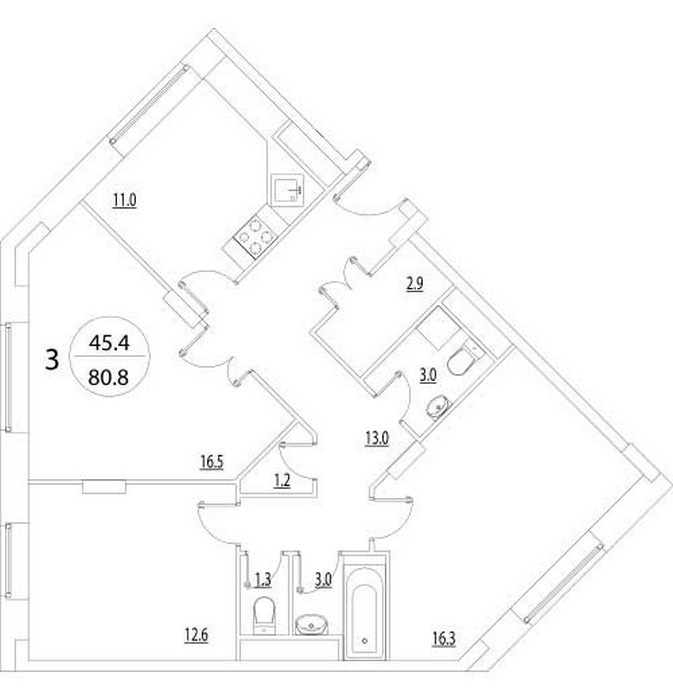
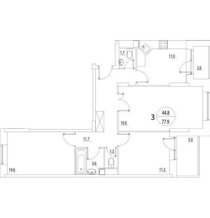
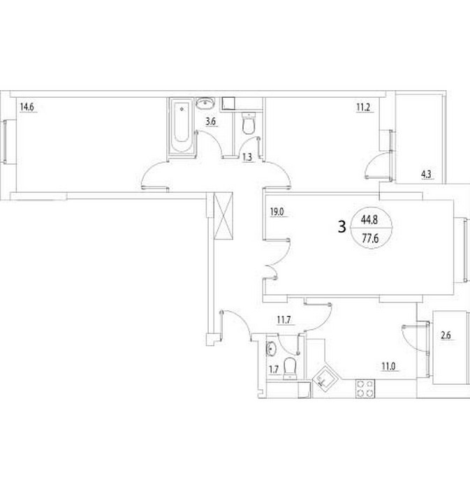
Площадь квартир:37.3 — 117 м2
Высота потолков:2,85-3,0
Общее количество квартир: 11200
Общая площадь застройки: 100 га
Тип дома: монолитно-кирпичный
Готовность: Дома сданы
Срок сдачи: 1 кв.2020 г.
Виды предложений: Квартиры
С паркингом: Подземные и наземные
Жилой район «Новые кварталы Москва А101» расположен в первом поясе удаленности от МКАД на территории Новой Москвы.
Удобное транспортное сообщение, развитая инфраструктура и множество видов планировочных решений позволяют назвать покупку квартиры здесь весьма выгодной инвестицией.
В состав нового жилого комплекса входит:
- 47 однокомнатных квартир;
- 31 двухкомнатная квартира;
- 11 трехкомнатных квартир;
- 1 четырехкомнатная квартира.
Минимальная площадь однокомнатной квартиры равна 37,3 кв метра, максимальная – 42,4 . Площадь самой скромной двухкомнатной квартиры составляет 64,6 кв. метров. Минимальная площадь трехкомнатных квартир равна 71 кв. метра, максимальная – 117 кв.м.
Купить квартиру в новостройке «Новые кварталы Москва А101»
В состав нового жилого района входят 17 многоэтажных жилых зданий, квартиры в которых отличаются продуманными планировочными решениями.
Проживание в новостройке «Новые Кварталы Москва А101» характеризуется массой преимуществ. Ярким примером может послужить отличная транспортная доступность.
Новый жилой комплекс расположен в отдалении от трассы, благодаря чему здесь сложилась благоприятная экологическая обстановка. На территории предусмотрено множество зеленых насаждений, комплекс граничит с лесным массивом и небольшим водоемом.
Благодаря рельефу местности, во время строительства удалось реализовать уникальный проект, согласно которому пешеходные и автомобильные пути максимально разграничены для обеспечения безопасности и комфорта пешеходам.
Инфраструктура
В новом квартале оборудованы уютные внутренние дворики, где можно отдыхать в компании друзей или кругу семьи. Здесь установлены детские игровые городки и спортивные площадки. В скором времени на территории жилого комплекса будут построены:
- детский сад
- многоуровневый паркинг
- школа
- поликлиника
В любом случае, местные жители смогут пользоваться инфраструктурой расположенного неподалеку поселка Коммунарка, где имеется кинотеатр, магазины, детские сады, школа.
Застройщик: ГК «А101»
Инфраструктура
Как добраться:
- метро Бунинская аллея, 3.5 км.: от ст. м. на общ. транспорте: Маршрутка № 1170. до ост. «СНТ Солнечный» около 23 мин.;
- метро Улица Горчакова, 3.8 км.: от ст. м. на общ. транспорте: Маршрутка № 1170. до ост. «Липовый парк» около 31 мин.;
Новости Новые кварталы "Москва А101"
Старт продаж в новом корпусе ЖК «Москва А101»
Девелоперская компания А101 информирует о начале продаж в доме №21 жилого корпуса «Москва А101», строящегося в Новомосковском административном округе.
Ипотечные каникулы в Новой Москве
Девелоперская компания «А101» и банк «Дельта Кредит» объявляют о старте новой программы «Ипотечные каникулы».
Группа компаний А101 открывает в Коммунарке новый детский сад на 325 мест
В поселке Коммунарка Новой Москвы группа компаний А101 открывает новый детский сад на 325 мест в строящемся жилом комплексе.

Новомосковский, Поселение Внуковское, ул. Летчика Новожилова, Боровское шоссе (4.7 км) , Рассказовка (2.3 км) , Новопеределкино (3.1 км)

Новомосковский, г.Коммунарка, с/о Сосенское, Теплый Стан (4.5 км) , Ясенево (8 км) , Румянцево (7.2 км)

Новомосковский, пос. Коммунарка, Ленинский р-н, Ясенево (4.7 км) , Ольховая (2.5 км) , Прокшино (3.2 км)

ЖК "Garden Park Эдальго" (Гарден Парк Эдальго)
Новомосковский, пос. Коммунарка, Ольховая (2.1 км) , Прокшино (2.9 км) , Столбово (2.9 км)

— Недвижимость Москвы. Итоги 2025 года
Прошлый год стал для рынка недвижимости одним из самых спокойных за последнее время.

— Старты продаж в Москве. Второе полугодие 2025 года
Во втором полугодии 2025 года «прорыва» в выводе на рынок новых проектов в столице не случилось, более того, продолжился тренд на их сокращение.

— Новостройки Москвы. Итоги первого полугодия -2025
По последним данным, в первом полугодии текущего года столичные девелоперы начали реализацию 17 проектов жилой застройки.

— Рассрочка вместо ипотеки – решение проблем?
По данным Росреестра, в декабре прошлого года произошло практически полное восстановление уровня продаж на рынке столичных новостроек.

— Можно ли в России купить квартиру в лизинг
Программа льготной ипотеки помогла огромному количеству россиян приобрести собственное жилье. Однако данный инструмент доступен далеко не всем, а альтернатив на рынке практически нет. Одной из немногих является покупка квартиры в лизинг.

— Марьина Роща - самая дорогая недвижимость в СВАО
Марьина Роща — самый южный район СВАО. Его граница на востоке проходит по железнодорожным путям Рижского направления и по Проспекту Мира, на юге — по оси Сущевского вала, улиц Советской Армии, Достоевского и Перунова переулка, на западе – вдоль Тихвинской улицы, ТТК, железнодорожных путей Савеловского направления и Складочной улицы, на севере — по промзоне Огородный проезд.




























Отзывы покупателей о новостройке Новые кварталы "Москва А101"
Кирилл
Плюсы:
Да что особо рассказать? Микрорайон новый, современный, «убить» еще не успели. Дома с красивой архитектурой и европейскими планировками. Конкретно в нашей квартире большой застекленный балкон, просторная гостиная и кухня. Потолки высокие, самое то для дизайнерского ремонта. Двор с ландшафтным дизайном. Выполнено комплексное озеленение и установлены малые архитектурные формы. Есть паркинг, школа, детсад, а также магазины различной направленности на первом этаже. Прописка московская, до МКАДа – 10 минут.
Минусы:
Нет
Саша
Плюсы:
Во всех квартирах будет проведено панорамное остекление лоджий. Есть ипотека и рассрочка. Квартиры со свободными планировками. Некоторые из квартир можно приобрести с готовой дизайнерской отделкой. В комплексе запроектированы школы, детсады, поликлиника и торгово-развлекательный центр с фитнес-клубом.
Минусы:
Сдают дома без пуска пассажирского лифта. Работает только грузовой. Через год - полтора запускают пассажирский. В комплексе много лиц не славян национальности, славян меньшинство. Все объекты инфраструктуры отдалены от новостройки примерно на 1,5-2 км.
m_e
Плюсы:
нет
Минусы:
Дамы и господа, НЕ ВЗДУМАЙТЕ отдать свои деньги а101 Девелопмент. 100 раз подумайте. Поведение застройщика после того, как вы отдадите свои деньги будет хамское, на протяжении всего срока строительства вы не получите никакой достоверной информации, а в ряде случаев вам просто будут откровенно хамить. Сроки строительства не соблюдают, архитектурные планы не соблюдаются (в Вяземском за 4 года строительства поменяли все от конструктива, до фонарей освещения). Не поленитесь зайдите на форумы реальных дольщиков ЖК Кронбург и ЖК Вяземское и почитайте с чем столкнулись люди: -просрочка по сдаче обоих объектов от 1,5 лет; - по Кронбургу не выполнены условия Договора долевого строительства по газификации объекта (газа нет и когда будет застройщик не говорит), как следствие дома не пригодны для проживания (не отапливаются), люди отказываются такое принимать, однако застройщик в одностороннем порядке подписывает акты приема-передачи и ВЫПЕРАЕТ дольщиков в «собственники». При этом собственники такие не могут подключить газ даже самостоятельно, так как нет разрешения на газ. Люди зимовали в морозы без отопления, пытались греться электричеством. Именно пытались, так как мощность электроэнергии на каждый дом- 7,5 кВт не хватает на отопление от электроэнергии. Застройщику насрать, суды не становятся на сторону дольщиков (не в чем не хотят разбираться). Размер неустойки снижается порядка 10 раз. - Аналогичный бардак с ЖК Вяземское. Просрочка по сдаче уже 1 год и 4 месяца. Застройщик в наглой форме каждый месяц говорит сроки сдачи в следующем месяце (а в последнее время уже стал апеллировать кварталами: в четвертом квартале 2015 говорили а сдаче в 1 квартале 2016). Сейчас (1 квартал 2016) говорят новые сказки о сроках сдачи во 2 квартале 2016. И этот бардак не заканчивается. Все письма в правительство москвы либо игнорируются, либо даются типовые отписки с орфографическим ошибками и фразами : «со слов застройщика срок сдачи планируется на __ квартал 201__». То есть люди даже не удосуживаются свой зад со стула оторвать и навести порядок на территории Москвы.