МФК "Гранд Лефорт"
Площадь квартир:20 — 140 м2
Высота потолков:3
Тип дома: монолитно-кирпичный
Готовность: Идет строительство
Виды предложений: Апартаменты, Студии, Квартиры
С паркингом: Двухуровневый подземный, наземный
Адрес: ул. 2-я Синичкина, вл.1
Авиамоторная (1.5 км) ,
Римская (1.5 км) ,
Рубцовская (1.9 км) ,
Электрозаводская (2 км) ,
Семеновская (2.2 км) ,
Бауманская (2.3 км) ,
Шоссе Энтузиастов (2.6 км) ,
Площадь Ильича (2.8 км)
МФК «Гранд Лефорт» - новый проект бизнес-класса на востоке Москвы, в районе Лефортово.
Транспорт и экология
Дорожная ситуация определяется выездами на шоссе Энтузиастов и ТТК, сетью наземного общественного транспорта. До ближайших станций метро — Авиамоторной и Римской, около полутора километров, так что о шаговой доступности речи не идет.
Перспективы связаны со скорым открытием ТПУ «Лефортово», который должен заметно улучшить дорожную обстановку в районе.
Что касается экологической составляющей, то она неоднозначна — в районе имеются как действующие промзоны, так и зеленые массивы, в том числе — огромный Измайловский парк — до него от участка застройки чуть более двух километров.
Архитектура и недвижимость
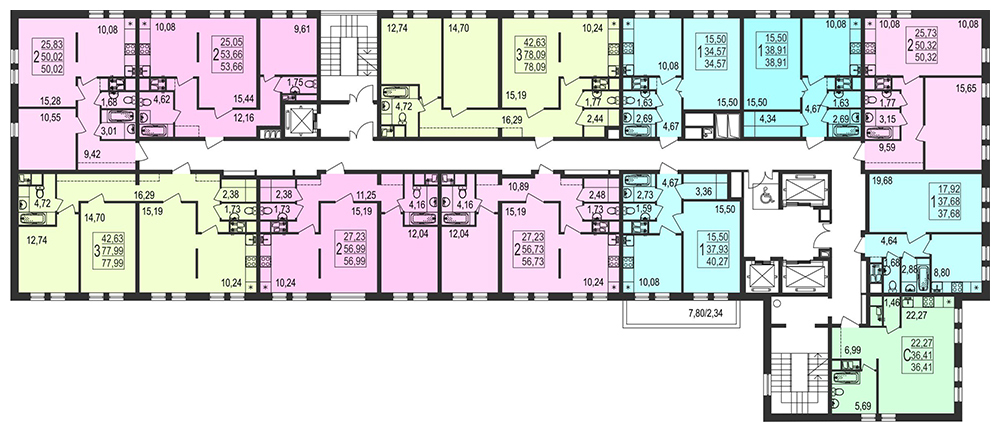
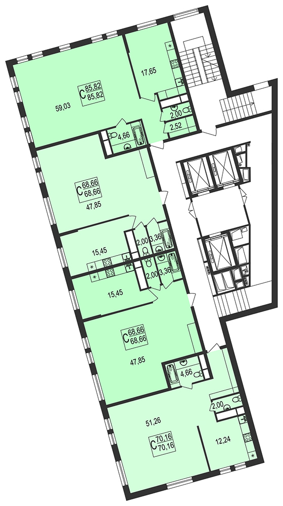
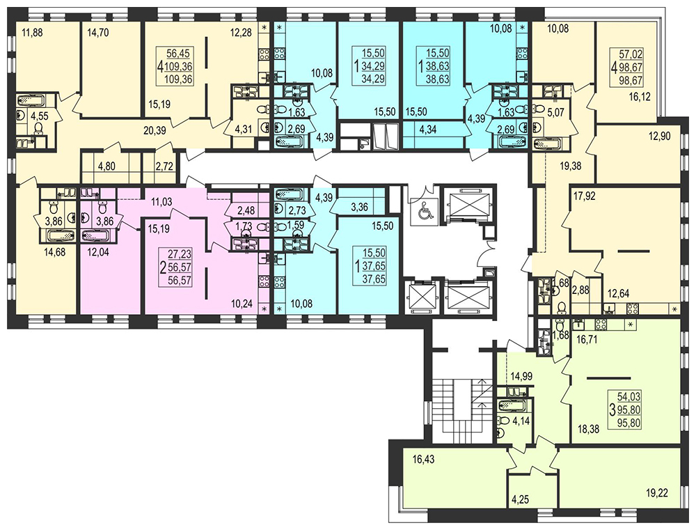
В состав комплекса войдут три здания — 20-этажная «башня» и два корпуса переменной высотности (12-25 этажей). Общая площадь недвижимости составит 55000 кв. метров.
Дома привлекают внимание необычным декором фасадом с элементами сплошного остекления и элегантными французкими балкончиками. Просторные входные группы оформляются по дизайнерскому проекту.
Недвижимость представлена как квартирами, так и апартаментами, площади варьируются от 20 до 140 в. метров.
Выбор планировок впечатляет — можно подобрать жилье с кухнями-столовыми, увеличенными холлами, несколькими ванными. В верхних этажах запланированы квартиры-«мастерские» с потолками высотой в пять метров, в которых можно будет оборудовать второй уровень.
Реализуется недвижимость в ЖК «Гранд Лефорт» без внутренней отделки, ознакомиться с ценами, наличием свободных квартир и планировочными решениями можно на официальном сайте новостройки.
Инфраструктура
Выбранное для строительства место характеризуется развитой и многообразной инфрастуктурой — школы и детские сады, медицинские учреждения, стадион, многочисленные магазины.
В самом жилом комплексе нижние этажи отведены под коммерческие помещения. Известно, что там откроется детский досуговый центр, кафе, супремаркет. Отдельные входы позволят не нарушать покой жителей.
Под каждым корпусом оборудуется подземный двухуровневый паркинг — помимо машиномест там предусмотрены помещения-кладовые для хранения сезонных и громоздких вещей. Также будут оформлены гостевые наземные автостоянки.
Придомовые территории озеленяются, оборудуются спортивные и детские площадки, большая зона отдыха с фонтаном, пешеходные и велосипедные дорожки.
Инфраструктура
Как добраться:
- метро Авиамоторная, 1.4 км.
- метро Электрозаводская, 2.1 км.: от ст. м. на общ. транспорте: Автобус № 59. до ост. «Поликлиника № 133» около 20 мин.;

Комплекс апартаментов "Басманный, 5"
Басманный, вл. 13, Комсомольская (0.7 км) , Красные ворота (0.6 км)

Стартовая площадка Золоторожский вал, вл 11/15
Лефортово, Золоторожский вал, вл 11/15, Авиамоторная (1.7 км) , Бауманская (2.6 км) , Волгоградский проспект (2.9 км)

Стартовая площадка шоссе Фрезер, 7/2
Нижегородский, шоссе Фезер, 7/2, Авиамоторная (1.8 км) , Шоссе Энтузиастов (2.3 км) , Нижегородская (1 км)

Жилой комплекс "Лефортово парк"
Лефортово, ул. Красноказарменная, вл.14, Авиамоторная (0.6 км) , Бауманская (2.8 км) , Площадь Ильича (1.8 км)

Комплекс апартаментов "Золоторожский"
Лефортово, вл.8, Авиамоторная (1.9 км) , Бауманская (2.3 км) , Крестьянская застава (2.4 км)

ЖК "Геометрия" (ЖК на ул. Душинская)
Лефортово, вл.16, Авиамоторная (1.1 км) , Волгоградский проспект (2.6 км) , Крестьянская застава (2.6 км)

— Недвижимость Москвы. Итоги 2025 года
Прошлый год стал для рынка недвижимости одним из самых спокойных за последнее время.

— Старты продаж в Москве. Второе полугодие 2025 года
Во втором полугодии 2025 года «прорыва» в выводе на рынок новых проектов в столице не случилось, более того, продолжился тренд на их сокращение.

— Новостройки Москвы. Итоги первого полугодия -2025
По последним данным, в первом полугодии текущего года столичные девелоперы начали реализацию 17 проектов жилой застройки.

— Можно ли в России купить квартиру в лизинг
Программа льготной ипотеки помогла огромному количеству россиян приобрести собственное жилье. Однако данный инструмент доступен далеко не всем, а альтернатив на рынке практически нет. Одной из немногих является покупка квартиры в лизинг.

— Марьина Роща - самая дорогая недвижимость в СВАО
Марьина Роща — самый южный район СВАО. Его граница на востоке проходит по железнодорожным путям Рижского направления и по Проспекту Мира, на юге — по оси Сущевского вала, улиц Советской Армии, Достоевского и Перунова переулка, на западе – вдоль Тихвинской улицы, ТТК, железнодорожных путей Савеловского направления и Складочной улицы, на севере — по промзоне Огородный проезд.













Отзывы покупателей о новостройке МФК "Гранд Лефорт"
Kostya
Плюсы:
Не получилось в свое время взять квартиру в "Лефорте" от этого же застройщика, но видели качество - на совесть. Думаем брать, пока цены "котлована". Место подходит очень, проект нравится, планировки хорошие.
Минусы:
Нет