ЖК "Литератор"
Площадь квартир:74 — 197 м2
Высота потолков:3,30
Общее количество квартир: 182
Общая площадь застройки: 2,34 га
Объем застройки: 66 902 м2
Тип дома: монолитно-кирпичный
Готовность: Строительство завершено. Продажа на вторичном рынке.
Срок сдачи: 4 кв.2014 г.
Виды предложений: Апартаменты, Квартиры
С паркингом: Подземный, 470 м/мест
Многофункциональный жилой комплекс построен на ул. Льва Толстого, вл. 23/7. Он возведен в районе Хамовники на территории 2,34 га на месте пивоваренного завода «Хамовники». Ближайшие станции метро – "Парк Культуры", "Смоленская".
Новостройка относится к территории престижного квартала «Золотой треугольник» и включает в себя здание с элитными апартаментами, три 2-этажных особняка, расположенных по периметру, и комплекс офисных помещений.
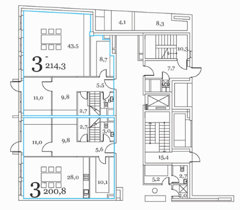
Жилой фонд представлен 182 квартирами свободной планировки, которые сдаются без отделки или с эксклюзивными оформлением. В апартаментах выполнено остекление двухкамерными стеклопакетами, установлены радиаторы с терморегуляторами.
На подземном этаже располагается двухуровневая автостоянка, рассчитанная на 470 транспортных средств. На придомовой территории разбит небольшой сквер, организованы спортивные площадки и зоны для отдыха. В глубине внутреннего двора находится гостевая парковка на 70 машиномест. Новостройка на ул. Льва Толстого, вл. 23/7 имеет собственный детский сад, а также химчистку, мини-маркеты, офисные помещения, салоны красоты и т.п.
Застройщик: Галс-Девелопмент
Документация:
Инфраструктура
Как добраться:
- метро Парк культуры, 0.5 км.
- метро Парк культуры, 0.6 км.
Новости ЖК "Литератор"
Элитные апартаменты «Гороховский, 12»
Местоположение важно для любого объекта недвижимости. Но для комплекса апартаментов «Гороховский, 12» оно важно вдвойне: ведь это едва ли не единственный проект премиального сегмента в районе метро Бауманская - Курская. Рынок элитной недвижимости постепенно расширяет географию. Есть шанс, что район бывшей Гороховой улицы станет новой Золотой Милей
Кризис 2015 г. пока не сказался на элитных новостройках
Подводя итоги 2014 г. в сегменте элитной недвижимости Москвы, эксперты рынка остерегались делать долгосрочные прогнозы. Экономическая ситуация в стране казалась непредсказуемой. Однако по итогам I квартала 2015 г. можно сделать вывод – кризиса в элитной недвижимости столицы пока не наблюдается.
Застройщики отмечают стабильный спрос на элитные новостройки
Несмотря на то, что экономический кризис коснулся и состоятельных граждан, а стоимость элитных новостроек стартует с 500-600 тыс. рублей за кв. метр, желающих приобрести эксклюзивное жилье от известных архитекторов и дизайнеров не так уж и мало.

Комплекс апартаментов "Басманный, 5"
Басманный, вл. 13, Комсомольская (0.7 км) , Красные ворота (0.6 км)

ЖК "Barkli Plaza" (Баркли Плаза)
Хамовники, д. 17, Кропоткинская (0.6 км) , Парк Культуры (0.9 км) , Полянка (0.9 км)

— Недвижимость Москвы. Итоги 2025 года
Прошлый год стал для рынка недвижимости одним из самых спокойных за последнее время.

— Старты продаж в Москве. Второе полугодие 2025 года
Во втором полугодии 2025 года «прорыва» в выводе на рынок новых проектов в столице не случилось, более того, продолжился тренд на их сокращение.

— Новостройки Москвы. Итоги первого полугодия -2025
По последним данным, в первом полугодии текущего года столичные девелоперы начали реализацию 17 проектов жилой застройки.

— Рассрочка вместо ипотеки – решение проблем?
По данным Росреестра, в декабре прошлого года произошло практически полное восстановление уровня продаж на рынке столичных новостроек.

— Можно ли в России купить квартиру в лизинг
Программа льготной ипотеки помогла огромному количеству россиян приобрести собственное жилье. Однако данный инструмент доступен далеко не всем, а альтернатив на рынке практически нет. Одной из немногих является покупка квартиры в лизинг.

— Марьина Роща - самая дорогая недвижимость в СВАО
Марьина Роща — самый южный район СВАО. Его граница на востоке проходит по железнодорожным путям Рижского направления и по Проспекту Мира, на юге — по оси Сущевского вала, улиц Советской Армии, Достоевского и Перунова переулка, на западе – вдоль Тихвинской улицы, ТТК, железнодорожных путей Савеловского направления и Складочной улицы, на севере — по промзоне Огородный проезд.






















Отзывы покупателей о новостройке ЖК "Литератор"
Seva
Плюсы:
Расположение отличное, инфраструктура в порядке. С транспортной доступностью тоже сложностей нет. Сам дом без претензий, сделано хорошо.
Минусы:
Экологию я бы не отнес к плюсам, шумно круглый год, летом очень пыльно. Я этого не ожидал. Для сравнения на Воробьевых тише, я уже молчу про Монэ там гораздо тише. Цена очень кусается. Я не строю иллюзий на счет стоимости жилья в таком месте, но тут совсем перебор.
Павел
Плюсы:
Снимаем здесь жилье вместе с женой. Очень понравилось месторасположение комплекса. Постройка свежая с очень грамотными планировками. Нравится уютный внутренний двор с мощенными пешеходными дорожками и игровой площадкой для детей. Охрана работает круглые сутки, территория хорошо освещается в темное время суток. За автомобиль не переживаем, оставляем всегда в подземном паркинге. Интерьер в квартире дизайнерский, ощущение простора и свободы. К покупке жилья пока не готовы, так как в планах перебраться на ПМЖ за город в свой дом.
Минусы:
нет
Liza
Плюсы:
Элитный квартал “Золотой треугольник” принял в свои объятья и Литературный комплекс, который расположился на ул. Льва Толстого, в районе Хамовники на территории пивоваренного завода «Хамовники». Ближайшие станции метро – "Парк Культуры", "Смоленская". Дома в комплексе современные, с высокими потолками и хорошей жилой площадью. Учитывая потребности современного жителя, архитекторы учли расположение небольшого сквера возле придомовых участков и зон, отдыха, игровых площадок. Еще идет строительство, пыль попадает в открытые окна, уборку делаю чаще - это минус, а в основном только плюсы.
Минусы:
Почти нет