Клубный дом "Barkli Virgin House" (Баркли Вирджин Хаус)
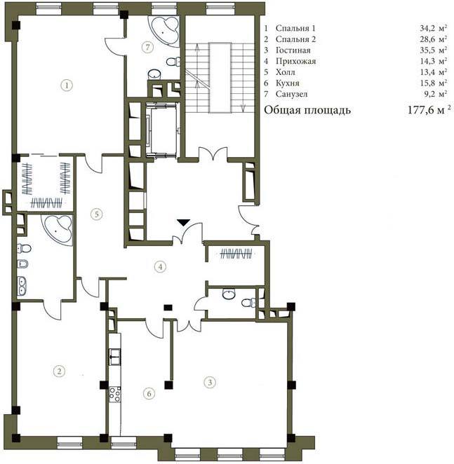
Площадь квартир:119 — 370 м2
Высота потолков:до 6.9 м
Общее количество квартир: 21
Тип дома: монолитно-кирпичный
Готовность: Строительство завершено. Продажа на вторичном рынке.
Срок сдачи: 2012 г.
Виды предложений: Апартаменты, Пентхаусы
С паркингом: Подземный
Элитный жилой комплекс «Barkli Virgin House» расположен в самом центре российской столицы. Дизайн роскошного клубного дома принадлежит всемирно известному архитектору Келли Хоппен.
Жилой комплекс включает апартаменты площадью 119-370 квадратных метров. Всего в «Баркли Вирджин Хаус» расположена 21 квартира, из окон каждой из них открывается невероятно красивый вид на историческую часть Москвы.
На лестничной площадке расположено по 1 или 2 квартиры. Одной из примечательных особенностей архитектуры здания можно назвать входную арку площадью 360 квадратных метров с высотой потолка 6,9 метра.
Инфраструктура
Шикарная столичная новостройка оборудована высокоскоростными лифтами, связывающими жилые квартиры с подземным паркингом.
Сам паркинг состоит из трех уровней, на каждом из которых можно хранить любые автомобили, включая спортивные авто и машины представительского класса. В данный момент выполняются работы по созданию инфраструктуры жилого комплекса «Barkli Virgin House». Здесь запланированы фитнес-центры, галереи искусств, СПА-салоны и другие заведения, доступные новоселам. На «Золотой миле», в состав которой входит ЖК «Barkli Virgin House», находится несколько элитных образовательных учреждений:
- Школа-студия «Пречистенские ворота»
- Московский экономико-энергетический комплекс
- Лингвистический музей №1555
- Гимназия №1529 и др
В целом, ЖК «Баркли Вирджин хаус» состоит не только из жилых зданий, но и из дополнительных строений, в числе которых: бизнес-центр, многофункциональный комплекс и несколько клубных домов. Приобретя элитные квартиры в центре Москвы, новоселы получат возможность любоваться из окон многими историческими достопримечательностями. Вблизи элитного жилого комплекса «Barkli Virgin House» расположены:
- Музей Пушкина
- Храм Покрова Пресвятой Богородицы
- Российская академия художеств
- Зачатьевский монастырь
- Картинная галерея Глазунова и др
Также в шаговой близости от ЖК «Barkli Virgin House» расположены представительства ведущих мировых компаний.
Застройщик: Баркли
Документация:
Инфраструктура
Как добраться:
- метро Кропоткинская, 0.5 км.
- метро Парк культуры, 0.6 км.
Новости Клубный дом "Barkli Virgin House" (Баркли Вирджин Хаус)
Элитные квартиры Москвы: цены и предложения
Текущий кризис породил одну новую тенденцию столичного рынка недвижимости: элитные квартиры перестали дорожать вместе с ростом курса доллара.
В 33 элитных новостройках Москвы ведутся первичные продажи
С начала года спрос на элитную недвижимость значительно вырос. В первую очередь это обусловлено нестабильной экономической ситуацией в стране.
Ситуация на столичном рынке недвижимости класса deluxe
Собственника элитного жилья можно назвать обладателем как минимум произведения искусства, так как за среднюю стоимость столичного пентхауса можно купить средних размеров вертолет, не одну породистую лошадь или картину модного художника.

Комплекс апартаментов "Басманный, 5"
Басманный, вл. 13, Комсомольская (0.7 км) , Красные ворота (0.6 км)

Хамовники, д. 13, Александровский сад (0.7 км) , Арбатская (0.6 км) , Библиотека им. Ленина (0.8 км)

— Недвижимость Москвы. Итоги 2025 года
Прошлый год стал для рынка недвижимости одним из самых спокойных за последнее время.

— Старты продаж в Москве. Второе полугодие 2025 года
Во втором полугодии 2025 года «прорыва» в выводе на рынок новых проектов в столице не случилось, более того, продолжился тренд на их сокращение.

— Новостройки Москвы. Итоги первого полугодия -2025
По последним данным, в первом полугодии текущего года столичные девелоперы начали реализацию 17 проектов жилой застройки.

— Рассрочка вместо ипотеки – решение проблем?
По данным Росреестра, в декабре прошлого года произошло практически полное восстановление уровня продаж на рынке столичных новостроек.

— Можно ли в России купить квартиру в лизинг
Программа льготной ипотеки помогла огромному количеству россиян приобрести собственное жилье. Однако данный инструмент доступен далеко не всем, а альтернатив на рынке практически нет. Одной из немногих является покупка квартиры в лизинг.

— Марьина Роща - самая дорогая недвижимость в СВАО
Марьина Роща — самый южный район СВАО. Его граница на востоке проходит по железнодорожным путям Рижского направления и по Проспекту Мира, на юге — по оси Сущевского вала, улиц Советской Армии, Достоевского и Перунова переулка, на западе – вдоль Тихвинской улицы, ТТК, железнодорожных путей Савеловского направления и Складочной улицы, на севере — по промзоне Огородный проезд.

















