ЖК "Престиж"
Площадь квартир:26 — 67 м2
Тип дома: монолитно-кирпичный
Готовность: Строительство завершено. Продажа на вторичном рынке.
Виды предложений: Квартиры
С паркингом: Подземный
Адрес: пос. Киевский
Жилой комплекс «Престиж» расположен в сорока километрах на юго-запад от МКАД в поселке Киевский, вошедшем в состав Троицкого административного округа Москвы.
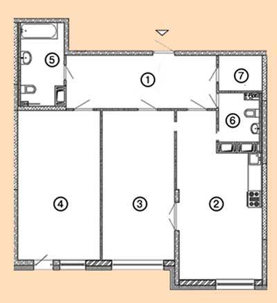
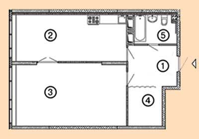
Комплекс предлагает 1-3 комнатные квартиры эконом-класса. Площадь самого скромного жилья равна 26 кв. метрам, а самого просторного – 67 кв. метрам. Во всех квартирах предусмотрена чистовая отделка, так что новоселам останется только расставить мебель.
Проживание в новом комплексе характеризуется рядом преимуществ, среди которых: транспортная доступность и перспективный развивающийся район. Таким образом, квартира здесь – это не только недорогое и комфортное жилье, но еще и выгодная инвестиция.
Новый жилой комплекс состоит из 4-х монолитно-кирпичных зданий, каждое из которых делится на две секции.
Шестнадцатиэтажные дома имеют оригинальную форму подковы, фасад зданий отделан плиткой ярких цветов. Первые этажи используются для размещения объектов инфраструктуры.
Все квартиры оснащены основными инженерными системами, включая:
- Централизованное водоснабжение
- Централизованную канализацию
- Автономное отопление
Каждая квартира новостройки «Престиж» укомплектована деревянными входными дверями, трехкамерными пластиковыми стеклопакетами (оконные проемы) и однокамерными стеклопакетами (лоджии). Во все жилые помещения установлены радиаторы отопления, проведен телефон и телевидение. Все квартиры оборудованы датчиками противопожарной сигнализации..
Инфраструктура
Безопасность местных жителей и их имущества обеспечивается службой профессиональной охраны, посты расположены в специальных помещениях жилых зданий. Также здесь предусмотрены комнаты для консьержей. Во всех подъездах установлены бесшумные скоростные лифты.
Во дворе нового жилого комплекса обустроен детский игровой уголок, зеленая территория, зона отдыха и автостоянка. Вся территория ЖК «Престиж», включая дома и площадки, будет постоянно находиться под охраной. Вскоре на первых этажах зданий будут размещены объекты инфраструктуры, среди которых:
- Продуктовые и хозяйственные магазины
- Кафе и ресторан
- Салоны красоты
- Химчистка
Застройщик: ТрейдИнвестГрупп
Инфраструктура

Новые Ватутинки. мкр. "Центральный"
Троицкий, пос. Новые Ватутинки, микрорайон «Центральный», Бунинская аллея (10.6 км)

— Новостройки Москвы. Итоги первого полугодия -2025
По последним данным, в первом полугодии текущего года столичные девелоперы начали реализацию 17 проектов жилой застройки.

— Рассрочка вместо ипотеки – решение проблем?
По данным Росреестра, в декабре прошлого года произошло практически полное восстановление уровня продаж на рынке столичных новостроек.

— Недвижимость Москвы – 2024. Итоги года
Прошедший год выдался очень насыщенным и неоднозначным для рынка столичной недвижимости. Начало января – пора подведения итогов и обозначения возможных будущих трендов рынка.

— Можно ли в России купить квартиру в лизинг
Программа льготной ипотеки помогла огромному количеству россиян приобрести собственное жилье. Однако данный инструмент доступен далеко не всем, а альтернатив на рынке практически нет. Одной из немногих является покупка квартиры в лизинг.

— Как купить квартиру в доме по программе реновации
Дома, построенные в рамках реновации, интересуют не только «переселенцев», но и потенциальных покупателей. Ведь они часто возводятся в районах с хорошей транспортной доступностью и сложившейся инфраструктурой. Как купить квартиру в доме по реновации?

— Марьина Роща - самая дорогая недвижимость в СВАО
Марьина Роща — самый южный район СВАО. Его граница на востоке проходит по железнодорожным путям Рижского направления и по Проспекту Мира, на юге — по оси Сущевского вала, улиц Советской Армии, Достоевского и Перунова переулка, на западе – вдоль Тихвинской улицы, ТТК, железнодорожных путей Савеловского направления и Складочной улицы, на севере — по промзоне Огородный проезд.












Отзывы покупателей о новостройке ЖК "Престиж"
Татьяна Озерицкая
Плюсы:
Несколько месяцев назад приобрела 2-комнатную квартиру в ЖК “Престиж”. Обратила внимание на этот комплекс из-за невысокой цены на жилье. Приятно удивило то, что в квартире присутствовала отделка, поэтому все, что мне оставалось сделать - это расставить мебель. Жилье оснащено централизованной канализацией и водоснабжением, автономным отоплением, кабельным телевидением, датчиком противопожарной сигнализации. На территории ЖК - салоны красоты, магазины, детская игровая площадка.
Минусы:
В общем, здесь есть все, что нужно для комфортной жизни, хотя хотелось бы, чтобы инфраструктура была более развитой.
Галя
Плюсы:
Низкие цены. Квартиры предлагаются со свободными планировками. Рядом супермаркет "Дикси", школа и детский сад. Есть ипотека и рассрочка.
Минусы:
Долгострой. В поселке слабо развита инфраструктура, нет крупных развлекательных учреждений. Рядом проходит Киевское шоссе и железная дорога, что отрицательно влияет на экологию. До Москвы 50 км.
Галина Смирнова
Плюсы:
Рядом школа, детский сад и супермаркет "Дикси".
Минусы:
Рядом проходит железная дорога и Киевское шоссе, что я думаю отрицательно влияет на экологию.