ЖК "NV/9 ARTKVARTAL" (НВ/9 Артквартал)
Площадь квартир:48.5 — 315.6 м2
Высота потолков:3.2
Общее количество квартир: 77
Тип дома: монолитный
Готовность: Строительство завершено. Продажа на вторичном рынке.
Срок сдачи: 4 кв.2019 г.
Виды предложений: Апартаменты, Пентхаусы, Квартиры
С паркингом: Подземный на 112 м/мест
Адрес: Большой Николоворобинский переулок, 9
Чкаловская (0.9 км) ,
Савеловская (1 км) ,
Таганская (1 км) ,
Курская (1.1 км) ,
Марксистская (1.2 км) ,
Чистые пруды (1.6 км) ,
Новокузнецкая (1.6 км) ,
Тургеневская (1.7 км) ,
Лубянка (1.7 км) ,
Площадь Революции (1.8 км)
МЦД Курская (1.2 км)
Жилой комплекс «NV / 9 ARTKVARTAL » - новое предложение на рынке элитной недвижимости центрального округа столицы. Расположен он в Таганском районе буквально в двух шагах от Серебрянической набережной.
Транспорт и экология
Несмотря на плотный трафик движения в центре Москвы, дорожную ситуацию можно назвать скорее благополучной — рядом удобный выезд на Садовое кольцо и две станции метро — Чкаловская и Китай-город: пешим ходом до любой из них не более 15 минут.
Вполне благоприятная и экологическая составляющая — участок застройки расположен на границе с парком, кстати, жители будут иметь собственные ключи от входа — возможность уникальная. Кроме этого, в округе несколько зеленых массивов, множество скверов, да и близость к воде вносит свой вклад.
Архитектура и недвижимость
Новый комплекс — два монолитных корпуса высотой в 5, 7 и 9 этажей. Выдержаны они в строгом классическом стиле, что позволяет домам идеально вписаться в окружающую застройку, в том числе, и историческую.
Респектабельность подчеркивается фасадами с отделкой из натурального камня и входными группами, оформленными по авторскому дизайн-проекту.
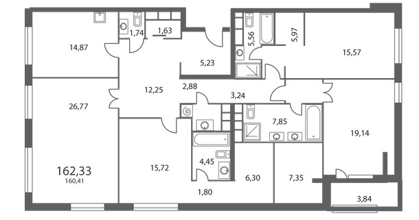
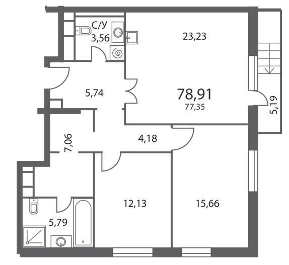
Несмотря на небольшое, всего 77, количество квартир, выбор планировок в ЖК «НВ/9 Артквартал» впечатляет: от линейной просторной «классики» до роскошных видовых пентхаусов верхних этажей. Интересное предложение - жилье с двориками-патио , создающее впечатление практически загородной приватности проживания.
Есть квартиры с оборудованными местами для установки каминов, с увеличенными балконами-террасами. Общее — продуманные, функциональные планировки и высокие трехметровые потолки, зрительно еще более увеличивающие пространство.
Реализуется недвижимость без внутренней отделки. Подробно ознакомиться с ценами и планировками можно на официальном сайте объекта.
Инженерия и инфраструктура
Инженерные решения вполне отвечают заявленному статусу недвижимости: комплексная система безопасности, центральное кондиционирование, многоуровневая очистка воды, возможность регулировать температуру радиаторов через мобильное приложение и многое другое.
Территория клубного дома «NV/9» огорожена, работает охрана. Внутренний двор оформлен специалистами по ландшафтному проектированию, представляя собой настоящий маленький парк с уютными местами для отдыха, оригинальными арт-объектами и красочными клумбами. Для маленьких жителей оборудована травмобезопасная игровая площадка. Предполагается открытие собственного фитнес-центра.
Удачно решен вопрос с размещением автомобилей — двухуровневый подземный паркинг на 112 машиномест. Попасть в него можно на лифте прямо с жилого этажа.
Хороша и внешняя инфраструктура — в ближайших соседях творческое пространство «Винзавода» и «Гоголь-центр». Нет недостатка и в детских образовательных учреждениях, спортивных и медицинских центрах, магазинах и кафе.
Застройщик: State development
Инфраструктура
Как добраться:
- метро Чкаловская, 0.8 км.
- метро Таганская, 1.0 км.
Новости ЖК "NV/9 ARTKVARTAL" (НВ/9 Артквартал)
Элитный проект NV/9 ARTKVARTAL от компании State Development получил аккредитацию банка ВТБ24 и теперь приобрести жилье в клубном доме можно со сниженной ставкой по ипотечному кредиту.

Комплекс апартаментов "Басманный, 5"
Басманный, вл. 13, Комсомольская (0.7 км) , Красные ворота (0.6 км)

Стартовая площадка Золоторожский вал, вл 11/15
Лефортово, Золоторожский вал, вл 11/15, Авиамоторная (1.7 км) , Бауманская (2.6 км) , Волгоградский проспект (2.9 км)

Басманный, ул. Машкова, 6, стр.1, Красные ворота (0.7 км) , Тургеневская (0.9 км) , Чистые пруды (0.7 км)

Клубный дом il Ricco (ил Рикко)
Басманный, д.11, Чистые пруды (1 км) , Чкаловская (0.5 км) , Курская (0.5 км)

Комплекс апартаментов "Золоторожский"
Лефортово, вл.8, Авиамоторная (1.9 км) , Бауманская (2.3 км) , Крестьянская застава (2.4 км)

— Новостройки Москвы. Итоги первого полугодия -2025
По последним данным, в первом полугодии текущего года столичные девелоперы начали реализацию 17 проектов жилой застройки.

— Рассрочка вместо ипотеки – решение проблем?
По данным Росреестра, в декабре прошлого года произошло практически полное восстановление уровня продаж на рынке столичных новостроек.

— Недвижимость Москвы – 2024. Итоги года
Прошедший год выдался очень насыщенным и неоднозначным для рынка столичной недвижимости. Начало января – пора подведения итогов и обозначения возможных будущих трендов рынка.

— Можно ли в России купить квартиру в лизинг
Программа льготной ипотеки помогла огромному количеству россиян приобрести собственное жилье. Однако данный инструмент доступен далеко не всем, а альтернатив на рынке практически нет. Одной из немногих является покупка квартиры в лизинг.

— Как купить квартиру в доме по программе реновации
Дома, построенные в рамках реновации, интересуют не только «переселенцев», но и потенциальных покупателей. Ведь они часто возводятся в районах с хорошей транспортной доступностью и сложившейся инфраструктурой. Как купить квартиру в доме по реновации?

— Марьина Роща - самая дорогая недвижимость в СВАО
Марьина Роща — самый южный район СВАО. Его граница на востоке проходит по железнодорожным путям Рижского направления и по Проспекту Мира, на юге — по оси Сущевского вала, улиц Советской Армии, Достоевского и Перунова переулка, на западе – вдоль Тихвинской улицы, ТТК, железнодорожных путей Савеловского направления и Складочной улицы, на севере — по промзоне Огородный проезд.

















Отзывы покупателей о новостройке ЖК "NV/9 ARTKVARTAL" (НВ/9 Артквартал)
Алла
Плюсы:
Место, конечно, хорошее и сам дом должен быть очень красивым, судя по сайту.
Минусы:
Цены для начала строительства очень высокие, даже для этого района