ЖК "мой адрес на Рокоссовского"
Площадь квартир:44 — 113 м2
Высота потолков:3,0
Общее количество квартир: 1870
Объем застройки: 135 000 м2
Тип дома: монолитно-кирпичный
Готовность: Дома сданы
Срок сдачи: 3 кв.2012 г.
Виды предложений: Квартиры
С паркингом: подземный, 1890 м/мест
Адрес: Маршала Рокоссовского бульвар, д.6, корп 1
Улица Подбельского (0.8 км) ,
Бульвар Рокоссовского (0.8 км) ,
Черкизовская (1.4 км) ,
Преображенская площадь (1.5 км) ,
Партизанская (2.6 км)
МЦК Бульвар Рокоссовского (1.2 км) ,
МЦК Локомотив (1.4 км)
Жилой комплекс "мой адрес на Рокоссовского" - проект комфорт-класса на востоке Москвы, в районе Богородское.
Транспорт и экология
Дорожная ситуация довольно благополучная, благодаря выездам на Щелковское шоссе, МКАД и ТТК, нескольким станция метро поблизости и многочисленным маршрутам наземного общественного транспорта.
Экологическая обстановка определяется как наличием в районе действующих промышленных предприятий, так и близостью к крупным паркам «Сокольники» и «Лосиный остров». Много зеленых насаждений и внутри существующей жилой застройки.
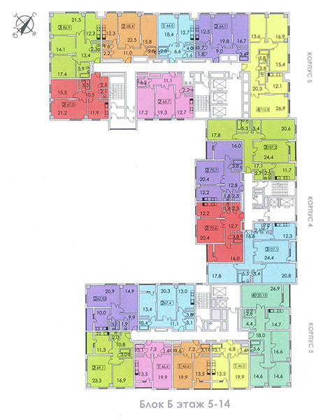
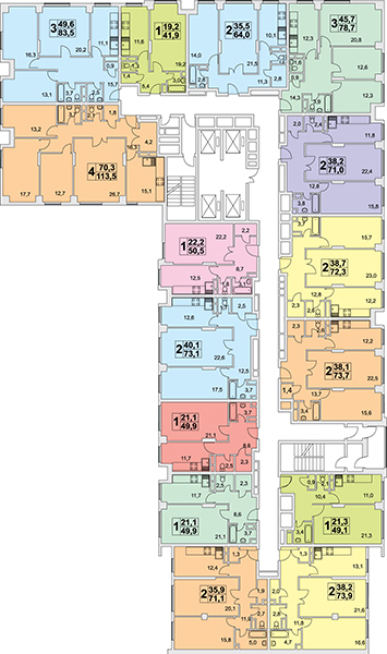
Дома и квартиры
Строительство ЖК велось в несколько этапов. Всего здесь 11 монолитных многосекционных корпусов переменной высотности (6-15-31 этаж). Дома выстроены по оригинальным проектам, привлекая внимание необычными решениями вентилируемых фасадов (каждый уникален, двух одинаковых в комплексе нет) с зонами вертикального озеленения и большими окнами.
Квартирография отличается разнообразием планировочных решений и отсутствием жилья «мелкой нарезки» - площади начинаются от 46 кв. метров.
Можно подобрать как линейную квартиру, так и выходящую на 2-3 стороны света, с несколькими балконами или лоджиями, вспомогательными помещениями или дополнительными санузлами — они имеются в трех- и четырехкомнатном жилье.
Реализуются квартиры в ЖК "мой адрес на Рокоссовского" с чистовой отделкой, классический стиль которой и сдержанные нейтральные тона прекрасно подходят практически к любой меблировке.
Инженерные решения и коммуникации обеспечивают достойный уровень комфорта проживания. В секциях установлены малошумные лифты, проведены оптоволоконные линии, обеспечивающие скоростной интернет и цифровое ТВ, предусмотрена комплексная система безопасности.
Ознакомиться с ценами, планировками и наличием свободных квартир можно на официальном сайте новостройки.
Инфраструктура
Жилой комплекс выстроен в развитом и давно сложившемся районе с достаточно многообразной инфраструктурой. В шаговой доступности работает несколько детских садов и школ, медицинские учреждения, множество магазинов различной направленности, отделения банков, салоны связи и многое другое.
В самом ЖК во дворах оборудованы спортивные и детские площадки, зоны отдыха, проложены пешеходные дорожки. Большой, на 1890 машиномест, подземный паркинг, позволяет разместить автомобили всем жителям. Попасть в него можно на лифте прямо с жилого этажа.
Застройщик: Мой адрес
Документация:
Разрешение на строительство ЖК Мой адрес на Рокоссовского
Разрешение на ввод в эксплуатацию (блок А) ЖК Мой адрес на Рокоссовского
Разрешение на ввод в эксплуатацию (блок Б) ЖК Мой адрес на Рокоссовского
Разрешение на ввод в эксплуатацию (блок В) ЖК Мой адрес на Рокоссовского
Разрешение на ввод в эксплуатацию (блок Г) ЖК Мой адрес на Рокоссовского
Инфраструктура
Как добраться:
- метро Бульвар Рокоссовского, 0.8 км.
- станция Бульвар Рокоссовского, 1.2 км.
Новости ЖК "мой адрес на Рокоссовского"
Квартиры в Богородском районе Москвы
Если вспомнить Богородское даже 20-ти летней давности и сравнить его с сегодняшним районом, то вряд ли можно найти много общего – перемены огромные.
Жители ЖК "мой адрес на Рокоссовского"


Богородское, 19, Преображенская площадь (1.8 км) , Улица Подбельского (1.2 км) , Черкизовская (2.1 км)

Богородское, вл.3, Преображенская площадь (2 км) , Улица Подбельского (1.9 км) , Черкизовская (2.7 км)

Соколиная гора, д. 14, стр.1, Измайловская (2.9 км) , Партизанская (0.7 км) , Преображенская площадь (1.5 км)

— Новостройки Москвы. Итоги первого полугодия -2025
По последним данным, в первом полугодии текущего года столичные девелоперы начали реализацию 17 проектов жилой застройки.

— Рассрочка вместо ипотеки – решение проблем?
По данным Росреестра, в декабре прошлого года произошло практически полное восстановление уровня продаж на рынке столичных новостроек.

— Недвижимость Москвы – 2024. Итоги года
Прошедший год выдался очень насыщенным и неоднозначным для рынка столичной недвижимости. Начало января – пора подведения итогов и обозначения возможных будущих трендов рынка.

— Можно ли в России купить квартиру в лизинг
Программа льготной ипотеки помогла огромному количеству россиян приобрести собственное жилье. Однако данный инструмент доступен далеко не всем, а альтернатив на рынке практически нет. Одной из немногих является покупка квартиры в лизинг.

— Как купить квартиру в доме по программе реновации
Дома, построенные в рамках реновации, интересуют не только «переселенцев», но и потенциальных покупателей. Ведь они часто возводятся в районах с хорошей транспортной доступностью и сложившейся инфраструктурой. Как купить квартиру в доме по реновации?

— Марьина Роща - самая дорогая недвижимость в СВАО
Марьина Роща — самый южный район СВАО. Его граница на востоке проходит по железнодорожным путям Рижского направления и по Проспекту Мира, на юге — по оси Сущевского вала, улиц Советской Армии, Достоевского и Перунова переулка, на западе – вдоль Тихвинской улицы, ТТК, железнодорожных путей Савеловского направления и Складочной улицы, на севере — по промзоне Огородный проезд.


























Отзывы покупателей о новостройке ЖК "мой адрес на Рокоссовского"
Марья
Плюсы:
Одно из лучших предложений в своей ценовой категории. Купили квартиру в одном из готовых домов с ремонтом. Заселились почти сразу после получения ключей. Ничего не делали, кроме установки мебели. На небольшой удаленности от комплекса несколько водоемов с чистейшей водой и лес. Экологическая обстановка устраивает. Транспортной проблемы как таковой нет, но, чего греха таить, в пробке иногда стоять приходится. Паркинг свой, подземный, даже сейчас еще остаются свободные места. Магазины рядом.
Минусы:
Пробки
Тамара И.
Плюсы:
Живем уже год, по-большому счету все неплохо. Качество нормальное, мест в паркинге вроде на всех хватило, дворы машинами не забиты.
Минусы:
Инфраструктуры особой рядом нет, особенно школ и детских садов. А большинство жителей - семьи с детьми.
Валя
Плюсы:
Часть домов уже сдана. Можно купить квартиру с готовым ремонтом. Есть ипотека и рассрочка. Предусмотрен подземный двухуровневый паркинг. Построят собственные детсады и школу. Лес и пруд в шаговой доступности летом река для купания - пешком 10мин большие песчаные карьеры с чистой водой - 45мин на велосипеде Все балконы остеклены. Потолки 3 м.
Минусы:
В восточной части микрорайона почти постоянно несет канализацией. Рядом только одна школа. Добраться от богородского до платформы ивантеевка - минут 35 и с каждым сезоном пробки начинаются все раньше + 1 час на электричке до ярославского вокзала. до платформы воронок ехать больше часа.