Жилой квартал "LIFE-Кутузовский" (Лайф Кутузовский)
Квартиры : | 2 комн.кв-ры от 27 млн. руб , 3 комн.кв-ры от 50 млн. руб Интервал стоимости предложения включает в себя минимальную цену в данном жилом комплексе. В случае заинтересованности необходимо уточнение конечной стоимости у компании, реализующей данное предложение. |
|---|
Площадь квартир:47.8 — 106.4 м2
Тип дома: монолитный
Готовность: Дома сданы
Срок сдачи: 3 кв.2020 г.
Виды предложений: Пентхаусы, Квартиры с отделкой
С паркингом: Двухуровневый подземный
Цена300-500 тыс. руб за м2
Адрес: ул. Гжатская, 9
Аминьевское шоссе (1.4 км) ,
Давыдково (1.5 км) ,
Кунцевская (2.6 км) ,
Славянский бульвар (2.7 км) ,
Аминьевская (2.7 км)
МЦД Рабочий поселок (1.7 км) ,
МЦД Кунцевская (1.8 км)
Жилой квартал «LIFE-Кутузовский» - проект бизнес-класса на западе Москвы, в Можайском районе.
Транспорт и экология
Дорожная ситуация определяется выездами на Можайское шоссе, Кутузовский проспект, МКАД и ТТК, сетью наземного общественного транспорта. А вот метро в шаговой доступности нет — до ближайшей станции, Кунцевской, почти два километра.
Что касается экологической обстановки, то несмотря на близость огромного массива заказника «Долина реки Сетунь», однозначно благоприятной ее назвать нельзя. Негативное влияние оказывает расположенная менее, чем в километре огромная промзона.
Дома и квартиры
Закрытая территория почти в шесть гектар застраивается монолитно-каркасными зданиями высотой в 23 этажа. Площадь недвижимости составит 183000 кв. метров. Строительство будет вестись в два этапа, в рамках первой очереди запланировано возведение пяти корпусов.
Здания выполняются по оригинальному проекту в ярком современном стиле и привлекают внимание необычными решениями фасадов — двух одинаковых здесь не будет, панорамными окнами и просторными входными группами с дизайнерской отделкой.
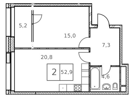
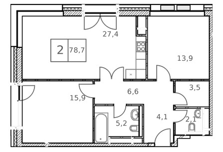
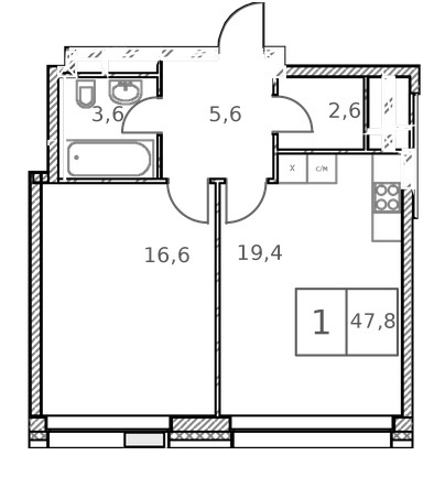
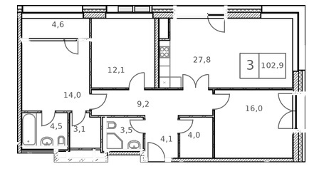
Квартирография обширная — в ЖК «Лайф Кутузовский» представлено одно-, двух- и трехкомнатное жилье с обширным выбором планировочных решений, верхние этажи отведены под пентхаусы с собственными террасами на эксплуатируемой крыше. Квартир «мелкой нарезки» не будет — площади начинаются от 48 кв. метров.
Представлена как недвижимость классического формата, так и «евро» - с объединенной кухней-гостиной. В квартирах большой площади предусмотрены спальни с собственной ванной и гардеробной, а также вспомогательные помещения.
Реализуются квартиры с отделкой «под ключ», инженерные решения полностью отвечают заявленному статусу недвижимости. Ознакомиться с ценами и планировками можно на официальном сайте новостройки.
Инфраструктура
Несмотря на расположение в развитом, респектабельном районе, в новом ЖК предусмотрена многообразная и тщательно продуманная инфраструктура.
Первые этажи зданий отведены под коммерческие помещения с отдельными входами, будет построен собственный детский сад на 150 воспитанников, центральную часть квартала займет пешеходный бульвар с местами для отдыха, кафе и магазинами.
В проекте реализуется концепция «двор без машин» - придомовые территории полностью отданы в распоряжение жителей, а въезд во вместительный двухуровневый подземный паркинг вынесен за пределы жилого пространства.
Застройщик: Pioneer Group
Инфраструктура

Стартовая площадка Гжатская 16 корп 1
Можайский, ул. Гжатская, 16 корп.1, Кунцевская (1.8 км) , Славянский бульвар (2.6 км) , Аминьевское шоссе (1.3 км)

Можайский, Можайское шоссе, 36, Кунцевская (2.3 км) , Молодежная (2.3 км) , Аминьевское шоссе (2.3 км)

ЖК "Концепт House" (Концепт Хаус)
Можайский, ул. Багрицкого, 10, корп.3, Кунцевская (1 км) , Молодежная (2.1 км) , Пионерская (2.6 км)

Стартовая площадка Квартал 71 корпус 18
Фили-Давыдково, ул. Кастанаевская, в районе д.63, Кунцевская (0.4 км) , Молодежная (2.5 км) , Пионерская (1 км)

Стартовая площадка Квартал 65 корпус 3
Фили-Давыдково, ул. Большая Филевская в районе д.63, Багратионовская (2.2 км) , Кунцевская (1.3 км) , Молодежная (2.9 км)

Можайский, Можайское шоссе, 36, Кунцевская (2.3 км) , Молодежная (2.3 км) , Аминьевское шоссе (2.3 км)

ЖК "NV/9 ARTKVARTAL" (НВ/9 Артквартал)
Беговой, Большой Николоворобинский переулок, 9, Александровский сад (2.6 км) , Арбатская (2.9 км) , Библиотека им. Ленина (2.5 км)

ЖК "Концепт House" (Концепт Хаус)
Можайский, ул. Багрицкого, 10, корп.3, Кунцевская (1 км) , Молодежная (2.1 км) , Пионерская (2.6 км)

— Новостройки Москвы. Итоги первого полугодия -2025
По последним данным, в первом полугодии текущего года столичные девелоперы начали реализацию 17 проектов жилой застройки.

— Рассрочка вместо ипотеки – решение проблем?
По данным Росреестра, в декабре прошлого года произошло практически полное восстановление уровня продаж на рынке столичных новостроек.

— Недвижимость Москвы – 2024. Итоги года
Прошедший год выдался очень насыщенным и неоднозначным для рынка столичной недвижимости. Начало января – пора подведения итогов и обозначения возможных будущих трендов рынка.

— Можно ли в России купить квартиру в лизинг
Программа льготной ипотеки помогла огромному количеству россиян приобрести собственное жилье. Однако данный инструмент доступен далеко не всем, а альтернатив на рынке практически нет. Одной из немногих является покупка квартиры в лизинг.

— Как купить квартиру в доме по программе реновации
Дома, построенные в рамках реновации, интересуют не только «переселенцев», но и потенциальных покупателей. Ведь они часто возводятся в районах с хорошей транспортной доступностью и сложившейся инфраструктурой. Как купить квартиру в доме по реновации?

— Марьина Роща - самая дорогая недвижимость в СВАО
Марьина Роща — самый южный район СВАО. Его граница на востоке проходит по железнодорожным путям Рижского направления и по Проспекту Мира, на юге — по оси Сущевского вала, улиц Советской Армии, Достоевского и Перунова переулка, на западе – вдоль Тихвинской улицы, ТТК, железнодорожных путей Савеловского направления и Складочной улицы, на севере — по промзоне Огородный проезд.












Отзывы покупателей о новостройке Жилой квартал "LIFE-Кутузовский" (Лайф Кутузовский)
AlexD
Плюсы:
Очень нравится постоянные фото и видеоотчеты о строительстве проекта. Приятно видеть как все меняется и постепенно растет твой дом. у ЖК очень удобный форум, там застройщику можно задавать любые вопросы, он отвечает довольно быстро.
Гурин
Плюсы:
Проект Life-Кутузовский отличается грамотными планировками и стильными дизайнерскими решениями, так же нам отлично подошло расположение. Общаемся с будущими соседями на форуме kutuzovsky-life, плюс там можно задать любые вопросы застройщику.
Gertion
Плюсы:
Ждем трехкомнатную квартиру в ЖК Life-Кутутзовский,постоянно следим за стройкой. там есть онлайн камеры, фото и видеоотчеты - можно задать любой вопрос прямо застройщику.