Комплекс апартаментов "St. Nickolas" (Ст. Николас)
Квартиры : | многокомн.кв-ры от 234.59 млн. руб Интервал стоимости предложения включает в себя минимальную цену в данном жилом комплексе. В случае заинтересованности необходимо уточнение конечной стоимости у компании, реализующей данное предложение. |
|---|
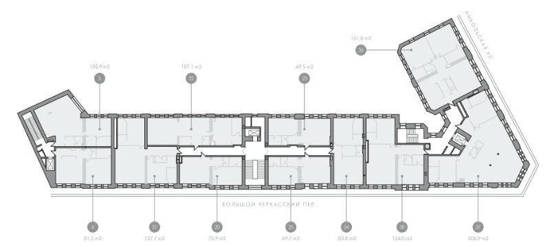
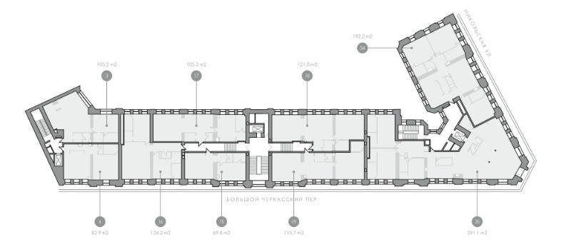
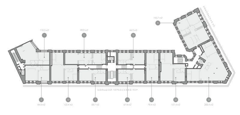
Площадь квартир:158 — 158 м2
Тип дома: монолитно-кирпичный
Готовность: Строительство завершено. Продажа на вторичном рынке.
Виды предложений: Апартаменты с отделкой
С паркингом: Подземный
Адрес: Никольская ул, 10/2
Лубянка (0.1 км) ,
Кузнецкий мост (0.3 км) ,
Площадь Революции (0.3 км) ,
Говорово (0.3 км) ,
Шереметьевская (0.3 км) ,
Ржевская (0.3 км) ,
Стромынка (0.3 км) ,
Аминьевское шоссе (0.3 км) ,
Театральная (0.4 км) ,
Охотный ряд (0.6 км)
Элитный комплекс апартаментов «St. Nickolas» расположился в самом центре столицы, в нескольких минутах ходьбы от Кремля. Театры и музеи, уникальные памятники архитектуры, модные магазины — самый респектабельный и роскошный район Москвы.
Кроме того, поблизости планируется обустройство ландшафтного парка «Зарядье», так что еще одним большим преимуществом станет редкое для огромного мегаполиса экологическое благополучие.
Комплекс — пятиэтажное здание, удачно сочетающее тщательно отреставрированный исторический фасад и современные инженерные и планировочные решения.
Апартаменты располагаются со второго по пятый этаж. Площадь их варьируется от 65 до 290 кв. метров. Верхний этаж отведен под двухуровневые пентхаусы с собственными террасами, с которых открываются великолепные виды на главные столичные достопримечательности.
Все апартаменты «Ст. Николас» продаются полностью готовыми — дизайнерские интерьеры, мрамор и натуральное дерево в отделке, брендовая кухонная мебель, бытовая техника и сантехническое оборудование. Подключены системы противопожарной и охранной сигнализации.
Нижний этаж здания нежилой — он отведен под ресторан, кафе и бутики. В подземном уровне оборудован механизированный паркинг для автомобилей жителей.
Застройщик: VESPER
Инфраструктура
Как добраться:
- метро Лубянка, 0.2 км.
- метро Площадь Революции, 0.2 км.
Новости Комплекс апартаментов "St. Nickolas" (Ст. Николас)
Юрий Кочетков: Второе пришествие отделки
2016 год стал годом возврата жилых комплексов с финишной отделкой на рынок элитных новостроек. К концу года их число должно составить не менее девяти.
Юрий Кочетков: Как московская урбанизация влияет на рынок
Наводнения, захлестнувшие центр Москвы в июле, подняли не только мусор из ливневой канализации. Оказалось, что у нас много злободневных вопросов к тому, что происходит в городе. В первую очередь, к качеству проводимых мероприятий по реконструкции и благоустройству города.
Юрий Кочетков: Не нежильё, но и не жильё
Апартаменты к квартирам приравнены не будут, Минстрой продолжает разрабатывать законопроект о статусе апартаментов, а тем временем московская власть демонстрирует удивительную лояльность к данному формату жилья.

Комплекс апартаментов "Басманный, 5"
Басманный, вл. 13, Комсомольская (0.7 км) , Красные ворота (0.6 км)

Тверской, ул. Большая Дмитровка, 7/5, Кузнецкий мост (0.6 км) , Лубянка (0.7 км) , Охотный ряд (0.4 км)

Апартаменты "Metropolis Loft" (Метрополис Лофт)
, 24/7, стр. 3, Лубянка (1 км)

— Новостройки Москвы. Итоги первого полугодия -2025
По последним данным, в первом полугодии текущего года столичные девелоперы начали реализацию 17 проектов жилой застройки.

— Рассрочка вместо ипотеки – решение проблем?
По данным Росреестра, в декабре прошлого года произошло практически полное восстановление уровня продаж на рынке столичных новостроек.

— Недвижимость Москвы – 2024. Итоги года
Прошедший год выдался очень насыщенным и неоднозначным для рынка столичной недвижимости. Начало января – пора подведения итогов и обозначения возможных будущих трендов рынка.

— Можно ли в России купить квартиру в лизинг
Программа льготной ипотеки помогла огромному количеству россиян приобрести собственное жилье. Однако данный инструмент доступен далеко не всем, а альтернатив на рынке практически нет. Одной из немногих является покупка квартиры в лизинг.

— Как купить квартиру в доме по программе реновации
Дома, построенные в рамках реновации, интересуют не только «переселенцев», но и потенциальных покупателей. Ведь они часто возводятся в районах с хорошей транспортной доступностью и сложившейся инфраструктурой. Как купить квартиру в доме по реновации?

— Марьина Роща - самая дорогая недвижимость в СВАО
Марьина Роща — самый южный район СВАО. Его граница на востоке проходит по железнодорожным путям Рижского направления и по Проспекту Мира, на юге — по оси Сущевского вала, улиц Советской Армии, Достоевского и Перунова переулка, на западе – вдоль Тихвинской улицы, ТТК, железнодорожных путей Савеловского направления и Складочной улицы, на севере — по промзоне Огородный проезд.











Отзывы покупателей о новостройке Комплекс апартаментов "St. Nickolas" (Ст. Николас)
Болотина Н.К.
Плюсы:
Мы с мужем в том возрасте, когда хочется восторгаться культурной жизнью. Муж бывший военный, пришлось помотаться по странам, теперь хотим познавать жизнь и историю своей страны. По выходным есть возможность посещать музеи, прогуливаться рядом с Кремлем. В пентхаусе на пятом этаже, где мы живем великолепная отделка. Мрамор, натуральное дерево - дизайнеры поработали на славу. Вид шикарный. Из окна видна городская суета и величие памятников.
Минусы:
Еще не готов парк “Зарядье”, но я жду с нетерпением его открытия. Немного расстраивает наличие кафе и магазинов на первом этаже, но я понимаю, что для молодежи это имеет огромное значение.
Вано
Плюсы:
Выбирали жилье в элитном районе, чтобы жилье соответствовало статусу и включало в себя комфорт, натуральность и красоту. «St. Nickolas» - это то место, где жить хочется. Историческое место. В нескольких минутах ходьбы Кремль, памятники, музеи и другие архитектурные строительства. Транспортная развязка самая благоприятная. Можно попасть без проблем в любой район города и Подмосковья. Апартаменты сдаются с полной отделкой, дизайнеры поработали на славу и выгодно оформили стены дома. Высокие потолки, планировка, современная коммуникация. Плюсик за натуральные материалы, использованные в отделке.
Минусы:
нет
Стас
Плюсы:
Доступные цены. Есть ипотека и рассрочка. Есть уже построенные и сданные дома. На первых этажах запланированы объекты социальной инфраструктуры.
Минусы:
Квартиры сдаются без отделки. Нет крытого паркинга. Небольшое количество парковочных мест на автостоянках. Плотная застройка домов и узкие подъездные дороги. В существующих детсадах нет мест.