Комплекс апартаментов "Nord" (Норд)
Площадь квартир:26 — 83 м2
Общее количество квартир: 163
Тип дома: монолитный
Готовность: Дома сданы
Срок сдачи: 1 кв.2020 г.
Виды предложений: Апартаменты
С паркингом: Наземный
Комплекс апартаментов Nord строится в северо-восточном округе столицы, в новом жилом микрорайоне «Северный» в полутора километрах от МКАД.
Транспорт и экология
Транспортная доступность обеспечивается Дмитровским шоссе — трассой довольно загруженной, а также Новодачным шоссе и несколькими внутренними проездами, так что дорога на автомобиле много времени не займет. Есть варианты проезда на автобусе или маршрутном такси от метро Алтуфьево или электропоездом до станции «Новодачная» - до нее от участка застройки не более 10 минут пешего хода.
Экологическая обстановка в районе неоднозначная — здесь имеются как промышленные зоны, так и обширные зеленые массивы с местами для отдыха и купания. Большое влияние оказывает проходящая буквально «под окнами» магистраль с плотным трафиком движения — строительство ведется на первой линии домов.
Архитектура и недвижимость
11-этажное здание возводится по оригинальному проекту, привлекая внимание необычной конфигурацией, богатым декором фасадов, сплошным остеклением лоджий и элегантными французкими балкончиками с ажурным ограждением. Необычно решение входных групп — над ними поработали высококлассные дизайнеры: светлые тона в отделке, обилие зеркал, разноуровневое освещение. Здесь, помимо зоны ресепшен, будут обустроены гостевые уголки для ожидания.
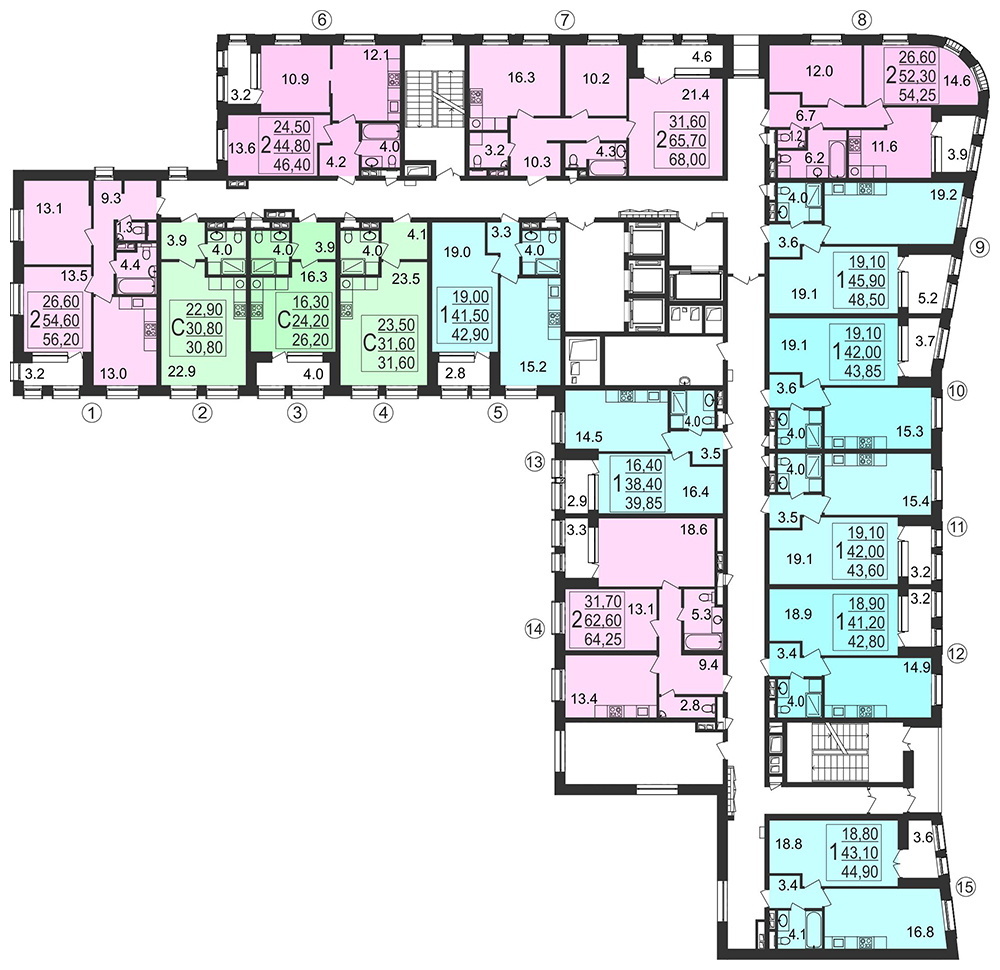
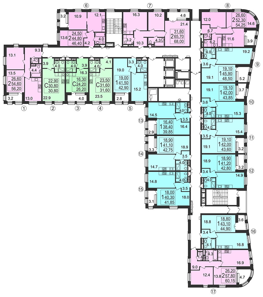
Всего в ЖК «Норд» представлено 163 апартамента, площади начинаются от 26 кв. метров. Большая часть недвижимости — студии, одно- и двухкомнатные квартиры. Несколько линейных трехкомнатных квартир располагается в верхних этажах здания.
Вариантов планировок немного, хотя имеется заметный разброс по площадям в пределах одного типа. Можно подобрать двухкомнатные апартаменты с выходом на две стороны света. Общее — большие, до 6.2 кв.м, лоджии, габаритные кухни, удобной формы комнаты, в некоторых квартирах — увеличенные холлы-прихожие.
Реализуется жилье без внутренней отделки, имеется возможность объединения соседних апартаментов — несущими в здании являются только наружные стены.
К минусам проекта можно отнести большое, до пятнадцати, количество квартир на этаже, так что речи о повышенной приватности здесь идти не может.
Ознакомиться с планировочными решениями можно на официальном сайте апарт-комплекса.
Инфраструктура
Микрорайон, где ведется строительство, прекрасно обустроен для жизни — в ближайшей доступности работают детские, спортивные и медицинские учреждения, торговые центры и развлекательные заведения.
В самом же комплексе «Норд» под инфраструктурные объекты отведено отдельное одноэтажное здание — оно отделяет основной корпус от дороги. Там откроются различные магазины и продуктовый супермаркет, салон красоты, зал для фитнеса, аптека, офисы сервисных служб.
По периметру участка оборудуются наземные парковочные места. Кроме этого, есть возможность размещения автомобилей в двух расположенных неподалеку паркингах.
Документация:
Инфраструктура
Как добраться:
- метро Алтуфьево, 3.8 км.: от ст. м. на общ. транспорте: Автобус № 867. до ост. «21-й километр» около 31 мин.;
- метро Бибирево, 5.6 км.: от ст. м. на общ. транспорте: до ст. «Алтуфьево» около 6 мин.; Автобус № 836. до ост. «Северный - 9-й микрорайон» около 26 мин.;
Новости Комплекс апартаментов "Nord" (Норд)
Юрий Кочетков: Статистика ДДУ - ПИК отрывается от преследователей
С некоторым запозданием Росреестр опубликовал свои данные по самому «продаваемому» месяцу – апрелю. И если вторичный рынок несколько сбавил обороты по сравнению с 2016 годом, то на первичном рынке Москвы вновь превышена отметка в пять тысяч договоров долевого участия – 5147 ДДУ зарегистрировало это ведомство в апреле. Лидером же по продажам ныне является ГК ПИК.
Продажи квартир в новом жилом комплексе «Nord» будет вести компания «НДВ-Недвижимость»
В северо-восточной части Москвы в текущем году начнется строительство нового жилого комплекса «Nord». Реализацией жилья в новостройке займется компания «НДВ-Недвижимость», которая подписала с застройщиком эксклюзивный договор.

Комплекс апартаментов "Басманный, 5"
Басманный, вл. 13, Комсомольская (0.7 км) , Красные ворота (0.6 км)

Стартовая площадка ул. Долгопрудная, 7
Дмитровский, ул. Долгопрудная, 7, Алтуфьево (3 км) , Лианозово (0.8 км)

Дмитровский, ул. Софьи Ковалевской, вл.20, Алтуфьево (3.4 км) , Селигерская (2.4 км) , Лианозово (1.3 км)

Дмитровский, ул. 800-летия Москвы, Владыкино (5.5 км) , Речной вокзал (4.5 км) , Селигерская (1.6 км)

— Новостройки Москвы. Итоги первого полугодия -2025
По последним данным, в первом полугодии текущего года столичные девелоперы начали реализацию 17 проектов жилой застройки.

— Рассрочка вместо ипотеки – решение проблем?
По данным Росреестра, в декабре прошлого года произошло практически полное восстановление уровня продаж на рынке столичных новостроек.

— Недвижимость Москвы – 2024. Итоги года
Прошедший год выдался очень насыщенным и неоднозначным для рынка столичной недвижимости. Начало января – пора подведения итогов и обозначения возможных будущих трендов рынка.

— Можно ли в России купить квартиру в лизинг
Программа льготной ипотеки помогла огромному количеству россиян приобрести собственное жилье. Однако данный инструмент доступен далеко не всем, а альтернатив на рынке практически нет. Одной из немногих является покупка квартиры в лизинг.

— Как купить квартиру в доме по программе реновации
Дома, построенные в рамках реновации, интересуют не только «переселенцев», но и потенциальных покупателей. Ведь они часто возводятся в районах с хорошей транспортной доступностью и сложившейся инфраструктурой. Как купить квартиру в доме по реновации?

— Марьина Роща - самая дорогая недвижимость в СВАО
Марьина Роща — самый южный район СВАО. Его граница на востоке проходит по железнодорожным путям Рижского направления и по Проспекту Мира, на юге — по оси Сущевского вала, улиц Советской Армии, Достоевского и Перунова переулка, на западе – вдоль Тихвинской улицы, ТТК, железнодорожных путей Савеловского направления и Складочной улицы, на севере — по промзоне Огородный проезд.








Отзывы покупателей о новостройке Комплекс апартаментов "Nord" (Норд)
Валентин Цыгоров
Плюсы:
В принципе, довольно удобное для меня расположение и привлекают невысокие пока цены. Планировки неплохие, по застройщику ничего явно отрицательного не нашел. Но! дом на дороге, т.е жизнь с закрытыми окнами в режиме 24/7. Статус - апартаменты, т.е. коммуналка будет выше намного и регистрацию не оформишь.Во всяком случае в обозримом будущем. А присматриваю для себя, а не для аренды. В общем, плюсов больше или минусов, пока неясно.
Минусы:
См. выше
Алекс
Плюсы:
Интересный жилой комплекс во всех отношениях. Нравится и транспортная развязка и насыщенная инфраструктура. Немного смущает шум дорог, потому что дом стоит прямо на первой линии. Понятно, что весь смог и пыль будет в окна лететь, но я с этим смирился, потому что есть и свои плюсы. рядом парк отдыха и зеленые насаждения. Там можно прогуляться и восстановить душевное равновесие. Приобрели жилье, с таким расчетом, чтобы комнаты выходили на две стороны света. Обеспечили себя большим потоком солнечного света и великолепной просматриваемостью из окон.
Минусы:
См. выше
Женя
Плюсы:
Северо-восточный округ столица для меня привычный и родной. В скором времени ожидаю переезда на новое место обитание. В “Норде” купил апартаменты. Привлекла недвижимость своей ценой, удачным расположением и комфортным жильем. Очень дорого смотрится ресепшн и зал ожидания. Не во всех домах такое имеется, а здесь все цивильно и благородно. Квартиры полностью остеклены, стоят французские балконы с кованым ограждением. Инфраструктура радует, есть школы, детские сады и магазины. Жена очень рада большой площади апартаментов, обустроит гардеробную и мастерскую в одной части и грамотно распределит зону отдыха и комнату для гостей. Она у меня дизайнер, все сама создаст.
Минусы:
нет