II. Архитектура и планировочные решения
I. Локация
Транспортная доступность.
Участок, на котором расположен будущий квартал «Символ», имеет форму неправильного треугольника. С юга территория комплекса ограничена шоссе Энтузиастов, с запада — улицей Золоторожский вал, с востока — проездом завода Серп и Молот, с юга-востока — железнодорожной веткой Курского направления.
.jpg)
План ЖК Символ
Микрорайон делится практически на 2 равные части Третьим Транспортным Кольцом — эти части соединят мостом и парковой зоной. Вторая главная вылетная трасса — Шоссе Энтузиастов, которое после проведения реконструкции и возведения новых эстакад в значительной мере улучшило свою пропускную способность. Все необходимые развязки и на ТТК, и на Шоссе Энтузиастов уже есть. Осталось лишь в скором времени организовать развязку у юго-западной оконечности микрорайона, которая позволит двигаться при выезде с Золоторожского вала на Шоссе Энтузиастов не только в центр, но и в сторону МКАД. Поблизости достраивается и Северо-Восточная хорда, которая соединит юго-восток с севером Москвы. До Садового кольца здесь меньше 3 км.

Подъезды к стройке
Путь до ближайших станций метро «Площадь Ильича» и «Римская» займет у жителей будущего комплекса (в зависимости от локации дома) от 5 до 15 минут. Пока приходится пользоваться подземным переходом под платформой «Серп и Молот», но в будущем от метро к границе комплекса протянется наземный переход. За 15 минут жители восточной части микрорайона могут дойти и до станции метро «Авиамоторная». От железнодорожной платформы «Серп и Молот» в непосредственной близости от юго-восточной окраины территории можно доехать до Курского вокзала за 5 минут.
Экология
На первый взгляд, об особо благоприятной экологии говорить пока сложно — вблизи проходят крупные магистрали, комплекс строится в рамках программы реновации промышленной зоны «Серп и Молот». Но дело за будущим.
Почва на территории уже рекультивирована. В основном, корпуса бывшего завода будут снесены, за редкими исключениями — какие-то, например, отгородят ЖК от магистралей. Вдоль ТТК установят шумозащитные экраны. Часть предприятий к югу от комплекса, по другую сторону Шоссе Энтузиастов еще работают, но в большинстстве своем это объекты не вредного плана — вроде вагоноремонтного завода.

Окрестности жилого комплекса
Со временем окружающая картина будет все больше видоизменяться, по соседству строится еще ряд ЖК. В итоге здесь сложится новый перспективный кластер. В силу особенностей локации, вокруг пока не особо зелено, хотя неподалеку от северной части территории находится небольшой «Парк Казачьей славы», крупный же зеленый оазис на Яузе — Лефортовский парк находится в паре километров от ЖК.
Мнение редакции. Локацию можно назвать отличной как в плане близости к ЦАО и историческим местам, так и в плане транспортной доступности (особенно шаговой близости метро, чем могут похвастаться далеко не все новостройки). Производственные цеха и промышленные объекты в данном случае — это скорее то, что будет влиять, прежде всего, на визуальные характеристики, но наличие двух крупных трасс «под боком» все-таки дает некоторое негативное воздействие.
Оценка: .jpg)
II. Архитектура и планировочные решения
Особенности планировки и зонирования
На территории 60 Га будут возведены 30 корпусов переменной высотности от 5 до 30 этажей. Микрорайон рассчитан на 19 тыс. человек.

Так будет выглядеть квартал по окончании строительства
Пока продажи идут в двух кварталах «Свобода» и «Достоинство», входящих в первую очередь строительства, которая сдается в 2019 г. В состав квартала «Достоинство», расположенного в юго-западной части микрорайона, с внутренней стороны ТТК, входят 4 корпуса от 8 до 13 этажей. Первый из корпусов будет введен в эксплуатацию досрочно, в 2018 г.

Так сейчас выглядит участок застройки
Жилой квартал «Свобода» площадью 60 тыс. кв. м находится в восточной части микрорайона, с внешней стороны ТТК. Здесь возводят 5 корпусов от 5 до 27 этажей.
Во вторую и третью очередь строительства войдут еще 3 квартала, но их названия пока не определены. Сроки реализации второй очереди, включающей 10 корпусов — с 2018 по 2021 г. В третью, последнюю очередь, войдут 5 корпусов максимальной высотности - до 30 этажей. Весь проект будет реализован к 2024-2025 г.
Высота корпусов увеличивается по мере «отхода» жилых зданий от шоссе Энтузиастов — от юга к северу. Это не только будет давать интересный визуальный эффект, но и создаст улучшенное освещение в квартирах.
Каждый из корпусов образует свой внутренний двор, который будет огорожен и охраняем. Под зданиями располагается подземный паркинг. Коэффициент соотношения количества квартир и машиномест — 1:0,7. В ЖК реализуется концепция «двор без машин» — открытые автостоянки будут организованы по периметру домов. Запланирован и наземный паркинг на 154 машиноместа.

Будущий паркинг
40% территории будет отведено под зеленые пространства, что компенсирует отсутствие последних в непосредственном окружении. В «Символе» разобьют парк протяженностью 2 км, который пройдет «зеленой рекой» через всю территорию, в том числе и над Лефортовским тоннелем на ТТК. По парку проложат пешеходные и велодорожки, обустроят площадки для воркаута, ролледромы и скейтпарки, установят летние кафе. Первый участок парка, площадью около 3 га, будет обустроен в квартале «Свобода» — к 2019 г. Сейчас активно ведутся подготовительные работы.

Подготовка к обустройству внутреннего парка
На территории будет организована и собственная дорожно-транспортная сеть протяженностью более 4 км. Это и автомобильная дорога, охватывающая обе части микрорайона, и двухполосная дорога с остановками общественного транспорта, по которой пройдут автобусные маршруты. Это поможет и улучшить обстановку на прилегающих трассах, и облегчить передвижение жителей ЖК, не любящих пеших перемещений.
Въехать в микрорайон можно будет со всех сторон - предусмотрено 11 въездов и выездов.
Домостроения
Общую архитектурную концепцию «Символа» разрабатывали британские бюро LDA DESIGN и UHA LONDON, а проектирование первой очереди выполнялось силами московских мастерских «АТРИУМ» и «МОСПРОЕКТ-1».

Один из почти готовых корпусов
Каждый жилой корпус строится по индивидуальному проекту. Стилевое единство создается «бионическими» формами зданий, со множеством закругленностей, плавными линиями фасадов и визуальным отсутствием острых углов. Среди отличительных архитектурных особенностей — большая площадь остекления. Высота окон составляет 2,2 м, а ширина от 2,5 до 3,5 м.
.jpg)
Остекление фасадов
Жилые здания возводятся по монолитно-кирпичной технологии. В облицовке используются навесные вентилируемые фасады из стеклофибробетона и алюминиевых композитных панелей, на нижнем уровне могут применяться гранит или кирпич, а также элементы из натурального камня. В квартале «Свобода» для внешней отделки будет применяться клинкерная плитка, а в квартале «Достоинство» — стемалит (закаленное затемненное стекло), придающий зданиям иллюзорный эффект сплошного остекления.
Входные группы с 5-метровыми потолками будут иметь индивидуальную дизайнерскую отделку с использованием керамогранитной плитки и декоративных элементов «под дерево». В секциях организуют стойки для консьержей, напоминающие ресепшн в гостиницах, обустроят зоны ожидания с диванами и с санузлами. В подъездах установят от 2 до 3 лифтов фирмы KONE.

Лифтовые группы
Домостроения обеспечены индивидуальной системой кондиционирования — на фасадах будут размещены специальные блоки для кондиционеров. Разводка отопления — горизонтальная.
В общественных зонах можно увидеть необычные детали, например, сияющий мусоропровод из нержавеющей стали или шкафчики хозяйственного, пожарного и прочего назначения, где роль двери выполняют рольставни в единой со стенами холла цветовой гамме. В цоколе оборудованы кладовые помещения площадью от 6 до 13 кв. м.

Оригинальный мусоропровод
Квартиры
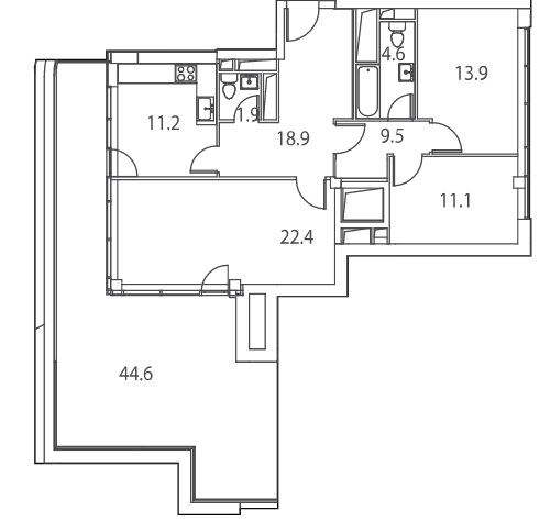
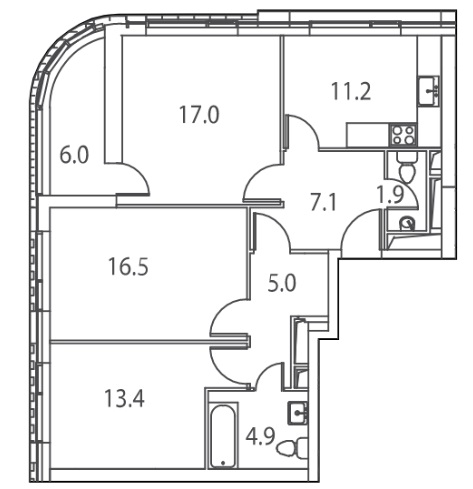
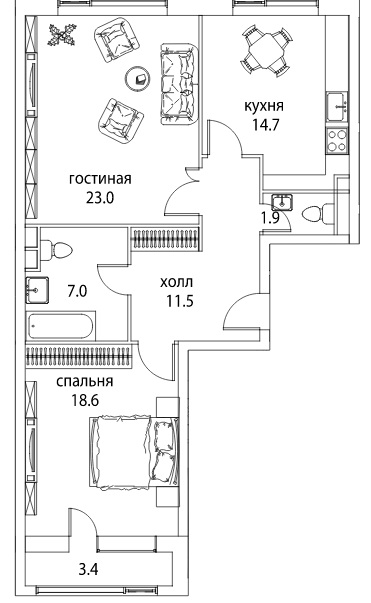
«Нарезка» сравнительно крупная. Площадь студий варьируется от 27 до 33 кв. м, однокомнатных квартир от 36 до 50 кв. м, двухкомнатных от 57 до 80 кв. м, трехкомнатных от 65 до 100 кв. м, четырехкомнатных от 100 до 140 кв. м. Высота потолков от 3,2 до 3,6 м.
.jpg)
Будущие квартиры
Большинство квартир оборудованы лоджиями с остеклением, во многих имеются эркеры. Наличие лоджий не зависит от площади, здесь могут быть студии с лоджиями и квартиры больших площадей без них.

Студия с лоджией
Во всех квартирах, кроме студий и однушек, предусмотрено по 2 санузла. Изюминка многих квартир — панорамные угловые закругленные окна. Жилье оборудовано системой приточно-вытяжной вентиляции.

Вентиляция
Квартиры сдаются со свободной планировкой, с трассировкой в мокрых зонах, и без отделки. Впоследствии можно будет заказать отделку у застройщика, но это возможно только после получения ключей. В шоу-руме в офисе продаж можно ознакомиться с тем, как можно рационально спланировать пространство и оформить его.
В жилье устанавливается капитальная металлическая дизайнерская дверь, радиаторы с терморегулторами и счетчики не только на воду и электричество, но и на отопление.

Жилой этаж
Высокие потолки и тяготение к «квадратной» форме помещений дает жилью дополнительный объем. Планировки отличаются разнообразием, например, здесь есть как квартиры европланировок, так и традиционные варианты.
Здесь есть интересные студии площади 32 м. Изюминка такой студии — в условно двустороннем обзоре. Жилая зона образует в районе окна и лоджии глубокий ромбовидный выступ, благодаря которому, располагается по отношению к лоджии под углом в 45 градусов. Наличие такого выступа с дополнительным источником света позволяет выделить эту зону в небольшое отдельное функциональное пространство.

Здесь можно встретить и интересные распашные однушк» — 43- метровое жилье, где можно обустроить достаточно просторный 11-метровый холл, 9-метровую кухню и 16-метровую спальню. В некоторых случаях такие квартиры оборудованы балконом.

Двухкомнатные квартиры есть как линейные, так и распашные. Привлекательно выглядит 79-метровая двушка в форме условной буквы «Г», где в верхней части можно разместить просторную гостино-кухонную 37-метровую зону или разделить эти 2 пространства, а в нижней — отделенной просторным холлом — большую спальную зону.
.jpg)
Еще более интересно выглядит 71-метровая двухкомнатная квартира схожего типа, но с угловыми закругленными окнами. Обзор уже получается практически трехсторонний, а обе комнаты обретают условно полукруглую форму.
.jpg)
Трехкомнатные квартиры евроформата могут быть как линейными, так и распашными. Линейность может отчасти компенсироваться, например, нестандартной формой лоджии.
.jpg)
Есть необычные варианты «евротрешек» площадью 90 кв.м. Несмотря на слово «евро», здесь 4 источника света — причем, 2 из них, в том числе и закругленное угловое окно приходятся на просторную кухонно-гостиную зону площадью 26 кв. м. Квартира имеет необычную конфигурацию — помещения концентрируются, вокруг холла, а одна из спален, оборудованная лоджией, располагается по отношению к остальному пространству под изломом.
Традиционная трешка площадью 81 кв. м имеет трехсторонний обзор. Здесь уже 5 источников света, включая закругленную 6-метровую лоджию.
.jpg)
В ЖК имеются и необычные четырехкомнатные квартиры евроформата площадью 91 кв.м. Жилье имеет форму правильного прямоугольника, что позволяет рационально распределить жилое пространство. Возможно, кухня-гостиная будет здесь и не самой большой, но сама планировка очень функциональна.
.jpg)
Интересна традиционная 120-метровая четырешка, имеющая условно трехсторонний обзор и закругления с обеих сторон. Благодаря симметричности квартиры, ее можно разделить тематически на спальную и гостино-кухонную зону с кабинетом.

Особый вид предложения — квартиры с террасами, расположенные на верхних этажах. Площадь террас может достигать от 24 до 150 кв. м, в жилье можно установить дровяной камин. Высота потолков достигает 3,6 м, а потому можно подумать даже и об антресольном уровне.
Интересно, например, выглядит трешка на 27 этаже площадью 99 кв. м с 44-метровой террасой, имеющей сложную изломанную форму дающей и огибающей кухню и гостиную. Это дает дополнительную широту обзора.

Имеется и уникальная 158-метровая четырешка с террасой площадью 144 кв. м, полностью огибающей квартиру.

В некоторых случаях возможно объединение квартир.
Виды с верхних этажей будут привлекательными с трех сторон. С запада (уже примерно с уровня 12 этажа) можно будет любоваться Яузой и Москва-Сити, с востока будут открываться виды на Измайловский Парк, с Севера — на Лефортовский парк. Виды на собственный парк комплекса тоже будут иметь свою привлекательность, и не только с верхних этажей.
Мнение редакции. Появление на территории большого собственного парка, компенсирующего отсутствие вокруг зелени и аккумулирующего внешние воздействия станет большим плюсом, точно так же как и собственная дорожная сеть, актуальная для столь масштабной территории. К плюсам домов можно отнести качественные материалы и оригинальные архитектурные решения, отличные от приевшихся кубов и параллелепипедов. Сильная сторона квартир - высокие потолки, большие окна и нестандартные планировки, к некоторым минусам можно отнести отсутствие в ряде жилья лоджий и наличие значительного количества квартир, «смотрящих» на одну сторону.
Оценка: .jpg)
III. Инфраструктура
В микрорайоне действует концепция «город в городе». Здесь предусмотрено 2 школы, рассчитанных в общей сложности на более 2,5 тыс. мест. Также обещают 8 детских садов на 1,5 тыс. воспитанников. Первые школа и детский сад появятся в квартале «Свобода» к окончанию 2018 г. Школа будет «не простой» — уже подписано соглашение с МГТУ имени Баумана, поэтому в заведении будут лицейские классы с углубленным изучением технических предметов. Вторая школа и детский сад появятся уже во второй очереди строительства.

Первые этажи зданий отводятся под инфраструктуру
Помимо отдельно стоящих зданий места под дошкольные учреждения выделены и на первых этажах корпусов — вероятно, такие детсады будут частными. В перечень социальной инфраструктуры включены детская и взрослая поликлиника, которые размесятся в историческом административном здании на территории бывшего завода — это строение будет реконструировано. В другом реконструированном здании — бывшего НИИ появится даже собственный Дом Музыки с концертным залом на 3700 мест и музыкальной школой.
На юго-западной окраине микрорайона ближе к окончанию строительства появится крупный ТРЦ с кинотеатром, магазинами и фитнес-центром с бассейном. Этот ТРЦ отгородит ЖК от железной дороги. Рядом с ним разместится административно-офисный центр. Офисные помещения в небольшом количестве будут представлены и в ТРЦ. Еще один небольшой функционирующий бизнес-центр «Интеграл» вплотную примыкает к территории с противоположного конца.

БЦ Интеграл
На первых нежилых этажах всех корпусов разместятся коммерческие помещения - аптеки, салоны красоты, детские секции, магазины, отделения банков, рестораны и кафе, сервисные службы. 95% коммерческой недвижимости в первой очереди уже распродано.
Несмотря на локацию на территории бывшей промзоны, ряд объектов развитой инфраструктуры старого района находится в пешей доступности. Это несколько неплохих школ, которые тоже могут вызвать интерес у жителей, например, школа №1288 с углубленным изучением английского языка или известный Московский химический лицей №1303. Для тех, кто готов возить детей на автомобиле или на общественном транспорте, в радиусе 2,5-5 км имеется школа №439 «Инженерный лицей Интеллект», лицей №1581, Московский культурологический лицей №1310, лицей №429 «Соколиная гора» и Французский Лицей имени Александра Дюма, частные школы «Эрудит» и «Новое образование».
Дополнительное образование в пешей доступности представлено частными музыкальной школой и вокальной студией. К изюминкам спортивной инфраструктуры в ближайших окрестностях можно отнести Теннисный клуб Best Point, спортивную школу олимпийского резерва и Дворец детского спорта, правда, все эти объекты отделены Шоссе Энтузиастов.
На небольшом удалении располагается несколько продуктовых магазинчиков, в том числе «Дикси», и «Суши-маркет», в 15-20 минутах ходьбы или в 5 минутах езды на автобусе — крупный ТРЦ «Город Лефортово» с «Ашаном», «Леруа Мерлен», «Спортмастером» и «Декатлоном». В районе станции метро находятся ТЦ «Гранд-Сити» и «Рогожка».
.jpg)
Магазины рядом с ЖК Символ
Мнение редакции. Инфраструктура ЖК более чем соответствует концепции «Город в городе», ведь помимо насущных объектов, она дополнена объектами культурного плана — вроде концертного зала и музыкальной школы. А собственная школа будет еще и продвинутой, что не такой уж частый момент в жилых комплексах. При этом столь богатая инфраструктура дополняется еще и развитой окружающей инфраструктурой ближайших окрестностей.
Оценка: .jpg)
IV. Условия инвестирования
Цена вопроса
Фактор ценообразования зависит не только от площади, но и от этажности, наличия или отсутствия лоджии, от видовых характеристик. В среднем с повышением этажности цена увеличивается на 400 тыс. руб. На верхних уровнях этот ценовой разрыв слегка уменьшается.
Цена отчасти зависит и от квартала — квартиры в «Достоинстве» стоят выше из-за малоэтажности и из-за психологического фактора большей близости к ЦАО. Например, если в «Достоинстве» за 10,3 млн. руб. можно приобрести двушку площадью 58 кв. м, то в «Свободе» за эту сумму доступно уже 66-метровое жилье.
Стоимость студий — от 5,4 до 6 млн. руб., однокомнатных квартир от 7 до 9,5 млн. руб., двухкомнатных от 10,3 до 15 млн. руб., трехкомнатных от 12,5 до 18 млн. руб., четырехкомнатных от 16,5 до 22 млн. Из этой ценовой линейки выпадает шестой корпус, который сдается на год раньше других. Здесь осталось ограниченное количество квартир, и цены на однушки стартуют уже от 10 млн. руб., на двушки от 15 млн. руб., на трешки от 18 млн. руб., на четырешки от 20 млн. руб.
Цена на квартиры с террасами на верхних этажах варьируется в пределах 29-40 млн. руб.
Стоимость кв. м в кладовых помещениях — 100 тыс. руб. Цена за место в подземном паркинге — от 1,5 до 2 млн. руб. Она зависит от площади места и расположения — места на минус втором этаже чуть дешевле. Места в наземном паркинге пока не выставлены в продажу.
Ежемесячная плата за обслуживание (учитывая закрытые и охраняемые дворы) составляет 65 руб./кв. м.
Условия покупки
При покупке квартир заключается ДДУ по ФЗ-214. Возможно ипотечное кредитование от разных крупных банков, со ставкой от 9,4% годовых. Срок кредитования до 30 лет. Беспроцентная рассрочка предоставляется компанией «ВТБ-Лизинг» на срок не более 2 лет, минимальный первоначальный взнос составляет 35%. Процентная рассрочка от самой компании «Донстрой» предоставляется на срок до 5 лет, минимальный первоначальный взнос — от 30%, ставка от 4% годовых.

Офис продаж
На ряд квартир до середины октября по акции предоставляется скидка в 10%.
Информация о застройщике
Компания «Донстрой» — один из пионеров рынка столичной недвижимости, в особом представлении не нуждается. Компания была основана в 1994 г. С этого момента компанией было возведено немало знаковых ЖК, ставших своего рода символами Москвы — «Алые паруса», «Воробьевы Горы», «Дом на Мосфильмовской», «Триумф-Палас». На настоящий момент в портфеле «Донстроя» свыше 8,4 млн. кв. м недвижимости. Это 30 построенных и строящихся жилых комплексов.
Среди сданных объектов компании новостройки класса De Luxe: BARRIN HOUSE и «Grand DeLuxe на Плющихе» в Хамовниках, «Кленовый DOM» на Пречистенской набережной и Smolensky De Luxe рядом с Арбатом, а также новостройки бизнес-класса ЖК «Соколиный форт» и ЖК «Лосиный остров». Премиальный класс представлен последними корпусами «Алых парусов» и ЖК «Долина Сетунь» на западе столицы.
Сейчас компания возводит премиальный ЖК «Суббота» у станции метро «Белорусская», ЖК бизнес-класса «Сердце столицы» на берегу Москва-реки рядом с Москва-Сити, а также объекты класса De Luxe – «Жизнь на Плющихе» и «Оливковый дом».
Мнение редакции. Цены в комплексе адекватны локации и бизнес-классу. Ближайшего соседа «Символа» — ЖК бизнес-класса «Золоторожский» от застройщика «Стимул» к сравнению не притянешь, так как это комплекс апартаментов.
Ближайший конкурент, находящийся по «соседству» — ЖК «Петр I» от ГК «ПИК», тоже относящийся к бизнес-классу, и расположенный несколько дальше от центра, ближе к станции метро «Авиамоторная». Это не такой масштабный проект, с застройкой массового характера — в состав входят пять 23-этажных корпусов, два из которых будут сданы примерно в одно время с первым корпусом «Символа». Цены здесь ниже, чем в ЖК «Символе». Цены на студии стартуют от 3,6 млн. руб., на однушки от 5,2 млн. руб., на двушки от 7,1 млн. руб., на трешки от 9,5 млн. руб.
Но помимо всего, площади квартир здесь меньше, чем в «Символе» — максимальный размер студии в «Петре 1» 27 кв.м соответствует минимальному ее размеру в «Символе», а разница между линейками двушек 47-62 и 57-80 кв. м соотвественно. Четырешек же в проекте ПИКа не предусмотрено.
Еще один относительный конкурент — ЖК бизнес-класса «Лефорт». Но этот комплекс, расположенной недалеко от границы Лефортово с районом Соколиная гора, находится не только на большем отдалении от центра, но и от метро — до ближайшей станции «Электрозаводская 1,5 км, а до «Авиамоторной» больше — 2, хотя в будущем в пешей доступности появится станция метро «Лефортово». «Лефорт» — не масштабный проект, здесь два 16-этажных корпуса. Архитектура домов и планировки квартир здесь тоже по-своему необычные. Нарезка квартир, за исключением четырешек, примерно соответствует линейке «Символа», как и цены в среднем, хотя «Лефорт» уже сдан.
А вот если рассматривать ближайших конкурентов в соседнем Таганском районе, к которому «Символ» расположен ближе, чем другие новостройки Лефортово, то цены там будут значительно выше. Так в готовом ЖК «Дом на Золоторожском валу» от «Лидер-Инвеста» цена на 51-метровую «однушку» стартуют от 14 млн. руб., а на 65-метровую «двушку» — от 18 млн.
Образ покупателя
«В основном, это уверенный средний класс и выше, — рассказывает менеджер отдела продаж компании «Донстрой» Светослав Сухачев. — Квартал «Свобода», где появятся первые объекты детской образовательной инфраструктуры, и где будет обустроен первый участок парковой зоны, больше привлекает семьи с детьми. В квартале «Достоинство» жилье тоже приобретается семьями с детьми, но есть здесь и отдельная категория покупателей, которым важна максимальная близость к метро и торгово-развлекательному центру. 80% покупателей — москвичи, многие из них проживают в районе Садового кольца. Есть варианты, когда родители (из Москвы или регионов) приобретают здесь с жилье для подрастающих и выросших детей».
V. Подведение итогов
Покупка жилья в ЖК «Символ» интересна тем, кто хочет жить вблизи от исторического центра и в пешей доступности от метро. А также тем, кому кажется интересным обитание в защищенном с точки зрения безопасности дворов микрорайоне, где все «под рукой»: школа, детский сад и кружки для детей, развлекательная и торговая составляющая, а, возможно и работа (если арендовать место в собственном офисном комплексе). При этом в отличие от подмосковных объектов с такой концепцией, в «Символе» отсутствует автономность — он интегрирован и в окружающую инфраструктуры.

Квартиры в ЖК могут представлять интерес и для тех эстетов, кому интересен необычный стиль зданий, важны высокие потолки и изюминки в виде полукруглых окон. А вот тем, кого не прельщает индустриальная романтика в виде труб в окрестностях и цехов по соседству, кто не готов жить в эпицентре преобразований, которые всегда сопровождаются суетностью, покупка жилья здесь вряд ли подходит. Приобретение квартиры в «Символе» — неплохой вариант и с точки зрения инвестиций.
Общая оценка Жилой квартал "Символ": 18.77 из 20.00
| Местоположение | ||
| Экология | 4 | 4.60 |
| Транспортная доступность на автомобиле | 5 | |
| Транспортная доступность на общественном транспорте | 5 | |
| Перспективы развития транспортной доступности | 5 | |
| Визуальные характеристики | 4 | |
| Архитектура и планировочные решения | ||
| Архитектура | 5 | 5.00 |
| Планировки квартир | 5 | |
| Инженерные системы | 5 | |
| Зонирование территории | 5 | |
| Организация парковки | 5 | |
| Инфраструктура | ||
| Заявленная | 5 | 5.00 |
| Ближайшая | 5 | |
| Кластера | 5 | |
| Условия инвестирования | ||
| Надежность застройщика | 4 | 4.67 |
| Цены | 5 | |
| Условия сделки | 5 | |
| Риски и недостатки проекта | ||
| Риск недоразвития собственной инфраструктуры | 0 | -0.50 |
| Риск проблем с парковкой | -1 | |
| Риск повышенной платы за обслуживание | -1 | |
| Риск заморозки проекта после первой или второй стадии | 0 | |











Комментировать
Комментариев 5
Олег —
А я б за визуал 5 твердую поставил. Нравится сочетание белого с темным, при этом панорамные окна не забыли – 2 в 1. Не выглядит как БЦшка какая-нибудь, но при этом и совковской архитектурой не несет, как в некоторых новостройках.
Анатолий —
Почитал статью, решил немного добавить о транспортной доступности. 27 марта полностью заработала Некрасовская линия метро. Также открылся примыкающий к ней участок Большой кольцевой линии (БКЛ), станции которого пока будут работать в составе розовой ветки. Всего открылось шесть станций: «Юго-Восточная», «Окская», «Стахановская», «Нижегородская», «Авиамоторная» и «Лефортово». На линии курсируют новейшие поезда «Москва».
Ольга —
10 га под парк это прямо круто, мне его ландшафтный дизайн нравится, проводим в нем практически каждые выходные, как закончим ремонт и переедем в ЖК, думаю, будем проводить там все вечера, потому что детей к нему так и манит)
Алина —
60 га это же реально целый микрорайон, очень круто, ещё и 10 га под парк заложены, в перспективе будет самое топовое место в Лефортово.
Миша —
Всем пример брать с донстроя, строять один в один с рендерами.