II. Архитектура и планировочные решения
I. Локация
Локация и транспортная доступность
ЖК "Поколение" строится между Сигнальным и Нововладыкинским проездами, на территории частично реконструированной промзоны. Фактически комплекс располагается на самой границе района «Отрадное» — пути МКЦ отделяют его от района Марфино.
В паре километров отсюда проходит и граница с Останкинским районом. Там сейчас идет активная застройка и преобразование бывших промышленных, складских и административных территорий, которое коснется и «Поколения».
Основные вылетные трассы – Алтуфьевское и Дмитровское шоссе, находящиеся практически на равном удалении от комплекса – отличаются в часы-пик достаточной загруженностью. Как, впрочем, и Сигнальный проезд, соединяющий эти трассы.

Сигнальный проезд
Будущее перераспределение транспортных потоков должно произойти за счет завершения строительства Северо-Восточной хорды, которая соединит север и юго-восток столицы, и Северо-Западной Хорды которой предстоит связать юго-запад с северо-востоком. Обе хорды пройдут как раз вдоль путей МКЦ и обеспечат соединение Алтуфьевского шоссе с Дмитровским.
Ситуация с общественным транспортом уже сейчас выглядит привлекательно: в 700 метрах от новостройки располагается станция метро «Владыкино» Серпуховско-Тимирязевской линии, а в будущем году в 250 м от комплекса построят новую станцию метро «Окружная» Люблинской линии. Обе станции входят в систему МКЦ, поэтому в пешей доступности от «Поколения» будут располагаться два крупных транспортно-пересадочных узла.
Экология
Экологическая ситуация здесь двоякая — непосредственно на участке строительства ранее находилась автобаза, остальные территории прилегающей промзоны занимают складские и прочие объекты «невредного» характера. Так что влиять это поначалу может только на видовые характеристики. В будущем промзона «Алтуфьевское шоссе», в пределах которой находится комплекс, будет переживать дальнейший редевелопмент, подразумевающий возведение новых жилых комплексов, офисных и торговых центров, а также общее благоустройство территории.
С одной стороны территории ЖК проходят пути МКЦ, с другой — железнодорожные пути. Особых проблем со стороны МКЦ нет — по нему ходят бесшумные поезда, а рельсовое покрытие меняется сейчас на прорезиненное. В любом случае застройщик обещает установить по периметру шумозащитные экраны.

Пути МКЦ
Само место, где строится комплекс, не назовешь пока особенно зеленым, хотя в ближайшем окружении имеются симпатичные дикие заросли с протекающей по ним Лихоборкой. В пешей доступности, за Алтуфьевским шоссе, находятся парк «Отрада» с той же рекой, а чуть подальше, в другой стороне — один из входов на территорию главного Ботанического сада.

Вход в парк Отрада
Мнение редакции. Экология и транспортное сообщение в данном случае тесно связаны. С одной стороны, дальнейшая реновация промзоны, что благотворно влияет на экологию. С другой, пути МКЦ, «железка», ТПУ, будущие хорды. Жилой комплекс оказывается в «эпицентре» всего этого, что может давать некоторый негатив и в экологическом плане, и в отношении потенциально больших потоков людей и транспорта. И, тем не менее, перспективы интересные.
Оценка: .jpg)
II. Архитектура и планировочные решения
Особенности планировки и зонирования
На территории 6,14 га будут возведены четыре многосекционных корпуса переменной высотности от 16 до 20 этажей.
.jpg)
Макет жилого комплекса
Первые два корпуса сдаются в Ш-IV квартале 2017 года, 3 и 4 корпус — в IV квартале 2018 г. В настоящий момент в продаже — первые два корпуса, один из них рассчитан на 307, второй — на 405 квартир. Каждый из корпусов оборудован собственным подземным паркингом на 97 и 140 машиномест соответственно.
Здания выполнены в форме условной буквы «Г», «образующей» дворовое пространство, свободное от машин. Здесь разместятся спортивные и детские площадки, запланирована и небольшая парковая зона.
.jpg)
С территории организуют два выезда — на Сигнальный и Нововладыкинский проезды. Комплекс будет оборудован многоуровневой системой безопасности, с доступом на территорию и в дома по магнитным пропускам.
Домостроения
Жилые здания возводятся по монолитно-каркасной технологии. Вентилируемые фасады облицовываются керамогранитом, с имитацией древесины и натурального камня. В отделке входных групп используются натуральный камень, дерево стекло и плитка Kerama Marazzi.

Будущие фасады
Все первые этажи будут нежилыми. В цоколе оборудуют небольшие кладовые помещения площадью до 5 кв. м.
Домостроения будут обеспечены индивидуальной системой кондиционирования — блоки для кондиционеров разместят на площадях общего пользования, а для квартир на верхних этажах — на крыше.

Идет стройка
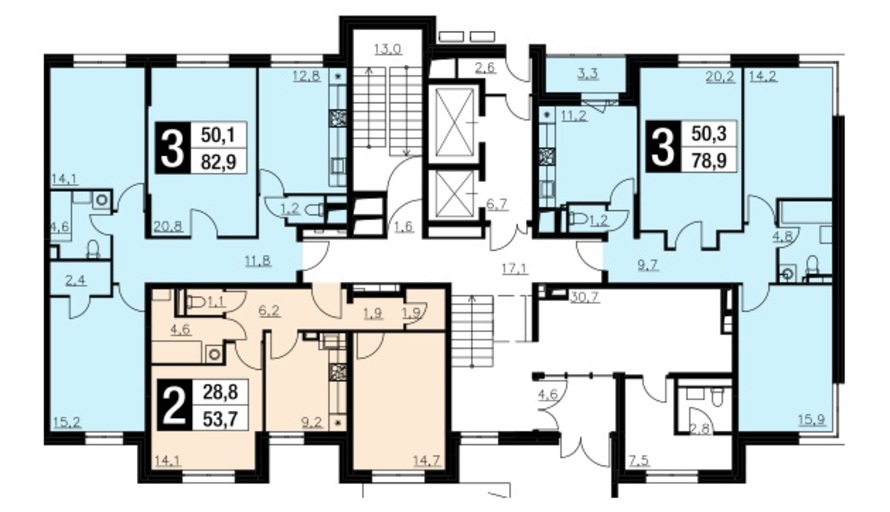
На каждом этаже располагается от 5 до 8 квартир. Объединения, в силу монолитных перегородок, не предполагается.
Квартиры
Площадь однокомнатных квартир составляет от 31 до 46 кв. м, двухкомнатых — от 42 до 66 кв. м, трехкомнатных — от 56 до 117 кв. м. Высота потолков в черновом состоянии — 3 метра. Все квартиры оборудованы лоджиями, за исключением жилья со второго по пятый этаж, где вместо лоджий фигурируют французские балкончики.
.jpg)
Будущие квартиры
Интересный вид предложения — квартиры с антресолью и сплошным панорамным остеклением на последних этажах. Площадь двухуровневых «однушек» — от 45 до 59,5 кв. м, двухуровневых «двушек» — 88-92,6 кв. м, двухуровневых «трешек» — 103-117 кв. м. Высота потолка здесь составляет уже 5,7 м. Площадь антресоли в «однушках» может достигать 12,6 кв. м, а в «трешках» уже 22-25 кв. м. Если отказаться от второго света и «продлить» антресоль, можно оборудовать полноценную дополнительную комнату.
Планировки отличаются разнообразием — всего их насчитывается около 40 видов. Например, среди «двушек» есть линейные и распашные варианты. Трехкомнатные квартиры могут иметь обзор как на две, так и на три стороны света — такие виды квартир присутствуют в торцевых комнатах. Встречаются и «распашные» однокомнатные квартиры.
Предлагается жилье и европланировок: небольшие «евродвушки» площадью 44,2 кв. м. с большой угловой лоджией, охватывающей кухонно-гостиную и спальную зоны. «Евротрешки» площадью 57-59 кв. м можно теоретически превратить в «обычные», так как здесь имеется четыре оконных (включая лоджию) проема. Но площадь жилых помещений в этом случае будет минимальной.
Основная часть жилья на сегодняшний момент сдается со свободной планировкой, но есть и варианты «готовых планировок». Речь о квартирах с отделкой, под которые целиком отводятся вторая и третья секция второго корпуса.
Планировка трехкомнатных квартир здесь тяготеет к традиционному варианту: большая гостиная, достаточно просторная кухня и спальни примерно одинаковых площадей. В «трешке» площадью 78 кв. м. под гостиную отводится 20 кв.м, под спальни — 14 и 15 кв. м., а под кухню — 11,8 кв. м. Подобные «пропорции» поддерживаются и в распашных двухкомнатных квартирах. Например, в 66-метровой на гостиную отводится 21,6 кв. м, на спальню — 18,2 кв. м, а на кухню — 11 квадратов.
В линейных же «двушках» гостиная и спальня могут сравняться по площади — в 53-метровой квартире на каждое из жилых помещений отводится лишь по 14 с небольшим кв. м., а на кухню — 9. «Однушки» отличаются средним размером комнат — от 14 до 17 кв. м. и 8-10 метровым кухнями.
Квартиры с отделкой запланированы и в корпусах следующих очередей, всего под них планируется отвести 30% от общего объема.
В ЖК «Поколение» есть два базовых варианта отделки — «Пломбир» и «Эскимо», с которыми можно ознакомиться пока только по каталогу. Оба выполняются в нейтральных тонах, на полах — ламинат, стены — под обои, кухни и санузлы облицовываются плиткой Kerama Marazzi. В жилье устанавливаются межкомнатные двери Bravo и вся сантехника фирмы Cersanit.
Многие квартиры будут иметь обзор на Останкинскую башню, ряд жилья на верхних этажах – на Ботанический сад или парк «Отрада».
.jpg)
Виды ЖК Поколение
Мнение редакции. Большой выбор планировок, с возможностью дальнейших вариаций подкупает. Здесь нет «креатива» в виде комнат неправильных форм, все довольно традиционно. В жилом комплексе собраны воедино несколько становящихся популярными сейчас на рынке недвижимости (по отдельности) моментов — выведение отдельных секций под отделку, двухуровневые квартиры, помещения в цокольном этаже.
А вот соотношение мест в подземном паркинге с количеством квартир не совсем удачно.
Оценка: .jpg)
III. Инфраструктура
В ЖК «Поколение» запланированы школа на 350 мест и детский сад на 150 мест, появятся они во второй очереди. Первые нежилые этажи домов отводятся под объекты коммерческой недвижимости — в частности, уже заявлен супермаркет.
.jpg)
В комплексе запланирована своя инфраструктура
Инфраструктура районов, на границе которых находится комплекс, хорошо развита. Правда, в силу особенностей локации ЖК, многие объекты социальной инфраструктуры отделены либо шоссе, либо железнодорожными путями.
.jpg)
В 15-20 минутах ходьбы находятся сильные школы №1494 и №1794 с углубленным изучением отдельных предметов. В районе парка «Отрада» базируется частная школа-пансион «Пенаты». На общественном транспорте или автомобиле можно ездить в неплохие гимназии района Отрадное, расположенные по другую сторону Алтуфьевского шоссе.
Основная часть торговых центров сосредоточена в районе Алтуфьевского и Дмитровского шоссе — это «Метромолл», «Ашан», ТРЦ «Алтуфьевский», крупный детский ТЦ «Лучик».
В окрестностях действует несколько спортивных клубов и фитнес-центров, секции рукопашного боя и карате. К фишкам спортивной инфраструктуры можно отнести Парапланерный клуб в районе платформы «Окружная», клуб военно-исторической реконструкции «Белый Барс», а также ФОК в районе парка «Отрада».
Вблизи от комплекса находится красивый Храм Рождества Богородицы.

Храм рядом с жилым комплексом
Мнение редакции. Наличие собственной школы и детского сада на территории — неплохое решение для тех, кто хочет, чтобы дети посещали заведения «у дома». Альтернатива в виде учебных заведений в окрестностях — неплохая, выбор, во всяком случае, имеется.
Оценка: .jpg)
IV. Условия инвестирования
Цена вопроса
Стоимость квартир зависит от площади и наличия отделки. Разница в стоимости однокомнатных квартир без отделки и с отделкой составляет 5-6,7 и 5,4-7 млн руб. соответственно, двухкомнатных 8,1-9,2 и 6,7-10,1 млн руб., трехкомнатных 8,3-12 и 11,9-12 млн руб. Разница в цене получается очень незначительной, предложение можно считать выгодным.
Приобретение двухуровневой квартиры обойдется в сумму от 8 до 15,8 млн руб. Стоимость машиноместа в паркинге — от 1,5 до 1,6 млн руб.
Кладовые помещения пока не поступили в продажу.
Условия покупки
При покупке квартир заключается ДДУ по ФЗ-214. Возможно ипотечное кредитование с господдержкой со ставкой 8% годовых в первый год и с 11,7% годовых в последующие. Срок кредитования — до 30 лет, первоначальный взнос — 20%.
Существуют и варианты рассрочек. Беспроцентная рассрочка предоставляется на год, первоначальный взнос — от 50 до 70%. «Платная рассрочка» предоставляется на тот же срок, сумма первоначального взноса составляет в этом случае 30%, а ежемесячная ставка — 2%.
Информация о застройщике
Финансово-строительная компания «Лидер» — многопрофильная девелоперская компания, уже более 10 лет специализирующаяся на реализации проектов в сфере жилой недвижимости: от комплексной застройки районов до строительства жилых домов по индивидуальным проектам.
ЖК «Поколение» — второй проект компании в северной части столицы, в настоящее время на Дмитровском шоссе реализуется еще один интересный проект — ЖК «Дыхание». Застройщик использует собственное финансирование и управляет всем циклом работ от проектирования и строительства до реализации и последующего обслуживания объектов. Партнер по реализации объекта — компания «Метриум Групп».
Мнение редакции. Говоря о ценовой политике, логичнее сравнивать ЖК «Поколение» не с новостройками района Отрадное, которые к тому же все реализованы на первичном рынке, а с новостройками кластера. То есть с жилыми комплексами на приграничных территориях районов Марфино и Останкинский.
Цены в ЖК «Поколение» существенно выше, чем в двух строящихся сейчас в Марфино объектах — «Восток» и «Cleverland», но оба проекта имеют статус апарт-комплексов. Если же сравнивать с ближайшими соседями в Останкинском районе — ЖК «Березовая аллея» и «Грин парк», то цены на квартиры без отделки сопоставимы со средним показателем по этим объектам, а в отдельных «линейках» предложений могут быть и ниже. Хочется отметить и довольно выгодные условия рассрочек.
Образ покупателя
«В основном это семейные люди, а также молодые люди в возрасте от 25 лет, — рассказывает консультант департамента элитной недвижимости компании «Метриум Групп» Станислав Антощук. — Значительная часть покупателей — жители этого и близлежащих районов, которые хотят улучшить свои жилищные условия».
V. Подведение итогов
Покупка квартиры в ЖК «Поколение» может быть интересна по ряду причин. Во-первых, это единственная строящийся сейчас ЖК в районе «Отрадное», тем более ЖК такого уровня. Когда будут строиться следующие — еще неизвестно, поэтому для поклонников района — это интересный вариант. Для семей с детьми важным может стать фактор наличия детского сада и школы под боком, а также сильных школ в окрестностях. Возможность приобрести жилье с отделкой по цене, не сильно превышающей стоимость аналогичного лота без отделки, может привлечь достаточно широкую аудиторию. Да и локация в пешей доступности от двух станций метро разных линий — не такой уж распространенный вариант для московских окраинных обжитых районов.
.jpg)
Важна и перспектива. Развитие транспортной доступности, реновация промзон, строительство новых бизнес- центров, превратит окружающую местность в новую развитую территорию с новым обликом и новыми возможностями. Жилье здесь подходит для тех, кто не боится оказаться в эпицентре мощных преобразований, которые поначалу всегда сопровождаются некоторыми неудобствами, и кому не мешает «шум жизни».
Понятие «перспектива» актуально и по отношению к инвестициям в плане аренды.
Общая оценка ЖК "Поколение": 18.62 из 20.00
| Местоположение | ||
| Экология | 4 | 4.40 |
| Транспортная доступность на автомобиле | 4 | |
| Транспортная доступность на общественном транспорте | 5 | |
| Перспективы развития транспортной доступности | 5 | |
| Визуальные характеристики | 4 | |
| Архитектура и планировочные решения | ||
| Архитектура | 5 | 4.80 |
| Планировки квартир | 5 | |
| Инженерные системы | 5 | |
| Зонирование территории | 5 | |
| Организация парковки | 4 | |
| Инфраструктура | ||
| Ближайшая | 5 | 5.00 |
| Кластера | 5 | |
| Заявленная | 5 | |
| Условия инвестирования | ||
| Надежность застройщика | 5 | 4.67 |
| Цены | 4 | |
| Условия сделки | 5 | |
| Риски и недостатки проекта | ||
| Риск заморозки проекта после первой или второй стадии | 0 | -0.25 |
| Риск недоразвития собственной инфраструктуры | 0 | |
| Риск проблем с парковкой | -1 | |
| Риск повышенной платы за обслуживание | 0 | |







Комментировать
Комментариев 1
zuchodrig —
Нет такой аббревиатуры "МКЦ". Кроме того, пути МЦК (МК МЖД)- это тоже железнодорожные пути, и кроме двух чисто пассажирских путей там есть третий путь, по которому иногда будут ездить товарняки. Про "рельсовое покрытие меняется сейчас на прорезиненное." - что это вообще такое? Чего это оно вдруг меняется через год после полной реконструкции кольца?