II. Архитектура и планировочные решения
I. Локация
ЖК "Воробьев Дом", точнее многофункциональный комплекс согласно проектной декларации, расположен внутри «зеленой зоны» реки Сетунь. Через дорогу, на набережной реки Москвы, закрытая территория гостевых домов в ведении ФСО, перетекающая в природный заказник "Воробьевы Горы".
Подъехать к ЖК можно только по Воробьевскому шоссе, на которое заезжаем с улицы Косыгина или Мосфильмовской, а так же с Третьего транспортного кольца. Проезд по Бережковской набережной обычно сильно затруднен пробками, поэтому ближайшая станция метро "Киевская", расположенная в нескольких автобусных остановках, часто бывает не так уж доступна.
Зато для пешеходных прогулок и спортивных занятий - место идеальное: можно спуститься на благоустронную набережную и прогуляться по экотропам Воробьевых гор или свернуть по метромосту в Лужники. Далее по маршруту Нескучный сад, Парк Горького, Музеон. Недалеко от ЖК огромная парковая территория МГУ и совсем рядом обустроенная пойма реки Сетунь.
II. Архитектура и планировочные решения
Особенности планировки и зонирования
"Воробьев Дом" представляет собой комплекс из трех зданий переменной высотности (5-13-16 этажей) с досуговым центром для детей и паркингом на 285 мест. Здания формируют пространство внутреннего двора, открытого в сторону долины реки Сетунь.
.jpg)
Запланировано благоустройство территории и создание отдельного выезда на Воробьевское шоссе. Архитектурное решение разработано бюро ADM: панорамные витражи, сочетание клинкерного кирпича, натурального камня и керамических панелей с текстурой дерева. Уловить стильное настроение авторов проекта можно на примере уже построенных ЖК "Берзарина, 12" и "Станиславского, 11", бизнес-квартала Bank Side.
.jpg)
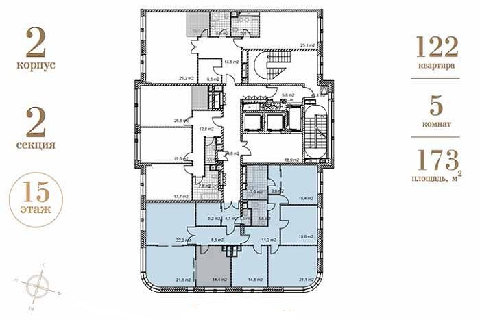
Площади квартир и пентхаусов c открытыми верандами варьируются от 50 до 250 кв. м.
| Ряд квартир обладает уникальными видами из окон на реку и достопримечательности города. В некоторых есть даже камин, например, 6-комнатная квартира метров на 200 в такой эколокации вполне сможет стать супераналогом загородного дома. Полезная площадь не тратится на лестницу, котельную и пр. При стоимости квадратного метра от 352 тыс. руб. это еще и очень выгодно, и никаких сложностей замкадной жизни. |
III. Инфраструктура
Помимо плюса прекрасных экологических характеристик ЖК и обилию мест для отдыха нужно озвучить и минус, если говорить о ближайшей инфраструктуре. Единственный продуктовый магазин, он же небольшой магазин шаговой доступности, находится на ул. Мосфильмовская, 2в. В супермаркеты, гипермаркеты и на рынки можно отправиться только на машине. Ресторанов всего два и на той же Мосфильмовской - "Bellagio" и "Тануки".
До школ и детских садов нужно добираться на транспорте: в радиусе 3-4 автобусных остановки расположены муниципальные школы №1214 с углубленным изучением английского языка, 1118, 74, лицей №1586 и частная школа "Наши традиции".
Зато с ВУЗами все в порядке: через дом от ЖК находится Всероссийская академия внешней торговли, на Мосфильмовской Институт международных экономических связей и, конечно, МГУ.
IV. Условия инвестирования
Цена вопроса
Срок завершения строительства МФК назначен на 1 квартал 2017 г. На сайте застройщика MR Group сообщается о стартовых ценах за квадратный метр от 351857 руб. и за квартиру от 20,9 млн. руб.
.jpg)
По данным базы квартир Cian.Ru серьезной выгоды по сравнению с ближайшими новостройками нет, за исключением ЖК "Режиссер" на ул. Пырьева - квартира на вторичке под ключ от 706 тыс. руб. за квадратный метр.
Знаково-скандальный "Дом на Мосфильмовской" от 270 тыс. руб. за м2.
Небоскребы "Воробьевы горы" в квартале посольств и политиков - квартира на вторичке под ключ от 375 тыс. руб./м2 и "Долина Сетунь" на Минской улице - от 412 тыс. руб./м2.
Апартаменты в "Штаб-квартире на Мосфильмовской" от 175 тыс. руб./м2.
В первой очереди продаж можно выбирать варианты только во 2 корпусе, в продаже 82 из 125 квартир на 16 этажах. Самые бюджетные предложения в ЖК "Воробьев дом" - 60 метровые двушки на 2 и 3 этажах в районе 20 млн. руб.
Лучшие смотровые квартиры ЖК "Воробьев дом" в сторону центра и Москвы реки расположены во 2 секции 2 корпуса. Из 3 пентхаусов на 175, 186 и 210 кв. м. - лучший смотровый тот, который самый маленький, зато в метраже 6-комнатной квартиры не учтена открытая прогулочная зона по всему периметру этажа.
.jpg)
Под ним с 15 этажа начинаются 5-комнатные квартиры чуть меньшей площади - без терасы и камина. Расчетная стоимость - от 60 млн. руб.
Для сравнения: квартира 110 м2 без отделки в давно обжитом ЖК "Воробьевы горы" на 33 этаже (из 38) выставлена за 67,2 млн. руб., а 98 м2 на 47 этаже (из 50) в "Доме на Мосфильмовской" предлагается за 56,6 млн. руб.
.jpg)
Застройщик
Девелопер проекта MR Group работает на российском рынке с 2003 года и входит в ТОП-10 крупнейших застройщиков России. В стадии реализации находятся такие крупные проекты как МФК "Водный" , ЖК "Фили Град" , МФК "Савеловский Сити" , комплекс апартаментов "Двинцев,14" . В 2015 году компания признана Девелопером года по версии премии "Рекорды рынка недвижимости".
Генеральный подрядчик строительства строительно-инжиниринговая компания "Анттек", входящая в состав турецкого холдинга Ant Yapi ("Ант Япы").
V. Подведение итогов
В 2015 году на рынок новостроек Москвы выведено рекордное количество объектов: практически под каждый разработан уникальный проект и на начальной стадии строительства предлагаются интересные, но часто сопоставимые, цены. Обязательно нужно рассмотреть как минимум 3-5 ЖК.
Большинство жилых комплексов расположено в околоцентральных районах города, в основном это территории реконструируемых промзон или же примыкающие к ним участки. В случае ЖК "Воробьев дом" несомненное преимущество - точечная застройка в сложившемся районе с прекрасными экологическими характеристиками.
С точки зрения ежедневной логистики Воробьевское шоссе не лучший вариант: т.к. заезд в ЖК возможен только с одной стороны и после любого похода в магазин, школу и т.п. на машине необходимо постоять на разворот в пробке. Конечно, есть и более загруженные улицы, но на них развита инфраструктура в пешей доступности. При этом локация "Воробьева дома" очень удобна для велосипедистов и бегунов.
По стоимости в районе Мосфильма несложно найти более выгодные альтернативы премиум-класса на вторичном рынке. Если же рассматривать излучину Москвы-реки, то на ее внешней стороне, помимо "Воробьева дома" на ул. Косыгина находится только один ЖК - клубный "Монолит" со средней стоимостью кв. метра около 2 млн. руб., в свободной продаже 45 квартир из 60. Возможно, для имиджевой квартиры это интересный вариант.
Общая оценка ЖК "Воробьёв Дом": 17.98 из 20.00
| Местоположение | ||
| Перспективы развития транспортной доступности | 4 | 4.40 |
| Визуальные характеристики | 5 | |
| Экология | 5 | |
| Транспортная доступность на автомобиле | 4 | |
| Транспортная доступность на общественном транспорте | 4 | |
| Архитектура и планировочные решения | ||
| Планировки квартир | 5 | 5.00 |
| Инженерные системы | 5 | |
| Зонирование территории | 5 | |
| Организация парковки | 5 | |
| Архитектура | 5 | |
| Инфраструктура | ||
| Кластера | 5 | 4.33 |
| Заявленная | 4 | |
| Ближайшая | 4 | |
| Условия инвестирования | ||
| Цены | 5 | 5.00 |
| Условия сделки | 5 | |
| Надежность застройщика | 5 | |
| Риски и недостатки проекта | ||
| Риск повышенной платы за обслуживание | -1 | -0.75 |
| Риск заморозки проекта после первой или второй стадии | 0 | |
| Риск недоразвития собственной инфраструктуры | -1 | |
| Риск проблем с парковкой | -1 | |
Комментировать
Комментариев 3
Гусаров Денис —
У Воробьева дома очень удачное расположение. Я не думал даже, что в таком интересном месте, в плане близости природы, смогут построить, но, когда увидел своими глазами, что они там уже несколько этажей возвели, то был под впечатлением. Сейчас выбираю себе варианты квартиры с видом на Сетунь. Очень приятно, что застройщики теперь стремяться строить дома вблизи какой-то зеленой зоны. Жить в таком живописном месте думаю будет очень приятно.
Марина Ткачева —
Отдельное спасибо за сводную таблицу с оценками. В принципе со всем согласна. Проект очень интересный и от надежных MR Group, в нынешней нестабильности стабильный девелопер это немаловажно)
hvaginn —
Спасибо вам за обзор. Я за проектом слежу с того момента, как начали котлован рыть. Жилье действительно престижное и качественное, и в районе оно по ценнику довольно таки адекватное. Что касается инфраструктуры, я катался по району, там есть где продуктами закупаться, есть куда сходить, и школ там значительно больше, чем в статье написано, как государственных, так и частных.