
Комплекс является победителем премии в области жилой городской недвижимости "Urban Awards-2012" в номинации "Лучший строящийся объект Москвы элит-класса".
II. Архитектура и планировочные решения
I. Локация
Транспортная доступность.
Комплекс Smolensky de Luxe находится в 3 минутах ходьбы от станции метро "Смоленская". Всего 350 м отделяет ЖК от выезда на Садовое кольцо и примерно столько же от выезда на Смоленскую набережную, по которой можно оперативно добраться до Кутузовского проспекта или ТТК.
Экология
Несмотря на близость Садового кольца, здесь очень тихо — здание отгорожено переулками и другими домами. Вокруг, в силу особенностей локации, не особенно зелено — ближайшие скверы и парки отделены расстоянием в 2,5-3 км. Зато за 5 минут можно дойти до Смоленской набережной.
Мнение редакции. Локацию можно назвать "козырной" во всех отношениях, а отсутствие вокруг зелени отчасти компенсируется близостью воды. Единственный минус - это некоторое продолжающееся уплотнение новостроя в ближайшем окружении.
Оценка: .jpg)
II. Архитектура и планировочные решения
Особенности планировки и зонирования
В составе комплекса, введенного в эксплуатацию в 2014 г., семиэтажное четырехсекционное здание общей площадью 33,9 тыс. кв. м. в форме буквы "П", образующее частично замкнутое небольшое огороженное дворовое пространство. Впрочем, двора здесь как такового нет — на вымощенной и огороженной кованым забором территории высажены хвойные растения. Вход на территорию, свободную от машин, осуществляется через контрольно-пропускной пункт.

Вход на территорию комплекса
Дом оборудован трехуровневым подземным паркингом. Количество парковочных мест по отношению к количеству апартаментов впечатляет — на 90 апартаментов приходится 401 машиноместа. Покупателей, приобретающих апартаменты без машиноместа — единицы.
Домостроение
Разработка проекта осуществлялась архитектурным бюро "Остоженка". Фасады монолитного здания целиком облицованы натуральным юрским камнем — из редкого месторождения в Германии, расположенного в округе Верхняя Бавария. Этот материал, образовавшийся в этих местах порядка 140-160 млн. лет назад, хранит на себе уникальные древние отпечатки времен. Впрочем, застройщик не остановился на достигнутом, а привнес сюда элементы тонкой художественной резьбы, которая удачно вписалась в природный материал.

Фасад ЖК Smolensky de Luxe
Первый этаж нежилой. Просторная входная группа оборудована панорамными стеклянными дверьми. В центральной части установлена стойка для консьержа, обустроена лаунж-зона с диванами и растениями.

Входная группа
Несмотря на то, что входная группа — централизованная, уже во внутреннем пространстве идет разделение по секциям. На каждую приходится 2 лифта фирмы Thyssen. Таким образом, между секциями нет сквозного сообщения.

Холл
Входная группа и общественные пространства оформлены по эксклюзивному авторскому дизайн-проекту. На зеркалах, колоннах во входной группе, на потолке лифтов, на стеклянных ограждениях балконов, повторяется затейливый кружевной орнамент, который присутствует и на фасаде.

Элементы отделки
В отделке общественных пространств используются тонированное стекло, металл, природный камень и древесина испанского эвкалипта. Во входной группе имеются концептуальные почтовые ящики.

Почтовые ящики
Апартаменты
В продаже к настоящему моменту имеется весьма ограниченное количество квартир. Оставшийся набор представлен однушками площадью от 81 до 96 кв. м, двушками площадью от 107 до 112 кв. м, трешками площадью 148-149 кв. м и одной 211-метровой четырешкой.
Высота потолков составляет от 3,4 до 4,4 м. Все апартаменты оборудованы либо небольшими открытыми балконами со стеклянными ограждениями, дополняемыми во многих случаях французскими балконами, либо террасами. Некоторые апартаменты располагают зимними садами. На верхнем этаже располагаются пентхаусы с панорамными террасами, но их уже не осталось в продаже. Везде предусмотрено по 2 санузла.
Все апартаменты располагают панорамными окнами высотой 3-3,5 м. В них используются стеклопакеты в дерево-алюминиевых рамах и немецкий профиль с внутренними рамами из ценной древесины меренги.
Окна оборудованы клапаном Aereco, который регулирует поток внешнего воздуха. Благодаря наличию такой системы у жителей отпадает необходимость в проветривании, при этом в полной мере сохраняются шумо- и теплоизоляционные свойства окна.
Большая часть апартаментов была сдана со свободной планировкой. Понятие комнатности здесь условное — многое зависит от количества окон и других факторов. Все однокомнатые апартаменты имеют обзор на одну сторону, но большие площади позволяют играть с пространством. Планировки в основном тяготеют к евроформату. Есть, например, 93-метровая однушка, которая, на самом деле, является по сути полноценной евродвушкой — благодаря просторному гостинно-кухонному пространству.
.jpg)
Или двухкомнатная линейная квартира площадью 112 кв. м, оборудованная просторными зимним садом и террасой, где тоже предполагается объединение гостиной и кухни. По сути, это большая евродвушка.
.jpg)
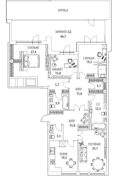
Есть и вариант распашной квартиры площадью 211 кв. м, оборудованной зимним садом и террасой.
.jpg)
В этом году компания произвела в 5 апартаментах дизайнерскую отделку и меблировку предметами итальянского производства. В продаже сейчас осталось 4 таких апартамента. Автор проекта – архитектор Борис Уборевич-Боровский. Эти варианты отличаются лаконичностью, простотой линий, нейтральными тонами. Впрочем, предусмотрено и то, что покупатель может запросто перекрасить стены по своему вкусу. В каждой из квартир с отделкой архитектор использовал какую-то фишку, которая уже была отмечена в его творчестве наградами — где-то это необычная лампа, а где-то креативная кухонная вытяжка. Есть и оригинальные придумки в виде, например, нестандартных ламп на стене над ванной.
Для разделения зон в проектах часто используются прозрачные перегородки из прочного стекла.

Стеклянные перегородки в квартире
Везде используется принцип объединения кухни с гостиной, но решается он по-разному. Например, в 149-метровой трешке эти два пространства частично разделены тонкой прозрачной перегородкой. Еще одна особенность этих апартаментов — наличие мастер-спальни с просторной гардеробной и собственным санузлом.
Такая же мастер-спальня имеется и в двушке площадью 112 кв. м. В этих апартаментах гостиная зона вынесена в холл и условно отделена от кухни. Хотя гостиная и остается без прямого источника света, освещение обеспечивается благодаря стеклянным дверям спальной зоны, граничащей с гостиной. То есть, по сути, двухкомнатная квартира превращается в полноценную трешку.
В каждом случае ищутся свои варианты планировочных пространства, например, в случае с практически идентичными однушками площадью 81 и 82 кв. м автор нашел для каждой свои решения. Например, в одних из апартаментов спальня углублена внутрь приватного пространства, а мастер-спальня в другой — находится в менее приватной зоне — она граничит с зоной гостиной и отделена от нее не стеклянными перегородками, а жалюзи.
Лучшие виды из окон (в независимости от этажа) открываются с фронтальной стороны, выходящей на восток – здесь имеется прямой вид на храм Святителя Николая на Щепах, относящийся к XVII веку, чья колокольня дублируется в отдалении силуэтом башни известного дома на Садовом кольце, в котором расположена станция метро "Смоленская".
С других сторон, если речь не о высоких этажах, могут открываться виды на жилую застройку Старой Москвы, правда, есть и виды на достраивающуюся вторую очередь торгового комплекса.
Мнение редакции. К некоторым минусам можно отнести отсутствие как таковой собственной территории. К плюсам — оригинальные архитектурные и дизайнерские решения, наличие уникального предложения квартир с отделкой. Сильная сторона квартир — высокие потолки и большие окна, к некоторым минусам ориентированность части апартаментов на одну сторону, при наличии большой площади.
Оценка: .jpg)
III. Инфраструктура
Консьерж-служба комплекса поможет решить все проблемы — от доставки продуктов на дом и вещей из химчистки до вызова такси. Собственная инфраструктура представлена автомойкой, минимаркетом, школой танцев.

Стойка ресепшн
Вопреки утверждению, что в центре с продуктовыми магазинами дело обстоит неважно, в 5-10 минутах ходьбы от ЖК расположены ряд продуктовых точек, в том числе "Азбука вкуса" и "Золото Каспия". На пути к комплексу от метро действует и небольшой продуктовый рынок. Поблизости находятся торговые центры "Лотте Плаза" и "Смоленский пассаж".
Дошкольных учреждений в пешей доступности не так много — это муниципальный детсад и частный детсад "Кидсберри". В пешей доступности находится ряд продвинутых школ, среди которых лингвистическая гимназия №1513, школа №1231 с углубленным изучением иностранного языка имени Поленова. Дополнительное образование в окрестностях представлено несколькими частными и государственными музыкальными школами, школой искусств, детским центром "Мир искусств".
В непосредственной близости расположены детская и взрослая поликлиники. Спортом можно заниматься в многочисленных фитнес-центрах, а также в бассейне "Moscow" со школой плавания.
Мнение редакции. Инфраструктура рядом с ЖК более, чем насыщена для комплекса апартаментов, расположенного в подобной локации.
Оценка: .jpg)
IV. Условия инвестирования
Цена вопроса
Средняя стоимость кв. м. — 450 тыс. руб., с отделкой примерно 600 тыс. руб. за кв. м. Фактор ценообразования зависит не только от площади и наличия отделки, но и от этажности и видовых характеристик.
Стоимость однокомнатных апартаментов без отделки от 44 млн. руб., двухкомнатных — 50,1 млн. руб., трехкомнатной — 79 млн. руб. четырехкомнатных — 113,4 млн. руб. Цена за однушки с отделкой составляет 58-59 млн. руб., двушку – 76,8 млн. руб., трешку 106,5 млн. руб.
Цена за место в подземном паркинге — от 4,7 млн. руб. Ежемесячная плата за обслуживание (учитывая закрытые и охраняемые дворы) составляет 120 руб./кв. м.
Условия покупки
Возможно ипотечное кредитование от банка ВТБ 24 со ставкой 9,5% годовых. Варианты рассрочки обсуждаются в индивидуальном порядке.
Информация о застройщике
Компания «Донстрой» — один из пионеров рынка столичной недвижимости, в особом представлении не нуждается. С момента основания в 1994 г. компанией было возведено немало знаковых ЖК, ставших своего рода символами Москвы — "Алые паруса", "Воробьевы Горы", "Дом на Мосфильмовской", "Триумф-Палас". На настоящий момент в портфеле "Донстроя" свыше 8,4 млн. кв. м. недвижимости. Это 30 построенных и строящихся жилых комплексов.

Среди сданных объектов компании новостройки класса De Luxe: BARRIN HOUSE и "Grand DeLuxe на Плющихе" в Хамовниках, "Кленовый DOM" на Пречистенской набережной, а также новостройки бизнес-класса ЖК "Соколиный форт" и ЖК "Лосиный остров".
Премиальный класс представлен последними корпусами "Алых парусов" и ЖК "Долина Сетунь" на западе столицы. Сейчас компания возводит премиальный ЖК "Суббота" у станции метро "Белорусская", ЖК бизнес-класса "Символ" в Лефортово и "Сердце столицы" на берегу Москва-реки рядом с Москва-Сити, а также объекты класса De Luxe — "Жизнь на Плющихе" и "Оливковый дом".
Мнение редакции. Цены в комплексе адекватны локации и элитному сегменту. Сложно сказать, есть ли у комплекса прямые конкуренты в данной локации среди уже готовых или почти готовых элитных комплексов с апартаментами. К относительным конкурентам можно отнести ЖК "Звезды Арбата" от застройщика "Балтийская компания". Цены стартуют здесь от 32 млн. руб., но и нарезка площадей в некоторых случаях меньше. Например, площадь однокомнатных апартаментов составляет 46-74 кв. м. Минимальная же площадь трешк" — 74 кв. м. а цена такого предложения — 31,2 млн. руб. Впрочем, например, цена за 128-метровую трешку составляет 107,1 млн. руб., что на миллион больше, чем цена за 149-метровую трешку в "Smolensky de Luxe" с отделкой.
Другие же предложения такого плана в этой локации априори дороже. Например, в достраивающемся клубном доме "Театральный" от застройщика Галс-Девелопмент, располагающемся в историческом, реконструируемом особняке с обещанными магазином и рестораном, цены на апартаменты стартуют от 52 млн. руб. При этом нарезка мельче — минимальная площадь лота составляет 66 кв. м., а материалы внешней и внутренней отделки менее экслюзивны.
Сильно опережает "Smolensky de Luxe" по ценам и премиальный ЖК "Turandot Residences", сданный в 2013 г. Он находится в более престижном с культурной точки зрения месте — на Старом Арбате, но и в более суетной локации. Минимальная площадь лота на первичке составляет здесь сейчас 114 кв. м, а минимальная цена 90,7 млн. руб. В этих ЖК не предлагается апартаментов с отделкой.
Образ покупателя
Порядка 60% покупателей это мужчины в возрасте 36-44 лет. Большая часть покупателей имеют детей. По социальному статусу покупатели являются владельцами компаний или руководителями высшего звена. Покупка недвижимости в основном совершается в личных целях.
V. Подведение итогов
Покупка апартаментов в ЖК «Smolensky de Luxe» интересна тем состоятельным гражданам, кто хочет жить в историческом центре в шаговой доступности от метро. Правда, в силу апартаментного статуса, это скорее вариант для тех, кто имеет московскую прописку. Это и интересное предложение с точки зрения инвестиций — особенно с точки зрения сдачи в аренду.
При этом вариант не очень подходит семьям с детьми, в чье представление о месте идеального обитания вписывается наличие собственного закрытого двора с игровой площадкой и прочими активностями.
Общая оценка ЖК "Smolensky De Luxe"(Смоленский ДеЛюкс): 19.35 из 20.00
| Местоположение | ||
| Транспортная доступность на автомобиле | 4 | 4.80 |
| Транспортная доступность на общественном транспорте | 5 | |
| Перспективы развития транспортной доступности | 5 | |
| Визуальные характеристики | 5 | |
| Экология | 5 | |
| Архитектура и планировочные решения | ||
| Планировки квартир | 4 | 4.80 |
| Инженерные системы | 5 | |
| Зонирование территории | 5 | |
| Организация парковки | 5 | |
| Архитектура | 5 | |
| Инфраструктура | ||
| Ближайшая | 5 | 5.00 |
| Кластера | 5 | |
| Заявленная | 5 | |
| Условия инвестирования | ||
| Надежность застройщика | 5 | 5.00 |
| Цены | 5 | |
| Условия сделки | 5 | |
| Риски и недостатки проекта | ||
| Риск проблем с парковкой | 0 | -0.25 |
| Риск повышенной платы за обслуживание | 0 | |
| Риск заморозки проекта после первой или второй стадии | -1 | |
| Риск недоразвития собственной инфраструктуры | 0 | |











Комментировать