
II. Архитектура и планировочные решения
I. Локация
Транспортная доступность
Расстояние до выезда на ТТК составляет 2,4 км, до выезда на Садовое примерно около 1,5 км. Неподалеку пролегают и Кутузовский и Комсомольский проспекты, через ТТК можно оперативно выехать и на Ленинский проспект. 15 минут займет пешая дорога до станции метро "Фрунзенская", 20 минут — до станции "Киевская".
Экология
Улицы, окружающие комплекс, не особенно широки и загружены, зато менее чем в 5 минутах от GRAND DELUXE находится сквер Девичьего поля, в 10 минутах — парк-усадьба Трубецких с Парковым прудом и островом Очарованным, а в 15 минутах пешего хода начинается крупная зеленая зона "Парк Новодевичьи пруды", где близ Новодевичьего монастыря располагаются Большой и Малый Новодевичий пруды. Москва-река протекает всего в 600 м от комплекса.

Окружение жилого комплекса
Мнение редакции. Локацию можно назвать эксклюзивной — и с точки зрения ауры места, и в аспекте близости к зеленым зонам и воде.
Оценка: .jpg)
II. Архитектура и планировочные решения
Особенности планировки и зонирования
В составе комплекса, введенного в эксплуатацию в 2015 году, пятисекционное здание в форме условной буквы "П" переменной высотности (7-11 этажей), рассчитанных в общей сложности на 134 квартиры. Под домом располагается двухуровневый подземный паркинг, число мест в котором превышает количество квартир почти в 2 раза (262).

Макет ЖК
Здание образует собой полузамкнутый уютный патио площадью 0,7 Га с фонтаном, лавочками и фигурными урнами. На охраняемой территории оборудован яркий детский игровой городок, ведется видеонаблюдение. Тротуары вымощены плиткой, разбиты газоны с многолетними растениями, высажены деревья и кустарники.
Через некоторое время дворовое пространство "замкнется" – сейчас строится вторая очередь проекта, "Жизнь на Плющихе" – этот ЖК сдадут к 2019 г.

Строительство 2-ой очереди
Будущее семисекционное здание переменной высотности (7-13 этажей) интегрируется с GRAND DELUXE в единый комплекс с просторным двором и инфраструктурой. Общая площадь дворового пространства составит около 6,5 тыс. кв.м, на территории будет выполнен единый ландшафтный проект.
Домостроение
Автор проекта - архитектор Владимир Колосницын. Архитектура монолитно-кирпичного здания выдержана в "модернизированном" духе особняков XIX века. В облицовке фасада сочетаются лепнина, художественная ковка, панно из итальянской мозаики. На нижнем уровне используется натуральный гранит.

Фасад
Характерная деталь архитектурного облика – колонны и пилястры, портики и кованые балкончики.

Элементы декора
Цветовые решения фасада выдержаны в нежно-бежевой, гамме с изумрудными мозаичными вкраплениями, воплощающими монограмму ЖК – вьющийся плющ. Монограмма отмечает лифты, кованые ворота, стойку консьержа и предметы интерьера.

Монограмма жилого комплекса
Полы во входных группах представляют собой инкрустацию ручной работы из мрамора четырех различных оттенков. Стены облицованы деревянными панелями из шпона ореха и декоративной штукатуркой.

Холл во входной группе
Входные группы меблированы эксклюзивными предметами интерьера, оборудованы стойка консьержа, выполненная по индивидуальному дизайн-проекту и уютная зона ожидания с камином. Общественные пространства украшены зеркалами и витражами с латунными переплетами, световыми панно, есть и часы с домовым гербом. В секциях установлены бесшумные лифты фирмы Shindler.

Декор холла
Здание оборудовано автономными системами тепло- и водоснабжения, а также фильтрации воздуха и воды. На этаже располагается по 3-4 квартиры.
Квартиры
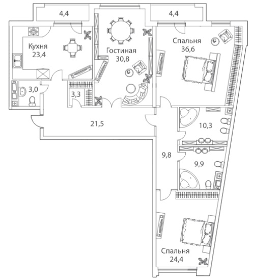
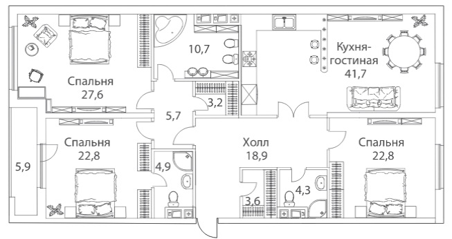
В продаже на текущий момент осталось ограниченное количество лотов. Доступный набор квартир представлен двукомнатными площадью от 116 до 123 кв. м, трехкомнатными площадью от 151 до 182 кв. м, и четырехкомнатными площадью от 166 до 205 кв. м.
Жилье имеет свободную планировку. Высота потолков в квартирах составляет 3,2 м. В жилье установлены входные двери высотой 2,4 м из массива дуба с латунными ручками.

Жилой этаж
Квартиры отличаются большими окнами с деревянным профилем. У части жилья на последних этажах имеются просторные открытые террасы, площадь которых может достигать 200 кв. м, но сейчас таких предложений уже нет на первичном рынке. Остальное жилье оборудовано лоджиями, причем, те, которые смотрят во двор – открытые, а на улицу — застекленные.

Террасы верхнего этажа
Виды с верхних этажей практически со всех сторон по-своему интересны – где-то можно увидеть высотку МИДа и Останкинскую башню, с других сторон открываются виды на парковые зоны, Лужники или здание Академии наук, хотя, есть и индустриальные вкрапления. Виды же на сквер Девичьего поля или на расположенный прямо у комплекса белоснежный храм Михаила Архангела — прерогатива не только жителей верхних этажей.

Вид с балкона
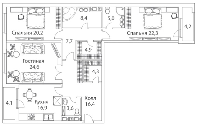
Среди двушек представлены сейчас в основном линейные варианты:

Однако есть и редкие распашные варианты - 116-метровая квартира в форме условной буквы "Г", где в нижней части можно организовать спально-релаксационное, а в верхней — гостинно-кухонное пространство.

Имеются даже линейные трехкомнатные – как, например, это 155-метровое жилье.

Есть интересная 144-метровая трешка в угловой секции с трехсторонним обзором, — спальная зона выстраивается в отдельно" вытянутое пространство, а в нижней квадратной зоне можно организовать гостинно-кухонную зону. В самой спальной зоне можно, благодаря большому количеству окон, выкроить дополнительную небольшую спаленку.

181-метровая трешка имеет очень необычную конфигурацию. Помещения спальной зоны, тоже выделенные в отдельное пространство, с предусмотренными при ними санузлами, обретают специфическую форму.

Имеются и трехкомнатные квартиры симметричного плана — как, например, 175-метровое жилье в форме правильного прямоугольника, где можно рационально распределить жилое пространство по равномерному принципу:

205-метровая четырехкомнатная квартира имеет обзор на 2 стороны, и оборудована двумя лоджиями. Здесь можно реализовать тот же принцип разделения зон.

Мнение редакции. Наличие внутреннего двора — не такой уж распространенный момент в элитных комплексах столичного центра, правда, предстоит немного подождать, пока завершится стройка, и двор станет "замкнуто полноценным". К минусам можно отнести наличие линейных планировок в двушках и трешках. Число мест в подземных паркингах, как и во всех проектах компании, впечатляет.
Оценка:.jpg)
III. Инфраструктура
С помощью консьерж-службы ЖК можно решить любые насущные проблемы — от доставки блюд из ресторана и вещей из химчистки до выгула четвероногого друга. С внешней стороны здания находятся бар-ресторан, химчистка, медцентр с косметологией, юридическая компания, мебельный магазин. После введения в эксплуатацию второй очереди, здесь появится дополнительная внутренняя инфраструктура – еще одно кафе и фитнес-клуб площадью более 700 кв. м со SPA-зоной с сауной и хамамом.

Двор с детской площадкой и зоной отдыха
В непосредственной близости от ЖК действуют пара продуктовых точек и кофейня. Супермаркеты "Перекресток", "Фреш-Маркет" и "Магнолия" расположены в 10-15 минутах ходьбы от комплекса. Крупные торговые центры "Европейский" и "Киевский" находятся на расстоянии 1,5-2 км.
В окружении GRAND DELUXE на Плющихе находится ряд детских садов, правда муниципальных среди них всего 3, а вот частных, более, чем достаточно – например, английские детские сады Discovery и Sun School, Центр Обучения и воспитания "Солнечный круг". Неподалеку от комплекса находится школа №1231 с углубленным изучением английского языка имени Поленова, почти все школы в ближайших окрестностях тоже продвинутые — частные Филипповская школа и "Золотое сечение", муниципальные лицей №1535 и известная школа №57.

Летом работает фонтан с подсветкой
Дополнительное образование в радиусе 1-2,5 км от ЖК представлено музыкальной школой имени Мурадели, художественной школой имени Серова и спортивной школой, Центром Досуга и Спорта района Хамовники, детской студией искусств при Музее Москвы, театральной студией "Русская речь", Клубом "Ровесник". В пешей доступности находятся взрослая и детская поликлиника, а также Детская больница имени Сеченова и Лечебно-диагностический центр №9 для взрослых и детей.
В окрестностях сосредоточено немало крупных специализированных медучреждений, среди которых – ФНКЦ Физико-Химической медицины, Российский научный центр хирургии, Клиника урологии УКБ №2, Университетская клиническая больница №4, стоматологические клиники.
Помимо спортклуба и фитнес-клуба, в пешей доступности, расположены школа Плавания и Теннисная школа "Чемпион", студия йоги, школа танцев латино. Подальше находятся Русская Шахматная школа и Академия Бокса. Фишки спортивно–развлекательной инфраструктуры базируются в близлежащих парковых зонах: в сквере Девичьего поля и в парке Новодевичьи пруды можно взять напрокат велобайки, а в усадьбе Трубецких посетить школу верховой езды и послушать выступления на концертной площадке.
Мнение редакции. Внутренняя инфраструктура станет более насыщенной к 2019 году, потому что пока она все-таки носит общественный характер в силу локации с внешней стороны. В близлежащей внешней есть некоторые пробелы, но их надо рассматривать в контексте особенностей локации.
Оценка: .jpg)
IV. Условия инвестирования
Цена вопроса
Средняя стоимость кв. м — 850 тыс. руб. Стоимость двухкомнатных квартир составляет от 91,6 до 97,4 млн. руб., трехкомнатных от 106,5 до 147,2 млн. руб., четырехкомнатных от 114,7 до 159,8 млн. руб.
Разница в цене в зависимости от этажа может варьироваться на данный момент от 30 до 36 млн. руб., при том, что все лоты выше 9-го этажа уже распроданы). Например, стоимость аналогичных 173-метровых аналогичных "трешек" на втором и третьем этажах составляет 117,1 и 147,2 млн. соответственно, 184-метровых "четырешек" на втором и пятом этажах 114,7 и 150,4 млн. соответственно. Варианты рассрочки и ипотеки обсуждаются с покупателями индивидуально.
Цена за место в подземном паркинге стартует от 5,7 млн. руб.
Ежемесячная плата за обслуживание составляет 107,8 руб./кв. м.
Информация о застройщике
Компания «Донстрой» — один из пионеров рынка столичной недвижимости, в особом представлении не нуждается. Компания была основана в 1994 году. С этого момента ей было возведено немало знаковых ЖК, ставших своего рода символами Москвы — "Алые паруса", "Воробьевы Горы", "Дом на Мосфильмовской", "Триумф-Палас".
На настоящий момент в портфеле "Донстроя" свыше 8,4 млн. кв. м. недвижимости. Это 30 построенных и строящихся жилых комплексов. Среди сданных объектов компании новостройки класса De Luxe: Кленовый Dom и "Барин Хаус" в Хамовниках, Smolensky de Luxe в районе Арбата, а также новостройки бизнес-класса ЖК "Соколиный форт" и ЖК "Лосиный остров". Премиальный класс представлен последними корпусами "Алых парусов" и ЖК "Долина Сетунь" на западе столицы. Сейчас компания возводит премиальный ЖК "Суббота" у станции метро "Белорусская", ЖК бизнес-класса "Символ" в Лефортово и "Сердце столицы" на берегу Москва-реки рядом с Москва-Сити, а также объекты класса De Luxe — "Жизнь на Плющихе" и "Оливковый дом".
Мнение редакции. Цены в комплексе высокие и соответсвуют контексту локации и сегмента – в целом, он дороже расположенного неподалеку ЖК "Барин Хаус" от того же застройщика. Правда, в более камерном варианте - ЖК "Дом на Бурденко" на 33 квартиры от застройщика "Новый дом-94" цены еще выше.
Образ покупателя
Чаще всего это семейные люди в возрасте от 40 лет, имеющие загородные дома и приобретающие городское жилье для удобства с точки зрения работы и/или обучения детей в престижных школах Москвы. Для них важны такие факторы, как малое количество соседей и их статус, закрытая территория, эстетический комфорт, красота окружения, качество внутренней отделки, панорамные виды.
V. Подведение итогов
Покупка квартир в ЖК интересна тем состоятельным гражданам, кто хочет жить, с одной стороны в центре, но с другой стороны вблизи парков и воды. Для семей с детьми здесь есть двор с игровой площадкой, который в будущем усовершенствуют, а также очень хорошие муниципальные и частные дошкольные и щкольные учреждения, до которых можно прогуляться пешком.
.jpg)
Приобретение жилья может стать перспективным и для родителей подросших детей, которым можно будет приобрести жилье во второй очереди комплекса и существовать с ними в одном пространстве.
Будущий фитнес на территории интересен для поклонников здорового образа жизни, которые хотят реализовывать его не выходя из дома. Эстеты оценят изящную мозаичную архитектуру, навевающую мысли о "прекрасном былом".
Общая оценка ЖК "Grande DeLuxe на Плющихе" (Гранд Делюкс на Плющихе): 18.89 из 20.00
| Местоположение | ||
| Экология | 5 | 4.80 |
| Транспортная доступность на автомобиле | 5 | |
| Транспортная доступность на общественном транспорте | 5 | |
| Перспективы развития транспортной доступности | 4 | |
| Визуальные характеристики | 5 | |
| Архитектура и планировочные решения | ||
| Организация парковки | 5 | 5.00 |
| Архитектура | 5 | |
| Планировки квартир | 5 | |
| Инженерные системы | 5 | |
| Зонирование территории | 5 | |
| Инфраструктура | ||
| Заявленная | 5 | 4.67 |
| Ближайшая | 4 | |
| Кластера | 5 | |
| Условия инвестирования | ||
| Условия сделки | 5 | 4.67 |
| Надежность застройщика | 5 | |
| Цены | 4 | |
| Риски и недостатки проекта | ||
| Риск заморозки проекта после первой или второй стадии | 0 | -0.25 |
| Риск недоразвития собственной инфраструктуры | 0 | |
| Риск проблем с парковкой | 0 | |
| Риск повышенной платы за обслуживание | -1 | |
Комментировать